
北城町3売店舗兼住居 詳細
お気に入り
追加済み
物件画像を詳しく見る

幹線道路沿いの住居付き飲食店舗
物件概要
店舗内は木目基調の落ち着いた雰囲気
-
物件コード
00209-200104
-
物件名
北城町3売店舗兼住居
-
交通
駅:妙高はねうまライン 高田駅から徒歩20分、バス:東本町三丁目から徒歩5分
-
所在地
新潟県上越市北城町3丁目15-10
物件へのルート表示
-
物件種別
中古一戸建て
-
構造
木造
-
階建
地上2階建
-
建ぺい率/容積率
60%/200%
-
建物面積
282.81㎡
/85.55坪
-
土地面積
519.95㎡
/157.28坪
-
築年月
1986年12月(築39年)
-
入居時期
相談
-
用途地域
第1種住居地域
-
地目
宅地 (現状:宅地)
-
都市計画
市街化区域
-
形状
-
-
道路
北側16m公道(歩道付)
-
私道
-
-
その他の制限
-
物件詳細情報
-
所在階/階数
-
-
号室
-
-
販売価格
25,000,000円
-
方位
-
-
間取り
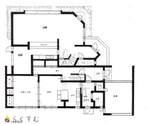
3LDK (和室:10畳、8畳) (洋室:13)、LDK20
-
専有面積
-
-
バルコニー面積
-
-
その他面積
-
-
駐車場
-
-
管理費
-
-
修繕積立金
-
-
現況
居住中
-
仲介手数料
891,000円
-
利用制限
-
-
学校区
大町小学校(1,028m)・城北中学校(750m)
-
設備
LDK15帖以上、駐車3台以上可能、駐車場融雪設備あり、トイレ2か所以上、エアコンあり、都市ガス、上水道、下水道
-
取引態様
仲介
-
情報登録日
2025/01/23
-
次回更新予定日
2026/04/17
-
取引条件有効期限
2025/03/31
備考
現在、店舗営業中・居住中のため、引渡しの時期は要相談です。
取扱い会社
株式会社マルケー不動産
Copyright (C) 株式会社 コモンライフ・コーポレーション. All Rights Reserved.
不動産検索サイト「らくすむ」及び関連サイトに記載の不動産情報は、会員規約に則り、情報提供会社様の責任のもとに発信されております。
不動産の賃借、購入に関しては賃借者、購入者ご自身が情報を確認され、会社企業様から説明を受けられたうえで判断をお願いいたします。
不動産検索サイト「らくすむ」及び関連サイトに記載の不動産情報、写真、デザイン、コンテンツなどの無断転載・転用・複製など禁止します。