
新栄町2丁目メゾンムーミー1階テナント募集 詳細
お気に入り
追加済み
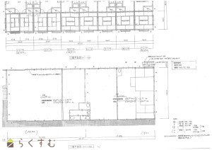
内部平面図(貸出フロアーはトイレを含み向かって左側)
物件画像を詳しく見る

幹線道路沿線。月額賃料に駐車場料金含みます。(駐車スペース乗用車なら20台可)
物件概要
-
賃料
35万円/月
-
管理費
なし
-
敷/礼
2ヶ月/
なし
-
間取り
-
-
広さ
151.9㎡
/45.94坪
-
階建
地上2階建
-
築年数
1993年3月(築33年)
-
種別
店舗
-
住所
新潟県長岡市新栄町2丁目3番40
物件へのルート表示
-
交通
駅:信越線 見附駅から徒歩145分、バス:警察署前から徒歩2分
店舗向けにご検討をお願いします。
-
物件コード
00189-100004
-
物件名
新栄町2丁目メゾンムーミー1階テナント募集
-
交通
駅:信越線 見附駅から徒歩145分、バス:警察署前から徒歩2分
-
所在地
新潟県長岡市新栄町2丁目3番40
物件へのルート表示
-
物件種別
店舗
-
総戸数
1戸
-
構造
木造鉄骨
-
階建
地上2階建
-
所在階/階数
1階/2階
-
号室
-
-
専有面積
151.9㎡
/45.94坪
-
方位
-
-
間取り
-
-
賃料
35万円/月
-
管理費
-
-
礼金
-
-
敷金
2ヶ月
-
共益費
-
-
ほか初期費用
-
-
その他諸費用
-
-
更新料
-
-
火災(家財)保険
-
-
駐車場
-
-
町内費
-
-
バイク料金
-
-
鍵交換費
-
-
清掃料
-
-
更新事務手数料
-
-
保証区分
緊急連絡先のみ
-
保証会社
区分:指定なし
-
-
連帯保証人
[区分]
不要
-
-
仲介手数料
-
-
手数料負担割合
貸主:-%
借主:-%
-
手数料配分割合
元付:-%
客付:-%
-
築年月
1993年3月(築33年)
-
利用制限
-
-
学校区
栃尾東小学校(429m)・刈谷田中学校(1,185m)
-
設備
1階、融雪設備あり、24時間セキュリティー、即引き渡し可、駐車場あり
-
入居時期
即入居可
-
取引態様
貸主
-
情報登録日
2023/11/24
-
次回更新予定日
2026/06/07
備考
取扱い会社
村山ハウス(株)
Copyright (C) 株式会社 コモンライフ・コーポレーション. All Rights Reserved.
不動産検索サイト「らくすむ」及び関連サイトに記載の不動産情報は、会員規約に則り、情報提供会社様の責任のもとに発信されております。
不動産の賃借、購入に関しては賃借者、購入者ご自身が情報を確認され、会社企業様から説明を受けられたうえで判断をお願いいたします。
不動産検索サイト「らくすむ」及び関連サイトに記載の不動産情報、写真、デザイン、コンテンツなどの無断転載・転用・複製など禁止します。