
見附市今町5丁目【売土地A】 詳細
お気に入り
追加済み
物件画像を詳しく見る

見附バイパス近く・マルイ今町国道店まで徒歩4分(260m)の住宅街
物件概要
【新築プラン付売り土地】その他、売土地Bもあり*
-
物件コード
00167-200036
-
物件名
見附市今町5丁目【売土地A】
-
交通
駅:信越線 見附駅から徒歩24分、バス:今町5丁目から徒歩6分
-
所在地
新潟県見附市今町5丁目3235番地5 / 3220番16
物件へのルート表示
-
物件種別
売土地・分譲地
-
物件区分
売土地
-
構造
-
-
階建
-
-
建ぺい率/容積率
60%/200%
-
建物面積
-
-
土地面積
115.74㎡
/35.01坪
-
築年月
-
-
入居時期
相談
-
用途地域
第1種住居地域
-
地目
宅地
-
都市計画
市街化区域
-
形状
間口 7.04m × 奥行 16.57m
-
道路
北側公道6M
-
私道
-
-
その他の制限
-
物件詳細情報
-
所在階/階数
-
-
号室
-
-
販売価格
3,500,000円
-
方位
-
-
間取り
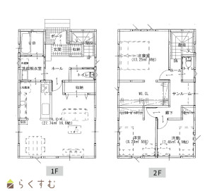
LDK (洋室:8、5、4.5)、LDK16.8
-
専有面積
-
-
バルコニー面積
-
-
その他面積
-
-
駐車場
-
-
管理費
-
-
修繕積立金
-
-
現況
-
仲介手数料
なし
-
利用制限
-
-
学校区
今町小学校(1,100m)・今町中学校(400m)
-
設備
整形地、前道6m以上、学校近く、スーパー近く、閑静な住宅街、電気、都市ガス(宅地内)、上水道(宅地内)、下水道(宅地内)、住宅向け
-
取引態様
売主
-
情報登録日
2026/01/08
-
次回更新予定日
2026/04/17
-
取引条件有効期限
2026/03/08
備考
3LDK・駐車2台可能、新築プラン付売土地 参考価格 【土地:350万円+建物2100万円=2450万円※諸経費別途負担あり】
※建築条件付
取扱い会社
株式会社 森山建設
Copyright (C) 株式会社 コモンライフ・コーポレーション. All Rights Reserved.
不動産検索サイト「らくすむ」及び関連サイトに記載の不動産情報は、会員規約に則り、情報提供会社様の責任のもとに発信されております。
不動産の賃借、購入に関しては賃借者、購入者ご自身が情報を確認され、会社企業様から説明を受けられたうえで判断をお願いいたします。
不動産検索サイト「らくすむ」及び関連サイトに記載の不動産情報、写真、デザイン、コンテンツなどの無断転載・転用・複製など禁止します。