
中田原 築浅未入居住宅 詳細
お気に入り
追加済み
物件画像を詳しく見る

☆3LDK築浅未入居住宅 ☆スーパーなど生活に必要な商業施設が近く利便性の良い住環境です
物件概要
☆低炭素住宅 ☆自然素材の風合いを生かしたナチュラルなデザイン《カンパーニュ》
-
物件コード
00160-200273
-
物件名
中田原 築浅未入居住宅
-
交通
駅:妙高はねうまライン 南高田駅から徒歩11分、バス:商業高校前から徒歩4分
-
所在地
新潟県上越市中田原105-35
物件へのルート表示
-
物件種別
中古一戸建て
-
構造
木造
-
階建
地上2階建
-
建ぺい率/容積率
60%/200%
-
建物面積
101.02㎡
/30.55坪
-
土地面積
238.06㎡
/72.01坪
-
築年月
2021年5月(築4年)
-
入居時期
随時入居(引き渡し)可
-
用途地域
準工業地域
-
地目
宅地 (現状:宅地)
-
都市計画
市街化区域
-
形状
間口 13.17m × 奥行 18.08m
-
道路
上越市道 北西側幅員7m
-
私道
-
-
その他の制限
景観法
物件詳細情報
-
所在階/階数
-
-
号室
-
-
販売価格
31,000,000円
-
方位
東
-
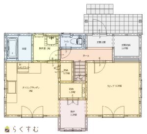
間取り
3LDK (洋室:8、5.25、5.25)、リビング8.35帖 ダイニングキッチン8帖、物干室2.25帖 玄関収納1.67帖 WIC4帖
-
専有面積
-
-
バルコニー面積
-
-
その他面積
-
-
駐車場
-
-
管理費
-
-
修繕積立金
-
-
現況
空家
-
仲介手数料
なし
-
利用制限
-
-
学校区
黒田小学校(1,463m)・城西中学校(758m)
-
設備
日当り良好、閑静な住宅街、瑕疵担保保険対象、新築時図面あり、建物確認・完了検査済証あり、全室フローリング、築10年以内、駐車2台可能、駐車3台以上可能、南向き、TVインターホン、複層ガラス、システムキッチン、IHクッキングヒーター、食器洗浄乾燥機、追いだき機能付き、浴室乾燥機、バス1坪以上、温水洗浄便座、エアコンあり、24時間換気システム、オール電化、上水道、下水道、バリアフリー、ウォークインクローゼット、全居室収納あり、シューズBOX、シューズインクローゼット
-
取引態様
仲介
-
情報登録日
2025/06/19
-
次回更新予定日
2026/04/17
-
取引条件有効期限
2026/04/14
備考
リネンカーテン・照明・エアコン付
床下冷暖房空調
トリプルサッシと木質断熱材使用
高気密高断熱”超高性能住宅”
取扱い会社
株式会社 すむとこ
-
TEL
025-520-7103
-
所在地
新潟県上越市下門前1705
-
交通
はねうまライン 直江津駅
-
営業時間
9:00~18:00/定休日:日曜・祝祭日
-
免許番号
新潟県知事(4)第4991号
-
所属団体名
新潟県宅地建物取引業協会 上越支部
-
取引態様
仲介
Copyright (C) 株式会社 コモンライフ・コーポレーション. All Rights Reserved.
不動産検索サイト「らくすむ」及び関連サイトに記載の不動産情報は、会員規約に則り、情報提供会社様の責任のもとに発信されております。
不動産の賃借、購入に関しては賃借者、購入者ご自身が情報を確認され、会社企業様から説明を受けられたうえで判断をお願いいたします。
不動産検索サイト「らくすむ」及び関連サイトに記載の不動産情報、写真、デザイン、コンテンツなどの無断転載・転用・複製など禁止します。