
柏崎市四谷3丁目1番売り住宅 詳細
お気に入り
追加済み
物件画像を詳しく見る

シャッター付きガレージ(1台分)、EV車充電設備新設済み、2階にミニキッチンあり、セブンイレブンまで徒歩2分、国道・県道へのアクセスの良い立地
物件概要
-
物件コード
00088-200837
-
物件名
柏崎市四谷3丁目1番売り住宅
-
交通
駅:越後線 東柏崎駅から徒歩13分、バス:日吉町から徒歩2分
-
所在地
新潟県柏崎市四谷三丁目1番38号
物件へのルート表示
-
物件種別
中古一戸建て
-
構造
木造
-
階建
地上2階建
-
建ぺい率/容積率
60%/200%
-
建物面積
92.34㎡
/27.93坪
-
土地面積
126.39㎡
/38.23坪
-
築年月
1970年6月(築55年)
-
入居時期
相談
-
用途地域
第1種住居地域
-
地目
宅地 (現状:宅地)
-
都市計画
非線引き都市計画区域
-
形状
-
-
道路
柏崎市道3-4号線(消雪パイプ・歩道除雪)
-
私道
-
-
その他の制限
法第22条指定区域/居住誘導区域
物件詳細情報
-
所在階/階数
-
-
号室
-
-
販売価格
4,000,000円
-
方位
西
-
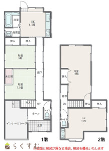
間取り
4DK (和室:7.5畳、6畳) (洋室:12、9.2)、6.5DK、インナーガレージ
-
専有面積
-
-
バルコニー面積
-
-
その他面積
-
-
駐車場
-
-
管理費
-
-
修繕積立金
-
-
現況
空家
-
仲介手数料
330,000円
-
利用制限
-
-
学校区
比角小学校(300m)・第二中学校(700m)
-
設備
システムキッチン、3口コンロ、バス1坪以上、温水洗浄便座、トイレ2か所以上、都市ガス、上水道、下水道、全居室収納あり
-
取引態様
一般
-
情報登録日
2026/04/02
-
次回更新予定日
2026/04/17
-
取引条件有効期限
2026/07/02
備考
未登記の増築部分有り(H2増築)
現況有姿売買
■シャッター付きガレージ、EV車充電設備新設済み
■浴室乾燥/暖房/冷房装置付きで快適
■宅配ボックス(中古)
■2階ミニキッチン
■2階洋室の一部リフォーム済み
■カメラ付きインターホン
■一部の窓/ダブルサッシかペアガラス
取扱い会社
株式会社 ホーメックス
-
TEL
0257-24-0034
-
所在地
新潟県柏崎市土合628-1
-
交通
-
営業時間
8:30~17:30/定休日:土・日・祝(対応可能です) 年末年始・お盆・GW
-
免許番号
新潟県知事(9)第3199号
-
所属団体名
新潟県宅地建物取引業協会 柏崎支部
-
取引態様
一般
Copyright (C) 株式会社 コモンライフ・コーポレーション. All Rights Reserved.
不動産検索サイト「らくすむ」及び関連サイトに記載の不動産情報は、会員規約に則り、情報提供会社様の責任のもとに発信されております。
不動産の賃借、購入に関しては賃借者、購入者ご自身が情報を確認され、会社企業様から説明を受けられたうえで判断をお願いいたします。
不動産検索サイト「らくすむ」及び関連サイトに記載の不動産情報、写真、デザイン、コンテンツなどの無断転載・転用・複製など禁止します。