
アンジュ枇杷島 詳細
お気に入り
追加済み
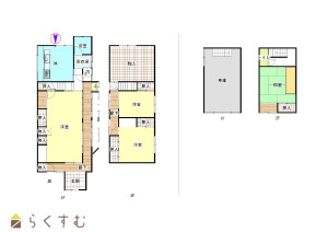
間取り図 本棟+別棟 現況と相違の場合は現況優先とします
物件画像を詳しく見る
物件概要
-
価格
6,200,000円
-
利回り
12%
※表面利回り(満室想定時)
-
広さ
土地:269.01㎡
/81.37坪
-
建物:192.35㎡
/58.18坪
-
住所
新潟県柏崎市関町6-5
物件へのルート表示
-
物件コード
00083-200044
-
物件名
アンジュ枇杷島
-
交通
駅:信越線 柏崎駅から徒歩12分、バス:宮場町から徒歩3分
-
所在地
新潟県柏崎市関町6-5
物件へのルート表示
-
物件種別
投資物件・その他
-
物件区分
1棟売りマンション・アパート
-
構造
木造
-
階建
地上2階建
-
建ぺい率/容積率
60%/200%
-
建物面積
192.35㎡
/58.18坪
-
土地面積
269.01㎡
/81.37坪
-
築年月
1976年10月(築49年)
-
入居時期
相談
-
用途地域
第1種低層住居専用地域
-
地目
宅地
-
都市計画
非線引き都市計画区域
-
形状
-
-
道路
-
-
私道
-
-
その他の制限
-
物件詳細情報
-
所在階/階数
-
-
号室
-
-
販売価格
6,200,000円
-
表面利回り
(満室想定時)
12%
-
満室想定年収
-
(想定月収:
-
)
-
現行利回り
-
-
現行年間年収
-
-
住戸数
1
-
方位
-
-
間取り
3SLDK
-
専有面積
192.35㎡
/58.18坪
~
192.35㎡
/58.18坪
-
バルコニー面積
-
-
その他面積
-
-
駐車場
2~3台
-
管理費
-
-
修繕積立金
-
-
現況
賃貸中
-
仲介手数料
297,660円
-
利用制限
-
-
学校区
枇杷島小学校(275m)・鏡が沖中学校(1,023m)
-
設備
公営水道、都市ガス、下水道
-
取引態様
一般
-
情報登録日
2026/05/20
-
次回更新予定日
2026/06/05
-
取引条件有効期限
2026/06/30
備考
取扱い会社
株式会社 アイエステート
Copyright (C) 株式会社 コモンライフ・コーポレーション. All Rights Reserved.
不動産検索サイト「らくすむ」及び関連サイトに記載の不動産情報は、会員規約に則り、情報提供会社様の責任のもとに発信されております。
不動産の賃借、購入に関しては賃借者、購入者ご自身が情報を確認され、会社企業様から説明を受けられたうえで判断をお願いいたします。
不動産検索サイト「らくすむ」及び関連サイトに記載の不動産情報、写真、デザイン、コンテンツなどの無断転載・転用・複製など禁止します。