物件画像を詳しく見る

閑静な住宅街に立地し、公園のそばの為、四季を体感できる住環境。
物件概要
4LDKの間取りで、平成19年建築、比較的きれいな戸建です。お求めやすい価格です。
-
物件コード
00070-200104
-
物件名
見附市嶺崎1丁目土地建物
-
交通
駅:信越線 見附駅から徒歩39分
-
所在地
新潟県見附市嶺崎1丁目11-5
物件へのルート表示
-
物件種別
中古一戸建て
-
構造
木造
-
階建
地上2階建
-
建ぺい率/容積率
70%/200%
-
建物面積
108.05㎡
/32.68坪
-
土地面積
338.44㎡
/102.37坪
-
築年月
2007年5月(築18年)
-
入居時期
随時入居(引き渡し)可
-
用途地域
無指定
-
地目
宅地
-
都市計画
市街化調整区域
-
形状
-
-
道路
見附市道
-
私道
-
-
その他の制限
公園法、都市計画法、22条区域、開発の許可(必要な場合あり)
物件詳細情報
-
所在階/階数
-
-
号室
-
-
販売価格
11,600,000円
-
方位
-
-
間取り
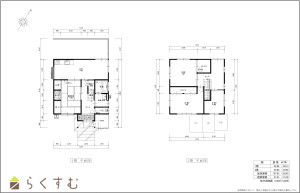
4LDK (和室:7.5畳) (洋室:8、8、4.5)、LDK12
-
専有面積
-
-
バルコニー面積
-
-
その他面積
-
-
駐車場
-
-
管理費
-
-
修繕積立金
-
-
現況
空家
-
仲介手数料
448,800円
-
消雪費用
15,000円
年間額について詳細確認中
-
見附市の借地部分の費用
260円
年間260円程度
-
利用制限
-
-
学校区
見附小学校(1,214m)・見附中学校(1,293m)
-
設備
閑静な住宅街、駐車2台可能、TVインターホン、システムキッチン、3口コンロ、追いだき機能付き、温水洗浄便座、都市ガス、上水道、下水道、即引き渡し可能
-
取引態様
一般
-
情報登録日
2026/03/06
-
次回更新予定日
2026/04/17
-
取引条件有効期限
2027/03/31
備考
閑静な住宅街に立地している為、穏やかな生活を送ることが可能です。また、公園のそばの為、自然環境に恵まれ、四季折々を体感できる自然豊かな住環境です。近隣には郵便局やスーパーも立地しているので、生活利便性も良好です。4LDKなので、ファミリー向けとしても良好な間取りです。平成19年建築で、比較的きれいな戸建です。経済的にもバランスがとりやすい、お求めやすい価格です。
取扱い会社
橋本建設 株式会社