
新潟市西蒲区間瀬 戸建 詳細
お気に入り
追加済み
物件画像を詳しく見る

別荘、住まいとしての利用 どちらにも最適
物件概要
LDKから海が見えます!
-
物件コード
00063-200099
-
物件名
新潟市西蒲区間瀬 戸建
-
交通
駅:越後線 岩室駅から徒歩220分、バス:五ヶ峠登山口前から徒歩102分
-
所在地
新潟県新潟市西蒲区間瀬6199-2
物件へのルート表示
-
物件種別
中古一戸建て
-
構造
木造
-
階建
地上2階建
-
建ぺい率/容積率
70%/200%
-
建物面積
83.21㎡
/25.17坪
-
土地面積
167.27㎡
/50.59坪
-
築年月
2006年1月(築19年)
-
入居時期
相談
-
用途地域
無指定
-
地目
宅地 (現状:宅地)
-
都市計画
市街化調整区域
-
形状
間口 12m × 奥行 13m
-
道路
東側:既存道路 幅員9m
-
私道
-
-
その他の制限
-
物件詳細情報
-
所在階/階数
-
-
号室
-
-
販売価格
8,800,000円
-
方位
-
-
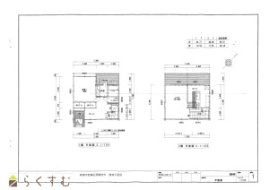
間取り
1LDK (洋室:9)、LDK:20.4帖
-
専有面積
-
-
バルコニー面積
-
-
その他面積
-
-
駐車場
-
-
管理費
-
-
修繕積立金
-
-
現況
居住中
-
仲介手数料
330,000円
-
利用制限
-
-
学校区
岩室小学校(5,085m)・岩室中学校(5,841m)
-
設備
日当り良好、閑静な住宅街、LDK15帖以上、全室フローリング、駐車2台可能、追いだき機能付き、温水洗浄便座、エアコンあり、ウッドデッキ・テラス、LPG、上水道、浄化槽、別荘、田舎暮らし
-
取引態様
一般
-
情報登録日
2025/09/30
-
次回更新予定日
2025/10/15
-
取引条件有効期限
2026/09/30
備考
・現況有姿取引となります。
・ウッドデッキあり、ロフトあり、敷地内に物置あり
・テレビ電波受信が悪い。 ケーブルテレビのみ可能
・自治会費(町内会)支払必要(別荘として使用の場合:月/1,000円)
取扱い会社
株式会社 山六木材
Copyright (C) 株式会社 コモンライフ・コーポレーション. All Rights Reserved.
不動産検索サイト「らくすむ」及び関連サイトに記載の不動産情報は、会員規約に則り、情報提供会社様の責任のもとに発信されております。
不動産の賃借、購入に関しては賃借者、購入者ご自身が情報を確認され、会社企業様から説明を受けられたうえで判断をお願いいたします。
不動産検索サイト「らくすむ」及び関連サイトに記載の不動産情報、写真、デザイン、コンテンツなどの無断転載・転用・複製など禁止します。