
長岡市下々条町 2LDKのログハウス 詳細
お気に入り
追加済み
物件画像を詳しく見る

暖炉付きのログハウス!自然素材ならではの癒し空間を体験してください
物件概要
ログハウスはデザイン性が高く唯一無二の空間を楽しめます!
-
物件コード
00044-200715
-
物件名
長岡市下々条町 2LDKのログハウス
-
交通
駅:信越線 押切駅から徒歩29分、バス:大野から徒歩2分
-
所在地
新潟県長岡市下々条町2484-9
物件へのルート表示
-
物件種別
中古一戸建て
-
構造
木造
-
階建
地上2階建
-
建ぺい率/容積率
60%/200%
-
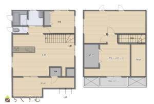
建物面積
105.62㎡
/31.95坪
-
土地面積
222.98㎡
/67.45坪
-
築年月
2014年10月(築11年)
-
入居時期
随時入居(引き渡し)可
-
用途地域
第2種中高層住居専用地域
-
地目
宅地
-
都市計画
-
-
形状
間口 12.38m
-
道路
北西側:8.1m
-
私道
-
-
その他の制限
-
物件詳細情報
-
所在階/階数
-
-
号室
-
-
販売価格
23,800,000円
-
方位
西
-
間取り
2LDK
-
専有面積
-
-
バルコニー面積
-
-
その他面積
-
-
駐車場
-
-
管理費
-
-
修繕積立金
-
-
現況
空家
-
仲介手数料
851,400円
-
利用制限
-
-
学校区
黒条小学校(684m)・堤岡中学校(266m)
-
設備
日当り良好、閑静な住宅街、スーパー近く、建物確認・完了検査済証あり、LDK15帖以上、駐車2台可能、TVインターホン、カウンターキッチン、IHクッキングヒーター、追いだき機能付き、バス1坪以上、温水洗浄便座、シャワー付き洗面台、エアコンあり、全室エアコン、ウッドデッキ・テラス、都市ガス、上水道、下水道、田舎暮らし
-
取引態様
一般
-
情報登録日
2026/03/23
-
次回更新予定日
2026/04/17
-
取引条件有効期限
2026/06/28
備考
■現況有姿での引渡しとなります。 ■年間の固定資産税 10万円 ■薪をストックする物置有
取扱い会社
ブレイン・リアルエステート合同会社
Copyright (C) 株式会社 コモンライフ・コーポレーション. All Rights Reserved.
不動産検索サイト「らくすむ」及び関連サイトに記載の不動産情報は、会員規約に則り、情報提供会社様の責任のもとに発信されております。
不動産の賃借、購入に関しては賃借者、購入者ご自身が情報を確認され、会社企業様から説明を受けられたうえで判断をお願いいたします。
不動産検索サイト「らくすむ」及び関連サイトに記載の不動産情報、写真、デザイン、コンテンツなどの無断転載・転用・複製など禁止します。