
南魚沼市坂戸 売ビル(温泉引込可能) 詳細
お気に入り
追加済み
物件画像を詳しく見る

大浴場付きの保養所です!修繕必要箇所はあります。
物件概要
敷地内は融雪井戸がありますので冬も安心です。
-
物件コード
00044-200710
-
物件名
南魚沼市坂戸 売ビル(温泉引込可能)
-
交通
駅:上越線 六日町駅から徒歩13分、バス:坂戸橋東詰から徒歩2分
-
所在地
新潟県南魚沼市坂戸32-4
物件へのルート表示
-
物件種別
投資物件・その他
-
物件区分
その他
-
構造
鉄筋コン
-
階建
地上2階建
-
建ぺい率/容積率
80%/400%
-
建物面積
463.45㎡
/140.19坪
-
土地面積
1,930.98㎡
/584.12坪
-
築年月
1992年4月(築34年)
-
入居時期
随時入居(引き渡し)可
-
用途地域
商業地域
-
地目
宅地
-
都市計画
非線引き都市計画区域
-
形状
間口 49.06m × 奥行 40.21m
-
道路
南側:公道 16m
-
私道
-
-
その他の制限
-
物件詳細情報
-
所在階/階数
-
-
号室
-
-
販売価格
35,000,000円
-
表面利回り
(満室想定時)
-
-
満室想定年収
-
(想定月収:
-
)
-
現行利回り
-
-
現行年間年収
-
-
住戸数
-
-
方位
-
-
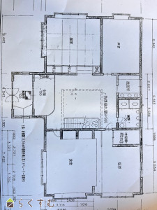
間取り
5LDK
-
専有面積
-
-
バルコニー面積
-
-
その他面積
-
-
駐車場
無料
-
管理費
-
-
修繕積立金
-
-
現況
居住中
-
仲介手数料
1,221,000円
-
利用制限
-
-
学校区
六日町小学校(378m)・六日町中学校(1,288m)
-
設備
南側道路面す、駐車場(近隣含む)、公営水道、下水道、浄化槽、事業向け、別荘、田舎暮らし
-
取引態様
一般
-
情報登録日
2026/04/02
-
次回更新予定日
2026/06/05
-
取引条件有効期限
2026/04/20
備考
■現況有姿での引渡しとなります。
取扱い会社
ブレイン・リアルエステート合同会社
Copyright (C) 株式会社 コモンライフ・コーポレーション. All Rights Reserved.
不動産検索サイト「らくすむ」及び関連サイトに記載の不動産情報は、会員規約に則り、情報提供会社様の責任のもとに発信されております。
不動産の賃借、購入に関しては賃借者、購入者ご自身が情報を確認され、会社企業様から説明を受けられたうえで判断をお願いいたします。
不動産検索サイト「らくすむ」及び関連サイトに記載の不動産情報、写真、デザイン、コンテンツなどの無断転載・転用・複製など禁止します。