
エーデルハイムA 詳細
103号室
お気に入り
追加済み
物件画像を詳しく見る

インターネット・Wi-Fi無料☆仲介料無料和室洋室リフォーム済温水洗浄便座 TVドアホン
物件概要
-
賃料
5万円/月
-
管理費
なし
-
敷/礼
1ヶ月/
なし
-
間取り
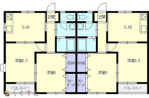
2DK (洋室:6.0、6.5)
-
広さ
43.79㎡
/13.24坪
-
階建
地上2階建
-
築年数
1997年2月(築29年)
-
種別
アパート・マンション・一戸建て
-
住所
新潟県長岡市上除町3729-1
物件へのルート表示
-
交通
駅:長岡から徒歩88分
-
物件コード
00043-104968
-
物件名
エーデルハイムA
-
交通
駅:長岡から徒歩88分
-
所在地
新潟県長岡市上除町3729-1
物件へのルート表示
-
物件種別
アパート・マンション・一戸建て
-
総戸数
-
-
構造
木造
-
階建
地上2階建
-
所在階/階数
1階/2階
-
号室
103号室
-
専有面積
43.79㎡
/13.24坪
-
方位
東
-
間取り
2DK (洋室:6.0、6.5)
-
賃料
5万円/月
-
管理費
-
-
礼金
-
-
敷金
1ヶ月
-
共益費
-
-
ほか初期費用
-
-
その他諸費用
-
-
更新料
-
-
火災(家財)保険
-
-
駐車場
駐車場2台無料
-
町内費
-
-
バイク料金
-
-
鍵交換費
16,500円
-
清掃料
-
-
住宅保険料
21,500円
-
更新事務手数料
-
-
保証区分
保証会社のみ
-
保証会社
区分:加入要
保証会社名:ジェイリース
-
-
家賃保証金
初回契約時:60%、月額:600円、初回契約時:月額総賃料60% 月額保証料600円
-
連帯保証人
[区分]
-
-
-
仲介手数料
-
-
手数料負担割合
貸主:-%
借主:-%
-
手数料配分割合
元付:-%
客付:-%
-
築年月
1997年2月(築29年)
-
利用制限
学生:可、二人入居:可、ペット:不可、ルームシェア:不可
-
学校区
日越小学校(1,345m)・西中学校(2,910m)
-
設備
駐輪場あり、角住居、バストイレ別、温水洗浄便座、洗面所独立、シャワー付き洗面台、エアコン、都市ガス、バルコニー、洗濯機置場 室内、フローリングあり、シューズBOX、BS端子・アンテナ、CATV、TVモニター付きインターホン
-
入居時期
即入居可
-
取引態様
代理
-
情報登録日
2026/04/07
-
次回更新予定日
2026/04/21
備考
和室洋室リフォーム済みインターネット・Wi-Fi無料仲介手数料無料駐車場2台付(縦列)賃貸保証料:月額総賃料60%(初回)1年未満解約の場合、賃料2ヶ月相当の違約金発生 更新手数料 0円
取扱い会社
ドアーズ 株式会社
-
TEL
0258-21-3751
-
所在地
新潟県長岡市古正寺町108-1
-
交通
越後交通「西病院前」バス停徒歩約5分
-
営業時間
9:00~18:00/定休日:年末・年始・GW・夏期(お盆)
-
免許番号
新潟県知事(10)第2891号
-
所属団体名
新潟県宅地建物取引業協会 長岡支部
-
取引態様
代理
Copyright (C) 株式会社 コモンライフ・コーポレーション. All Rights Reserved.
不動産検索サイト「らくすむ」及び関連サイトに記載の不動産情報は、会員規約に則り、情報提供会社様の責任のもとに発信されております。
不動産の賃借、購入に関しては賃借者、購入者ご自身が情報を確認され、会社企業様から説明を受けられたうえで判断をお願いいたします。
不動産検索サイト「らくすむ」及び関連サイトに記載の不動産情報、写真、デザイン、コンテンツなどの無断転載・転用・複製など禁止します。