
稲保1丁目 売住宅 詳細
お気に入り
追加済み
物件画像を詳しく見る

【パークタウン稲保内】建物48坪のゆとり 南側遊歩道につき開放感ある住まい
物件概要
内装保存状態良好!
-
物件コード
00040-201204
-
物件名
稲保1丁目 売住宅
-
交通
駅:信越線 北長岡駅から徒歩35分、バス:稲保1丁目から徒歩2分
-
所在地
新潟県長岡市稲保1丁目320番地20
物件へのルート表示
-
物件種別
中古一戸建て
-
構造
木造
-
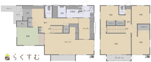
階建
地上2階建
-
建ぺい率/容積率
60%/200%
-
建物面積
158.75㎡
/48.02坪
-
土地面積
235.98㎡
/71.38坪
-
築年月
2003年4月(築23年)
-
入居時期
相談
-
用途地域
第1種中高層住居専用地域
-
地目
宅地 (現状:宅地)
-
都市計画
市街化区域
-
形状
間口 13.69m
-
道路
西側 市道 幅員8.0m / 南側 市道(遊歩道) 幅員4m
-
私道
-
-
その他の制限
地区計画区域、第二種高度地区
物件詳細情報
-
所在階/階数
-
-
号室
-
-
販売価格
19,500,000円
-
方位
-
-
間取り
4LDK
-
専有面積
-
-
バルコニー面積
-
-
その他面積
-
-
駐車場
-
-
管理費
-
-
修繕積立金
-
-
現況
居住中
-
仲介手数料
709,500円
-
利用制限
-
-
学校区
富曾亀小学校(1,543m)・東北中学校(2,656m)
-
設備
角地、日当り良好、閑静な住宅街、駐車2台可能、南向き、TVインターホン、システムキッチン、IHクッキングヒーター、食器洗浄乾燥機、2口コンロ、追いだき機能付き、バス1坪以上、温水洗浄便座、トイレ2か所以上、エアコンあり、24時間換気システム、都市ガス、上水道、下水道
-
取引態様
専任
-
情報登録日
2026/04/03
-
次回更新予定日
2026/04/17
-
取引条件有効期限
2026/06/30
備考
店舗・飲食店(150㎡以上)、病院等の利用不可。(地区計画による)
取扱い会社
髙頭不動産 株式会社
-
TEL
0120-1818-27
-
所在地
新潟県長岡市千歳1-3-25
-
交通
長岡駅
-
営業時間
8時30分~17時30分(大手支店は9時~18時)/定休日:本社:土日祝日(事前予約での対応可能)、支店:日曜祝日第5土曜(毎年2月下旬から3月は休みなし)
-
免許番号
新潟県知事(17)第191号
-
所属団体名
新潟県宅地建物取引協会 長岡支部
-
取引態様
専任
Copyright (C) 株式会社 コモンライフ・コーポレーション. All Rights Reserved.
不動産検索サイト「らくすむ」及び関連サイトに記載の不動産情報は、会員規約に則り、情報提供会社様の責任のもとに発信されております。
不動産の賃借、購入に関しては賃借者、購入者ご自身が情報を確認され、会社企業様から説明を受けられたうえで判断をお願いいたします。
不動産検索サイト「らくすむ」及び関連サイトに記載の不動産情報、写真、デザイン、コンテンツなどの無断転載・転用・複製など禁止します。