
見附市芝野町 売店舗 令和2年リフォーム済み!美しい内装 詳細
お気に入り
追加済み
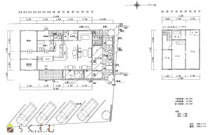
物件画像を詳しく見る

令和2年リフォーム済み!美しい内装はそのままに。憧れの店舗をすぐにオープンできる居抜き物件!あなたの思い描くお店を実現してください。
物件概要
令和2年リフォーム済み!美しい内装はそのままに。憧れの店舗をすぐにオープンできる居抜き物件!あなたの思い描くお店を実現してください。
-
物件コード
00039-200292
-
物件名
見附市芝野町 売店舗 令和2年リフォーム済み!美しい内装
-
交通
駅:信越線 見附駅から徒歩17分、バス:芝野から徒歩1分
-
所在地
新潟県見附市芝野町1206
物件へのルート表示
-
物件種別
投資物件・その他
-
物件区分
その他
-
構造
木造
-
階建
地上2階建
-
建ぺい率/容積率
60%/200%
-
建物面積
293.97㎡
/88.92坪
-
土地面積
684㎡
/206.91坪
-
築年月
2006年7月(築19年)
-
入居時期
相談
-
用途地域
準工業地域
-
地目
宅地
-
都市計画
市街化区域
-
形状
間口 18.5m
-
道路
見附市道
-
私道
-
-
その他の制限
-
物件詳細情報
-
所在階/階数
-
-
号室
-
-
販売価格
35,000,000円
-
表面利回り
(満室想定時)
-
-
満室想定年収
-
(想定月収:
-
)
-
現行利回り
-
-
現行年間年収
-
-
住戸数
-
-
方位
-
-
間取り
-
-
専有面積
-
-
バルコニー面積
-
-
その他面積
-
-
駐車場
8台以上可
-
管理費
-
-
修繕積立金
-
-
現況
空家
-
仲介手数料
1,221,000円
-
利用制限
-
-
学校区
今町小学校(1,308m)・今町中学校(551m)
-
設備
公営水道、下水道、事業向け
-
取引態様
一般
-
情報登録日
2026/03/15
-
次回更新予定日
2026/06/05
-
取引条件有効期限
2026/04/30
備考
賃貸をご希望の方は相談可能です。
取扱い会社
ふどうさんの相談所 (ライフデザイン合同会社 イオン長岡店)
Copyright (C) 株式会社 コモンライフ・コーポレーション. All Rights Reserved.
不動産検索サイト「らくすむ」及び関連サイトに記載の不動産情報は、会員規約に則り、情報提供会社様の責任のもとに発信されております。
不動産の賃借、購入に関しては賃借者、購入者ご自身が情報を確認され、会社企業様から説明を受けられたうえで判断をお願いいたします。
不動産検索サイト「らくすむ」及び関連サイトに記載の不動産情報、写真、デザイン、コンテンツなどの無断転載・転用・複製など禁止します。