
栃尾 栄町2丁目 売医院 詳細
お気に入り
追加済み
物件画像を詳しく見る

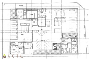
栃尾 栄町2丁目の医院建物 診療所、介護施設に利用可
物件概要
大手ゼネコン施工の築23年の建物
-
物件コード
00039-200282
-
物件名
栃尾 栄町2丁目 売医院
-
交通
駅:信越線 見附駅から徒歩145分、バス:警察署前から徒歩4分
-
所在地
新潟県長岡市栄町2丁目7-15
物件へのルート表示
-
物件種別
投資物件・その他
-
物件区分
その他
-
構造
鉄骨
-
階建
地上1階建
-
建ぺい率/容積率
60%/200%
-
建物面積
314.55㎡
/95.15坪
-
土地面積
843.99㎡
/255.3坪
-
築年月
2002年12月(築23年)
-
入居時期
相談
-
用途地域
第1種住居地域
-
地目
宅地 (現状:建付地)
-
都市計画
非線引き都市計画区域
-
形状
間口 30m × 奥行 25m
-
道路
長岡市道
-
私道
-
-
その他の制限
-
物件詳細情報
-
所在階/階数
-
-
号室
-
-
販売価格
15,000,000円
-
表面利回り
(満室想定時)
-
-
満室想定年収
2,400,000円
(想定月収:
200,000円
)
-
現行利回り
-
-
現行年間年収
-
-
住戸数
-
-
方位
-
-
間取り
-
-
専有面積
-
-
バルコニー面積
-
-
その他面積
-
-
駐車場
無料
-
管理費
-
-
修繕積立金
-
-
現況
空家
-
仲介手数料
561,000円
-
利用制限
-
-
学校区
栃尾東小学校(488m)・刈谷田中学校(1,340m)
-
設備
角地、公営水道、都市ガス、下水道、事業向け
-
取引態様
売主
-
情報登録日
2026/03/15
-
次回更新予定日
2026/06/05
-
取引条件有効期限
2026/04/30
備考
取扱い会社
ふどうさんの相談所 (ライフデザイン合同会社 イオン長岡店)
Copyright (C) 株式会社 コモンライフ・コーポレーション. All Rights Reserved.
不動産検索サイト「らくすむ」及び関連サイトに記載の不動産情報は、会員規約に則り、情報提供会社様の責任のもとに発信されております。
不動産の賃借、購入に関しては賃借者、購入者ご自身が情報を確認され、会社企業様から説明を受けられたうえで判断をお願いいたします。
不動産検索サイト「らくすむ」及び関連サイトに記載の不動産情報、写真、デザイン、コンテンツなどの無断転載・転用・複製など禁止します。