
小千谷市 1F住宅+2Fレストラン 詳細
お気に入り
追加済み
物件画像を詳しく見る

住宅+レストラン 【価格改定しました】
物件概要
-
物件コード
00039-200234
-
物件名
小千谷市 1F住宅+2Fレストラン
-
交通
駅:上越線 小千谷駅から徒歩9分、バス:小千谷車庫前から徒歩3分
-
所在地
新潟県小千谷市東栄1丁目1098番2
物件へのルート表示
-
物件種別
中古一戸建て
-
構造
木造
-
階建
地上2階建
-
建ぺい率/容積率
60%/200%
-
建物面積
137.33㎡
/41.54坪
-
土地面積
481.99㎡
/145.8坪
-
築年月
1986年7月(築39年)
-
入居時期
相談
-
用途地域
第1種中高層住居専用地域
-
地目
宅地 (現状:宅地)
-
都市計画
非線引き都市計画区域
-
形状
間口 19m × 奥行 40m
-
道路
市道
-
私道
-
-
その他の制限
-
物件詳細情報
-
所在階/階数
-
-
号室
-
-
販売価格
39,800,000円
-
方位
-
-
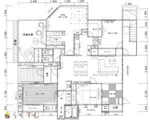
間取り
5LDK (和室:4.5畳) (洋室:8.8、8、6.5、6)、19.5
-
専有面積
-
-
バルコニー面積
-
-
その他面積
77.11㎡
/23.32坪
2階レストラン部分(建物未登記部分があります)
-
駐車場
-
-
管理費
-
-
修繕積立金
-
-
現況
居住中
-
仲介手数料
1,379,400円
-
利用制限
-
-
学校区
東小千谷小学校(166m)・東小千谷中学校(474m)
-
設備
日当り良好、閑静な住宅街、LDK15帖以上、駐車3台以上可能、駐車場融雪設備あり、バス1坪以上、トイレ2か所以上、上水道、下水道、事業向け
-
取引態様
専任
-
情報登録日
2026/03/15
-
次回更新予定日
2026/04/17
-
取引条件有効期限
2026/04/30
備考
取扱い会社
ふどうさんの相談所 (ライフデザイン合同会社 イオン長岡店)
Copyright (C) 株式会社 コモンライフ・コーポレーション. All Rights Reserved.
不動産検索サイト「らくすむ」及び関連サイトに記載の不動産情報は、会員規約に則り、情報提供会社様の責任のもとに発信されております。
不動産の賃借、購入に関しては賃借者、購入者ご自身が情報を確認され、会社企業様から説明を受けられたうえで判断をお願いいたします。
不動産検索サイト「らくすむ」及び関連サイトに記載の不動産情報、写真、デザイン、コンテンツなどの無断転載・転用・複製など禁止します。