
小千谷市内 人気レストラン+5LDK住宅 詳細
お気に入り
追加済み
物件画像を詳しく見る

小千谷市内 人気レストラン+5LDK住宅 職住接近
物件概要
-
物件コード
00039-200218
-
物件名
小千谷市内 人気レストラン+5LDK住宅
-
交通
駅:上越線 小千谷駅から徒歩7分、バス:小千谷車庫前から徒歩3分
-
所在地
新潟県小千谷市東栄1丁目1098番2
物件へのルート表示
-
物件種別
投資物件・その他
-
物件区分
その他
-
構造
木造
-
階建
地上2階建
-
建ぺい率/容積率
60%/200%
-
建物面積
137.33㎡
/41.54坪
-
土地面積
481.99㎡
/145.8坪
-
築年月
1986年7月(築39年)
-
入居時期
相談
-
用途地域
第1種中高層住居専用地域
-
地目
宅地
-
都市計画
非線引き都市計画区域
-
形状
間口 19m × 奥行 40m
-
道路
小千谷市道
-
私道
-
-
その他の制限
-
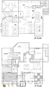
物件詳細情報
-
所在階/階数
-
-
号室
-
-
販売価格
39,800,000円
-
表面利回り
(満室想定時)
-
-
満室想定年収
-
(想定月収:
-
)
-
現行利回り
-
-
現行年間年収
-
-
住戸数
-
-
方位
-
-
間取り
1階住居部分 5LDK、 2階店舗部分
-
専有面積
-
-
バルコニー面積
-
-
その他面積
-
-
駐車場
車13台分
-
管理費
-
-
修繕積立金
-
-
現況
居住中
-
仲介手数料
1,379,400円
-
利用制限
-
-
学校区
東小千谷小学校(171m)・東小千谷中学校(469m)
-
設備
駐車場(近隣含む)、事業向け
-
取引態様
専任
-
情報登録日
2026/03/15
-
次回更新予定日
2026/06/05
-
取引条件有効期限
2026/04/30
備考
小千谷市内の繁盛店、イタリアンレストラン+1階住居、
取扱い会社
ふどうさんの相談所 (ライフデザイン合同会社 イオン長岡店)
Copyright (C) 株式会社 コモンライフ・コーポレーション. All Rights Reserved.
不動産検索サイト「らくすむ」及び関連サイトに記載の不動産情報は、会員規約に則り、情報提供会社様の責任のもとに発信されております。
不動産の賃借、購入に関しては賃借者、購入者ご自身が情報を確認され、会社企業様から説明を受けられたうえで判断をお願いいたします。
不動産検索サイト「らくすむ」及び関連サイトに記載の不動産情報、写真、デザイン、コンテンツなどの無断転載・転用・複製など禁止します。