
地蔵貸家F号棟 詳細
F号室
お気に入り
追加済み
物件画像を詳しく見る

ペット相談(小型犬)可(飼育をされる場合は敷金3か月となります)。駐車場2台付き・冷暖房エアコン3台付き・追い焚き機能付き。
物件概要
-
賃料
9万円/月
-
管理費
なし
-
敷/礼
2ヶ月/
なし
-
間取り
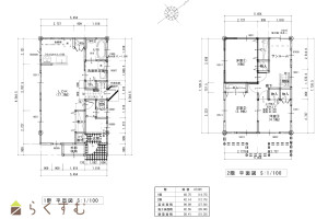
3LDK (洋室:6、5.9、4.5)、LDK17.3
-
広さ
90.89㎡
/27.49坪
-
階建
地上2階建
-
築年数
2018年9月(築7年)
-
種別
アパート・マンション・一戸建て
-
住所
新潟県長岡市地蔵2丁目2-12-3号
物件へのルート表示
-
交通
駅:信越線 長岡駅から徒歩22分、バス:干場から徒歩4分
-
物件コード
00035-100536
-
物件名
地蔵貸家F号棟
-
交通
駅:信越線 長岡駅から徒歩22分、バス:干場から徒歩4分
-
所在地
新潟県長岡市地蔵2丁目2-12-3号
物件へのルート表示
-
物件種別
アパート・マンション・一戸建て
-
総戸数
-
-
構造
木造
-
階建
地上2階建
-
所在階/階数
-
-
号室
F号室
-
専有面積
90.89㎡
/27.49坪
-
方位
南西
-
間取り
3LDK (洋室:6、5.9、4.5)、LDK17.3
-
賃料
9万円/月
-
管理費
-
-
礼金
-
-
敷金
2ヶ月
-
共益費
-
-
ほか初期費用
-
-
その他諸費用
-
-
更新料
-
-
火災(家財)保険
22,000円
2年間分
-
駐車場
2台付き
-
町内費
別途町内に支払いあり
-
バイク料金
-
-
鍵交換費
-
-
清掃料
-
-
更新事務手数料
-
-
保証区分
保証会社+緊急連絡先
-
保証会社
区分:加入要
保証会社名:ジェイリース
【契約時】総家賃等の50%【月額保証料】毎月の家賃等の1.3%
-
家賃保証金
45,000円
-
連帯保証人
[区分]
不要
-
-
仲介手数料
99,000円
-
手数料負担割合
貸主:-%
借主:100%
-
手数料配分割合
元付:50%
客付:50%
-
築年月
2018年9月(築7年)
-
利用制限
法人:可、二人入居:可、子供:可、ペット:相談、事務所利用:不可、ルームシェア:不可
-
学校区
川崎小学校(429m)・東北中学校(499m)
-
設備
閑静な住宅街、LDK12畳以上、築10年以内、駐車場1台無料、駐車場2台無料、カードキー、対面キッチン、IHクッキングヒーター、バストイレ別、浴室1坪以上、追いだき機能付き、ユニットバス、温水洗浄便座、3面鏡付き洗面台、シャワー付き洗面台、エアコン、エアコン3基、都市ガス、下水、サンルーム、全居室フローリング、複層サッシ、洗濯機置場 室内、脱衣所、玄関収納、トランクルーム、クロゼット3ヵ所、CATV、TVモニター付きインターホン、各居室照明、ペット相談可、保証会社要加入、お勧め物件
-
入居時期
2026年5月上旬
-
取引態様
仲介
-
情報登録日
2026/04/17
-
次回更新予定日
2026/05/04
備考
ペット(小型犬)を飼育される場合は、敷金が3か月必要となります。
取扱い会社
有限会社 東部不動産
Copyright (C) 株式会社 コモンライフ・コーポレーション. All Rights Reserved.
不動産検索サイト「らくすむ」及び関連サイトに記載の不動産情報は、会員規約に則り、情報提供会社様の責任のもとに発信されております。
不動産の賃借、購入に関しては賃借者、購入者ご自身が情報を確認され、会社企業様から説明を受けられたうえで判断をお願いいたします。
不動産検索サイト「らくすむ」及び関連サイトに記載の不動産情報、写真、デザイン、コンテンツなどの無断転載・転用・複製など禁止します。