物件画像を詳しく見る

【駐車場2台付き(追加駐車場相談可)】事務所としても店舗としても利用可能!フェニックス大橋近くでアクセス抜群♬キッチン・水洗トイレ付きです(^^♪
物件概要
-
賃料
7.7万円/月
-
管理費
なし
-
敷/礼
14万円/
7.7万円
-
間取り
-
-
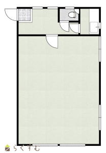
広さ
46.68㎡
/14.12坪
-
階建
地上2階建
-
築年数
1987年5月(築39年)
-
種別
店舗
-
住所
新潟県長岡市下山2丁目2421−2
物件へのルート表示
-
交通
駅:上越線 宮内駅から徒歩44分、バス:下山から徒歩2分
ご見学のお申込み、またはご不明な点がある場合は、お問い合わせフォームよりお気軽にご相談ください♪お電話でもかまいません。
-
物件コード
00030-101167
-
物件名
ザ・ライトウィング 1階 事務所・店舗
-
交通
駅:上越線 宮内駅から徒歩44分、バス:下山から徒歩2分
-
所在地
新潟県長岡市下山2丁目2421−2
物件へのルート表示
-
物件種別
店舗
-
総戸数
-
-
構造
木造
-
階建
地上2階建
-
所在階/階数
1階/2階
-
号室
103号室
-
専有面積
46.68㎡
/14.12坪
-
方位
-
-
間取り
-
-
賃料
7.7万円/月
-
管理費
-
-
礼金
7.7万円
-
敷金
14万円
-
共益費
-
-
ほか初期費用
-
-
その他諸費用
-
-
更新料
-
-
火災(家財)保険
別途要加入
-
駐車場
2台込み
-
町内費
別途実費
-
バイク料金
-
-
鍵交換費
-
-
清掃料
-
-
更新事務手数料
-
-
保証区分
連帯保証人+保証会社
-
保証会社
区分:加入要
保証会社名:ジェイリース
初回保証料:月額総賃料の100%(契約時)・継続保証料:月額総賃料の10%(毎年)
-
家賃保証金
77,000円
-
連帯保証人
[区分]
要
-
-
仲介手数料
77,000円
-
手数料負担割合
貸主:-%
借主:100%
-
手数料配分割合
元付:-%
客付:-%
-
築年月
1987年5月(築39年)
-
利用制限
法人:可、事務所利用:可
-
学校区
希望が丘小学校(433m)・西中学校(865m)
-
設備
1階、融雪設備あり、即引き渡し可、スケルトン、駐車場あり
-
入居時期
即入居可
-
取引態様
仲介
-
情報登録日
2026/04/07
-
次回更新予定日
2026/06/07
備考
・敷地内駐車場2台付です。(駐車場追加の場合はご相談ください。1台/3,300円※要空き確認)
※内装諸設備を変更される場合は借主者様にてご負担ください。
取扱い会社
株式会社 長岡総合開発