
要町3丁目売工場・店舗・事務所 詳細
お気に入り
追加済み
物件画像を詳しく見る

令和5年築の築浅居抜き物件です♪食品加工工場・販売店舗に最適です。2階は事務所兼休憩所となります。設備も別途お渡し可能ですので詳細はご相談下さい。
物件概要
-
物件コード
00026-200202
-
物件名
要町3丁目売工場・店舗・事務所
-
交通
駅:上越新幹線 長岡駅から徒歩29分、バス:三和町から徒歩4分
-
所在地
新潟県長岡市要町3丁目1-21
物件へのルート表示
-
物件種別
投資物件・その他
-
物件区分
その他
-
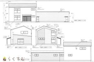
構造
木造
-
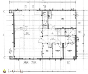
階建
地上2階建
-
建ぺい率/容積率
60%/200%
-
建物面積
298.04㎡
/90.15坪
-
土地面積
825.37㎡
/249.67坪
-
築年月
2023年3月(築3年)
-
入居時期
令和8年10月予定
-
用途地域
準工業地域
-
地目
宅地 (現状:建付地)
-
都市計画
市街化区域
-
形状
間口 26.6m × 奥行 33.29m
-
道路
県道22m(消雪有)
-
私道
-
-
その他の制限
-
物件詳細情報
-
所在階/階数
-
-
号室
-
-
販売価格
110,000,000円
-
表面利回り
(満室想定時)
-
-
満室想定年収
-
(想定月収:
-
)
-
現行利回り
-
-
現行年間年収
-
-
住戸数
-
-
方位
-
-
間取り
-
-
専有面積
-
-
バルコニー面積
-
-
その他面積
-
-
駐車場
付無料(10台程度)
-
管理費
-
-
修繕積立金
-
-
現況
居住中
-
仲介手数料
3,696,000円
-
利用制限
-
-
学校区
宮内小学校(633m)・宮内中学校(1,056m)
-
設備
駐車場(近隣含む)、公営水道、LPG、下水道、事業向け
-
取引態様
専任
-
情報登録日
2026/04/14
-
次回更新予定日
2026/05/12
-
取引条件有効期限
2026/08/31
備考
価格内訳:土地3,500万円/建物7,500万円(非課税)/契約不適合免責/図面と現況異なる場合は現況優先/建物内部動産は売主負担で撤去します。残置ご希望の際はご相談下さい。/令和8年固都税年額626,311円
取扱い会社
有限会社 竹内不動産
-
TEL
0258-36-3224
-
所在地
新潟県長岡市沢田1-1-8
-
交通
-
営業時間
9:00~18:15/定休日:日曜・祭日(土曜は不定休のため事前連絡にて対応可
-
免許番号
新潟県知事(12)第2303号
-
所属団体名
公益社団法人 全国宅地建物取引業保証協会
-
取引態様
専任
Copyright (C) 株式会社 コモンライフ・コーポレーション. All Rights Reserved.
不動産検索サイト「らくすむ」及び関連サイトに記載の不動産情報は、会員規約に則り、情報提供会社様の責任のもとに発信されております。
不動産の賃借、購入に関しては賃借者、購入者ご自身が情報を確認され、会社企業様から説明を受けられたうえで判断をお願いいたします。
不動産検索サイト「らくすむ」及び関連サイトに記載の不動産情報、写真、デザイン、コンテンツなどの無断転載・転用・複製など禁止します。