
宝2丁目 売家 詳細
お気に入り
追加済み
物件画像を詳しく見る

土地173坪、建物57坪の物件。付属建物(小屋)あり。
物件概要
ひらせい北長岡店まで徒歩13分。長岡信用金庫宝支店まで徒歩3分。
-
物件コード
00023-200127
-
物件名
宝2丁目 売家
-
交通
駅:信越線 北長岡駅から徒歩32分、バス:宝1丁目から徒歩2分
-
所在地
新潟県長岡市宝2丁目2-30、2-31
物件へのルート表示
-
物件種別
中古一戸建て
-
構造
鉄筋コン
-
階建
地上2階建
-
建ぺい率/容積率
60%/200%
-
建物面積
189.25㎡
/57.24坪
-
土地面積
574㎡
/173.63坪
-
築年月
1977年7月(築48年)
-
入居時期
相談
-
用途地域
準工業地域
-
地目
宅地 (現状:宅地)
-
都市計画
市街化区域
-
形状
間口 21.13m × 奥行 27.27m
-
道路
前面道路 長岡市道 東幹線69号
-
私道
-
-
その他の制限
大規模集客施設制限地区
物件詳細情報
-
所在階/階数
-
-
号室
-
-
販売価格
26,000,000円
-
方位
東
-
間取り
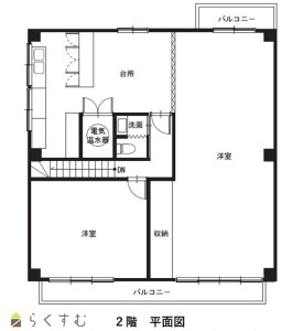
4DK (和室:6畳、9.5畳) (洋室:10、24)
-
専有面積
-
-
バルコニー面積
-
-
その他面積
-
-
駐車場
-
-
管理費
-
-
修繕積立金
-
-
現況
空家
-
仲介手数料
924,000円
-
利用制限
-
-
学校区
黒条小学校(1,833m)・堤岡中学校(1,820m)
-
設備
日当り良好、駐車3台以上可能、追いだき機能付き、バス1坪以上、温水洗浄便座、トイレ2か所以上、エアコンあり、都市ガス、上水道、下水道、2世帯向き、別荘、田舎暮らし、事業向け
-
取引態様
専属専任
-
情報登録日
2024/10/24
-
次回更新予定日
2026/04/17
-
取引条件有効期限
2024/06/30
備考
●給水引き込みあり(Φ20mm)●都市ガス引き込みあり(Φ30mm)●下水引き込みあり(公共桝設置)●敷地内電柱あり●前面道路幅員18m●裏に小屋あります●隣の敷地も含みます
取扱い会社
越路建設 株式会社
-
TEL
0258-34-3433
-
所在地
新潟県長岡市新町1-3-30
-
交通
新町1丁目バス停徒歩1分(ファミリーマート向かい)
-
営業時間
8:30~17:30/定休日:土曜・日曜・祭日
-
免許番号
新潟県知事(6)4072号
-
所属団体名
新潟県宅地建物取引業協会 長岡支部
-
取引態様
専属専任
Copyright (C) 株式会社 コモンライフ・コーポレーション. All Rights Reserved.
不動産検索サイト「らくすむ」及び関連サイトに記載の不動産情報は、会員規約に則り、情報提供会社様の責任のもとに発信されております。
不動産の賃借、購入に関しては賃借者、購入者ご自身が情報を確認され、会社企業様から説明を受けられたうえで判断をお願いいたします。
不動産検索サイト「らくすむ」及び関連サイトに記載の不動産情報、写真、デザイン、コンテンツなどの無断転載・転用・複製など禁止します。