
【中古住宅】長岡市十日町 中古住宅 詳細
お気に入り
追加済み
物件画像を詳しく見る

築浅中古住宅♪小学校隣で通学も楽々♪敷地も広々、カーポート2台付
物件概要
敷地の一部はアンテナ基地局として借地しております。※賃料については調査中
-
物件コード
00017-200357
-
物件名
【中古住宅】長岡市十日町 中古住宅
-
交通
駅:上越線 越後滝谷駅から徒歩29分、バス:十日町局前から徒歩3分
-
所在地
新潟県長岡市十日町1228番4
物件へのルート表示
-
物件種別
中古一戸建て
-
構造
木造
-
階建
地上2階建
-
建ぺい率/容積率
70%/200%
-
建物面積
115.66㎡
/34.98坪
-
土地面積
251.84㎡
/76.18坪
-
築年月
2018年1月(築8年)
-
入居時期
相談
-
用途地域
用途の指定のない地域
-
地目
宅地 (現状:宅地)
-
都市計画
市街化調整区域
-
形状
間口 11.9m × 奥行 22.9m
-
道路
北側:長岡市道幅員約6m/南側:長岡市道幅員約5.1m
-
私道
-
-
その他の制限
-
物件詳細情報
-
所在階/階数
-
-
号室
-
-
販売価格
23,000,000円
-
方位
北
-
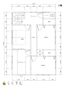
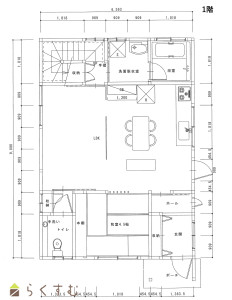
間取り
4LDK (和室:4.5畳) (洋室:6、6、6)、LDK17.5、3帖:サンルーム
-
専有面積
-
-
バルコニー面積
-
-
その他面積
9.91㎡
/2.99坪
ウォークインクローゼット
-
駐車場
-
-
管理費
-
-
修繕積立金
-
-
現況
空家
-
仲介手数料
825,000円
-
利用制限
-
-
学校区
十日町小学校(54m)・岡南中学校(1,250m)
-
設備
日当り良好、閑静な住宅街、新築時図面あり、建物確認・完了検査済証あり、LDK15帖以上、築10年以内、駐車3台以上可能、南向き、TVインターホン、複層ガラス、システムキッチン、IHクッキングヒーター、食器洗浄乾燥機、3口コンロ、追いだき機能付き、バス1坪以上、温水洗浄便座、トイレ2か所以上、シャワー付き洗面台、エアコンあり、24時間換気システム、オール電化、上水道、下水道、ウォークインクローゼット、全居室収納あり、シューズBOX
-
取引態様
一般
-
情報登録日
2026/02/12
-
次回更新予定日
2026/04/16
-
取引条件有効期限
2026/03/31
備考
●内覧希望の方は家財搬出後となりますので要相談●水道管は隣地の水道管を共用しているため、お住まいになる前に水道管引込付替え工事が必要となります●現況渡し●契約不適合責任免責
取扱い会社
有限会社 ABCホーム
Copyright (C) 株式会社 コモンライフ・コーポレーション. All Rights Reserved.
不動産検索サイト「らくすむ」及び関連サイトに記載の不動産情報は、会員規約に則り、情報提供会社様の責任のもとに発信されております。
不動産の賃借、購入に関しては賃借者、購入者ご自身が情報を確認され、会社企業様から説明を受けられたうえで判断をお願いいたします。
不動産検索サイト「らくすむ」及び関連サイトに記載の不動産情報、写真、デザイン、コンテンツなどの無断転載・転用・複製など禁止します。