物件画像を詳しく見る

人気の古正寺地区!2世帯向き住宅!スーパー徒歩5分!長岡西病院徒歩4分!三ツ郷屋児童公園前!
物件概要
人気の古正寺地区!2世帯向き住宅!スーパー徒歩5分!長岡西病院徒歩4分!三ツ郷屋児童公園前!
-
物件コード
00012-200109
-
物件名
古正寺町売家
-
交通
駅:上越新幹線 長岡駅から徒歩48分、バス:長岡西病院前から徒歩3分
-
所在地
新潟県長岡市古正寺町字中割10-7
物件へのルート表示
-
物件種別
中古一戸建て
-
構造
木造
-
階建
地上2階建
-
建ぺい率/容積率
60%/200%
-
建物面積
158.97㎡
/48.08坪
-
土地面積
196.15㎡
/59.33坪
-
築年月
1976年12月(築49年)
-
入居時期
随時入居(引き渡し)可
-
用途地域
第1種中高層住居専用地域
-
地目
宅地 (現状:宅地)
-
都市計画
市街化区域
-
形状
間口 9.09m × 奥行 21.58m
-
道路
長岡市道 日越46号線 6.0m
-
私道
-
-
その他の制限
第2種高度地区
物件詳細情報
-
所在階/階数
-
-
号室
-
-
販売価格
13,350,000円
-
方位
東
-
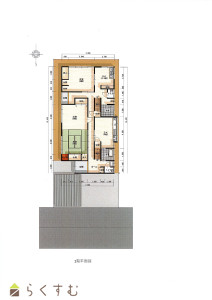
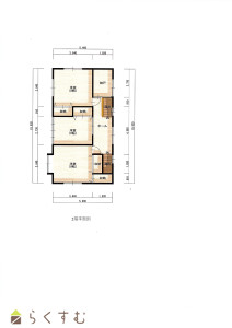
間取り
6DK (和室:8畳) (洋室:8、8、8、8、6)、DK8.DK4.5
-
専有面積
-
-
バルコニー面積
-
-
その他面積
-
-
駐車場
-
-
管理費
-
-
修繕積立金
-
-
現況
空家
-
仲介手数料
506,550円
-
利用制限
-
-
学校区
大島小学校(750m)・大島中学校(251m)
-
設備
閑静な住宅街、スーパー近く、駐車3台以上可能、トイレ2か所以上、都市ガス、上水道、下水道、2世帯向き
-
取引態様
一般
-
情報登録日
2026/03/18
-
次回更新予定日
2026/04/17
-
取引条件有効期限
2026/05/31
備考
2005年大幅リホーム工事済。但し、浴槽1個所は、利用不可等によりリホーム工事要す。
エアコン及びクーラーは、利用可の製品は、無償譲渡。
雨水排水は、道路占用許可を取得し現在利用中(名義変更要す。)
取扱い会社
株式会社 新日本地所
-
TEL
0258-33-8166
-
所在地
新潟県長岡市殿町1-3-3
-
交通
長岡駅より350m
-
営業時間
9:00~17:00/定休日:土曜・日曜・祭日 但し3月は土曜営業
-
免許番号
新潟県知事(14)第1068号
-
所属団体名
新潟県宅地建物取引業協会 長岡支部
-
取引態様
一般