
中古住宅『与板町城山1』 詳細
お気に入り
追加済み
物件画像を詳しく見る

城山公園すぐそばです
物件概要
-
物件コード
00011-200340
-
物件名
中古住宅『与板町城山1』
-
交通
バス:城山団地から徒歩3分
-
所在地
長岡市与板町城山1-5-4
物件へのルート表示
-
物件種別
中古一戸建て
-
構造
木造
-
階建
地上2階建
-
建ぺい率/容積率
60%/200%
-
建物面積
146.15㎡
/44.21坪
-
土地面積
425.07㎡
/128.58坪
-
築年月
不詳
-
入居時期
相談
-
用途地域
第1種住居地域
-
地目
宅地 (現状:宅地)
-
都市計画
市街化区域
-
形状
-
-
道路
与板178号線/与板179号線
-
私道
-
-
その他の制限
-
物件詳細情報
-
所在階/階数
-
-
号室
-
-
販売価格
15,000,000円
-
方位
-
-
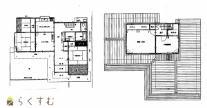
間取り
6DK (和室:3畳、8畳、8畳) (洋室:8、10、6)
-
専有面積
-
-
バルコニー面積
-
-
その他面積
-
-
駐車場
-
-
管理費
-
-
修繕積立金
-
-
現況
空家
-
仲介手数料
561,000円
-
利用制限
-
-
学校区
与板小学校(1,411m)・与板中学校(1,366m)
-
設備
角地、日当り良好、駐車2台可能、上水道、下水道、田舎暮らし
-
取引態様
一般
-
情報登録日
2025/11/21
-
次回更新予定日
2026/04/17
-
取引条件有効期限
2026/03/31
備考
取扱い会社
㈱スタッフサイトウ不動産部
Copyright (C) 株式会社 コモンライフ・コーポレーション. All Rights Reserved.
不動産検索サイト「らくすむ」及び関連サイトに記載の不動産情報は、会員規約に則り、情報提供会社様の責任のもとに発信されております。
不動産の賃借、購入に関しては賃借者、購入者ご自身が情報を確認され、会社企業様から説明を受けられたうえで判断をお願いいたします。
不動産検索サイト「らくすむ」及び関連サイトに記載の不動産情報、写真、デザイン、コンテンツなどの無断転載・転用・複製など禁止します。