
投資目算可能(現在年間1000万稼動) 年6% 詳細
お気に入り
追加済み
物件画像を詳しく見る

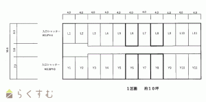
2.8t 2基クレーン付きです。建物W16.6m*D44m
物件概要
只今賃貸中です。
-
物件コード
00011-200226
-
物件名
投資目算可能(現在年間1000万稼動) 年6%
-
交通
駅:信越線 北長岡駅から徒歩25分、バス:北中学校前から徒歩5分
-
所在地
新潟県長岡市寿1丁目2-51
物件へのルート表示
-
物件種別
投資物件・その他
-
物件区分
1棟売りマンション・アパート
-
構造
鉄骨
-
階建
地上1階建
-
建ぺい率/容積率
60%/200%
-
建物面積
708.16㎡
/214.21坪
-
土地面積
1,658.5㎡
/501.69坪
-
築年月
1986年3月(築40年)
-
入居時期
相談
-
用途地域
準工業地域
-
地目
宅地 (現状:宅地)
-
都市計画
市街化区域
-
形状
間口 20m
-
道路
長岡286号
-
私道
-
-
その他の制限
-
物件詳細情報
-
所在階/階数
1階/1階
-
号室
-
-
販売価格
150,000,000円
-
表面利回り
(満室想定時)
6%
-
満室想定年収
-
(想定月収:
-
)
-
現行利回り
-
-
現行年間年収
-
-
住戸数
22
-
方位
-
-
間取り
-
-
専有面積
708.16㎡
/214.21坪
~
708.16㎡
/214.21坪
-
バルコニー面積
-
-
その他面積
-
-
駐車場
-
-
管理費
-
-
修繕積立金
-
-
現況
賃貸中
-
仲介手数料
5,016,000円
-
利用制限
-
-
学校区
新町小学校(1,114m)・北中学校(384m)
-
設備
事業向け
-
取引態様
一般
-
情報登録日
2025/11/18
-
次回更新予定日
2026/06/05
-
取引条件有効期限
2026/09/30
備考
2.8t2基クレーン付きです。建物W16.6m*D44m
取扱い会社
㈱スタッフサイトウ不動産部
Copyright (C) 株式会社 コモンライフ・コーポレーション. All Rights Reserved.
不動産検索サイト「らくすむ」及び関連サイトに記載の不動産情報は、会員規約に則り、情報提供会社様の責任のもとに発信されております。
不動産の賃借、購入に関しては賃借者、購入者ご自身が情報を確認され、会社企業様から説明を受けられたうえで判断をお願いいたします。
不動産検索サイト「らくすむ」及び関連サイトに記載の不動産情報、写真、デザイン、コンテンツなどの無断転載・転用・複製など禁止します。