
フローレンスⅢ(101) 詳細
101号室
お気に入り
追加済み
物件画像を詳しく見る

☆☆駐車場2台分込み☆☆
物件概要
-
賃料
5.5万円/月
-
管理費
なし
-
敷/礼
1ヶ月/
なし
-
間取り
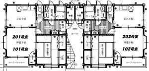
2DK (和室:6畳) (洋室:8)、DK6、追焚機能
-
広さ
52㎡
/15.73坪
-
階建
地上2階建
-
築年数
2003年3月(築23年)
-
種別
アパート・マンション・一戸建て
-
住所
新潟県長岡市中瀬1丁目1番地3
物件へのルート表示
-
交通
バス:宝4丁目から徒歩3分
-
物件コード
00008-100004
-
物件名
フローレンスⅢ(101)
-
交通
バス:宝4丁目から徒歩3分
-
所在地
新潟県長岡市中瀬1丁目1番地3
物件へのルート表示
-
物件種別
アパート・マンション・一戸建て
-
総戸数
4戸
-
構造
木造
-
階建
地上2階建
-
所在階/階数
1階/2階
-
号室
101号室
-
専有面積
52㎡
/15.73坪
-
方位
指定なし
-
間取り
2DK (和室:6畳) (洋室:8)、DK6、追焚機能
-
賃料
5.5万円/月
-
管理費
-
-
礼金
-
-
敷金
1ヶ月
-
共益費
-
-
ほか初期費用
-
-
その他諸費用
賃貸保証料(契約時33,300円 毎月650円)
-
更新料
-
-
火災(家財)保険
23,260円
-
駐車場
2台分
-
町内費
500円
-
バイク料金
-
-
鍵交換費
-
-
清掃料
-
-
賃貸保証料(契約時)
33,300円
-
更新事務手数料
-
-
保証区分
保証会社+緊急連絡先
-
保証会社
区分:加入要
保証会社名:ジェイリース
契約時保証料 33,300円
毎月保証料 650円
-
連帯保証人
[区分]
不要
-
-
仲介手数料
60,500円
-
手数料負担割合
貸主:0%
借主:100%
-
手数料配分割合
元付:50%
客付:50%
-
築年月
2003年3月(築23年)
-
利用制限
ペット:不可
-
学校区
黒条小学校(1,390m)・堤岡中学校(1,416m)
-
設備
閑静な住宅街、耐震住宅、タイヤ置き場、駐車場2台無料、南向き、角住居、出窓、バストイレ別、追いだき機能付き、洗面所独立、エアコン、都市ガス、バルコニー、複層サッシ、トランクルーム、保証会社利用可能、新婚・カップル向け、■駐車場2台分込 ■追焚機能 ■融雪装置 ■エアコン ■トランクルーム
-
入居時期
即入居可
-
取引態様
仲介
-
情報登録日
2026/03/10
-
次回更新予定日
2026/04/20
備考
取扱い会社
株式会社 島岡不動産企画
Copyright (C) 株式会社 コモンライフ・コーポレーション. All Rights Reserved.
不動産検索サイト「らくすむ」及び関連サイトに記載の不動産情報は、会員規約に則り、情報提供会社様の責任のもとに発信されております。
不動産の賃借、購入に関しては賃借者、購入者ご自身が情報を確認され、会社企業様から説明を受けられたうえで判断をお願いいたします。
不動産検索サイト「らくすむ」及び関連サイトに記載の不動産情報、写真、デザイン、コンテンツなどの無断転載・転用・複製など禁止します。