※画像はイメージとなり実物と異なる場合があります。
前面道路は消雪パイプがありますので、冬も安心です。
物件画像を詳しく見る

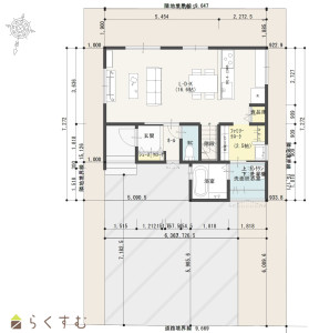
LDKは3面採光で16.6帖♪◆乾太くんデラックス設置◆WIC◆前面道路には消雪パイプ有
物件概要
◆上組小学校・宮内中学校エリアの建売住宅です。 ◆対面キッチンのLDKは16.6帖となっています。3面採光で明るく開放的な空間です。 ◆前面道路には消雪パイプが設置されています。 ◆脱衣室に「乾太くんデラックス」が設置されています。 ◆2階寝室には2.5帖のウォークインクローゼットが付いています。
-
物件コード
00007-200755
-
物件名
長岡市下条町 建売住宅
-
交通
駅:信越線 宮内駅から徒歩22分、バス:農協低温倉庫前から徒歩1分
-
所在地
新潟県長岡市下条町字田中1427番5、1427番8
物件へのルート表示
-
物件種別
新築一戸建て
-
構造
木造
-
階建
地上2階建
-
建ぺい率/容積率
50%/100%
-
建物面積
88.13㎡
/26.65坪
-
土地面積
146.67㎡
/44.36坪
-
築年月
2026年6月完成予定
-
入居時期
相談
-
用途地域
第1種低層住居専用地域
-
地目
宅地
-
都市計画
市街化区域
-
形状
-
-
道路
-
-
私道
北側:位置指定道路 4.50m
-
その他の制限
-
物件詳細情報
-
所在階/階数
-
-
号室
-
-
販売価格
23,800,000円
-
方位
東
-
間取り
3LDK (洋室:7、6、6)、LDK16.6、建築確認番号:NK第25長00670号
-
専有面積
-
-
バルコニー面積
-
-
その他面積
-
-
駐車場
-
-
管理費
-
-
修繕積立金
-
-
現況
指定なし
-
仲介手数料
なし
-
利用制限
-
-
学校区
上組小学校(183m)・宮内中学校(1,653m)
-
設備
整形地、日当り良好、BELS/省エネ基準適合認定建物、フラット35S適合、LDK15畳以上、全室フローリング、駐車場2台以上、駐車場3台以上、南向き、庭あり、TVインターホン、複層ガラス、ディンプルキー、システムキッチン、IHクッキングヒーター、浄水器、3口コンロ、追いだき機能付き、バス1坪以上、温水洗浄便座、シャワー付き洗面台、エアコン、24時間換気システム、省エネ給湯、高気密高断熱住宅、都市ガス、上水道、下水道、電気、ウォークインクローゼット、全居室収納あり、床下収納、シューズインクローゼット、照明器具付き
-
取引態様
売主
-
情報登録日
2026/03/08
-
次回更新予定日
2026/04/17
-
取引条件有効期限
2026/05/01
備考
・高さ制限:10m
・外壁後退:なし
・第一種高度地区
・22条指定区域
※物件掲載内容と現況に相違がある場合は現況を優先と致します。
詳細はお気軽にお問い合わせください。
担当:藤崎
携帯:090-2763-5443
取扱い会社
有限会社 一代工務店