物件画像を詳しく見る

【建築条件なし・仲介手数料不要!】長岡市浦約61坪の整形の土地!前面融雪道路で冬も安心です。確定測量済み、各種ライフライン宅内配管済(都市ガス、水道、下水道等)
物件概要
-
物件コード
00005-200534
-
物件名
長岡市浦整形61坪土地
-
交通
駅:信越線 来迎寺駅から徒歩24分、バス:浦から徒歩2分
-
所在地
新潟県長岡市浦9932-1
物件へのルート表示
-
物件種別
売土地・分譲地
-
物件区分
売土地
-
構造
-
-
階建
-
-
建ぺい率/容積率
60%/200%
-
建物面積
-
-
土地面積
204.23㎡
/61.77坪
-
築年月
-
-
入居時期
即入居可
-
用途地域
第1種住居地域
-
地目
宅地 (現状:宅地)
-
都市計画
市街化区域
-
形状
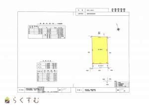
間口 10.7m × 奥行 18.5m
-
道路
北側約14m融雪県道
-
私道
-
-
その他の制限
-
物件詳細情報
-
所在階/階数
-
-
号室
-
-
販売価格
5,500,000円
-
方位
-
-
間取り
-
-
専有面積
-
-
バルコニー面積
-
-
その他面積
-
-
駐車場
-
-
管理費
-
-
修繕積立金
-
-
現況
-
仲介手数料
なし
-
利用制限
-
-
学校区
越路小学校(808m)・越路中学校(2,303m)
-
設備
前道6m以上、更地、所有権、都市ガス(宅地内)、上水道(宅地内)、下水道(宅地内)
-
取引態様
売主
-
情報登録日
2025/09/20
-
次回更新予定日
2025/10/16
-
取引条件有効期限
2025/12/31
備考
※都市ガス、水道、下水道、雨水桝宅地内配管
※確定測量済み
区費:20,000円/年
町内会費:3,000円/年
消雪費:7,000円/年
その他、祭費等あり。
取扱い会社
株式会社 和興不動産
-
TEL
0258-35-1321
-
所在地
新潟県長岡市旭町2-3-1
-
交通
長岡駅より徒歩8分
-
営業時間
9:00~18:00/定休日:日曜・祝日(事前予約で日曜・祝日のご案内可能です)
-
免許番号
新潟県知事第(16)0387号
-
所属団体名
全国宅地建物取引業保証協会
-
取引態様
売主