1
物件掲載企業数:
301
社
|賃貸物件:
3,258
件|売買物件:
3,253
件|今週の登録物件:
245
件
閲覧中のブラウザ(インターネットエクスプローラー)は非推奨ブラウザです。
物件が正しく表示されなかったり、正しく検索されない場合があります。最新のブラウザ(Google Chrome・Edgeなど)にてご利用お願いいたします。
Google Chrome
Microsoft Edge
アパート・マンション・一戸建て
駐車場
貸土地
店舗
事務所
倉庫・工場
新築分譲マンション
中古マンション
新築一戸建て
中古一戸建て
売土地・分譲地
その他(投資物件など)
マンション
一戸建て
土地
ホーム
>
会社情報
>
物件種別選択
> 物件一覧
全エリア
の
売土地・分譲地
物件情報
2031件
該当しました。
<前のページ
90
91
92
93
94
95
96
97
98
99
100
次のページ>
表示切替:
一覧表示
/
地図表示
並び替え:
指定なし
新着順
価格が安い順
価格が高い順
画像
物件名/所在地/取扱店
詳細
ゆとりある302.04㎡(91.36坪)の整形地
家族にやさしい北城町2丁目の土地
新潟県上越市北城町2丁目105-4
ピタットハウス上越店 日建不動産
価格
:
16,000,000
円
土地面積
:302.04㎡ /91.36坪
坪単価
:175,131円/坪
建ぺい率
:50%
容積率
:80%
アクセスが良い環境です。
上刈4丁目
新潟県糸魚川市上刈4丁目22-35 付近
リアルエステイトZest
価格
:
16,000,000
円
土地面積
:534.29㎡ /161.62坪
坪単価
:98,997円/坪
建ぺい率
:60%
容積率
:200%
喜多町約185坪の広々とした土地♪スーパーまで徒歩約5分♪国道8号線長岡バイパスまでのアクセス良好♪
喜多町 売土地
新潟県長岡市喜多町638-1
髙頭不動産 株式会社
価格
:
16,100,000
円
土地面積
:612.93㎡ /185.41坪
坪単価
:86,834円/坪
建ぺい率
:60%
容積率
:200%
下条町 売土地 360坪
新潟県長岡市下条町1460
有限会社 しのだ不動産
価格
:
16,200,000
円
土地面積
:1,193㎡ /360.88坪
坪単価
:44,890円/坪
建ぺい率
:70%
容積率
:200%
♪広々260坪♪ 前面道路8m 消雪設備あり
【藤橋】 売土地 広々259.28坪
長岡市藤橋1丁目183-3、4
株式会社ミライ’s R Estate
価格
:
16,200,000
円
土地面積
:857.14㎡ /259.28坪
坪単価
:62,480円/坪
建ぺい率
:70%
容積率
:200%
スーパー・コンビニ・個人病院等商業施設が近隣に有り♪
◆売地◆三条市東本成寺
新潟県三条市東本成寺605番30
株式会社 ユタカ不動産
価格
:
16,200,000
円
土地面積
:396.75㎡ /120.01坪
坪単価
:134,988円/坪
建ぺい率
:70%
容積率
:200%
アクロスプラザ長岡徒歩10分圏内♪国道17号線へのアクセスも良好です
【売り土地】長岡市川崎2丁目売り土地
新潟県長岡市川崎2丁目2575番3
有限会社 ABCホーム
価格
:
16,300,000
円
土地面積
:255.57㎡ /77.3坪
坪単価
:210,866円/坪
建ぺい率
:60%
容積率
:200%
【北東角地×55坪】建築条件なし・左岸バイパス近く・大島中エリア ■更地の整形角地で陽当たり良好 ■商業施設徒歩圏の好立地 ■前面道路に消雪設備あり
長岡市西津町 売土地
新潟県長岡市西津町3785-10
新潟土地建物販売センター 株式会社
価格
:
16,500,000
円
土地面積
:182.76㎡ /55.28坪
坪単価
:298,480円/坪
建ぺい率
:70%
容積率
:200%
東区中野山6丁目
新潟県新潟市東区中野山6丁目11-12
株式会社 あすなろ不動産
価格
:
16,500,000
円
土地面積
:186.66㎡ /56.46坪
坪単価
:292,242円/坪
建ぺい率
:50%
容積率
:100%
◇◆ 人気の大島エリア売り土地 約55坪 ◆◇
長岡市西津町売り土地
新潟県長岡市西津町3785-10
ADI 株式会社
価格
:
16,500,000
円
土地面積
:182.76㎡ /55.28坪
坪単価
:298,480円/坪
建ぺい率
:60%
容積率
:200%
柏崎IC近くの事業用約300坪
柏崎市両田尻/約300坪売土地
新潟県柏崎市両田尻163-1付近
株式会社 阿部建設
価格
:
16,500,000
円
土地面積
:991㎡ /299.77坪
坪単価
:55,042円/坪
建ぺい率
:70%
容積率
:200%
レジャー・買い物・飲食まで全てが揃う古正寺エリアまでアクセス抜群♪ 国道8号線へもアクセス良好♪
長岡市寺島町 売地
新潟県長岡市寺島町844
髙頭不動産 株式会社
価格
:
16,700,000
円
土地面積
:221.33㎡ /66.95坪
坪単価
:249,439円/坪
建ぺい率
:60%
容積率
:200%
■閑静な住宅街エリア!落ち着いた住環境で、子育て世代にもおすすめです。 ■豊田小学校まで徒歩約6分(450m)、旭岡中学校まで徒歩約3分(220m)お子さまの通学も安心の立地。 ■スーパー・コンビニ・総合病院など生活利便施設が整った暮らしやすい住環境。 ■長岡東バイパスアクセス良好!通勤・お出かけにも便利な立地です。
長岡市旭岡2丁目 ※建築条件付き
新潟県長岡市旭岡2丁目210番地の西側隣地
ハーバーエステート株式会社
価格
:
16,780,000
円
土地面積
:233.75㎡ /70.7坪
坪単価
:237,340円/坪
建ぺい率
:60%
容積率
:200%
【建物解体更地引き渡し】 店舗用地としても活用できます♪
大島本町2丁目 売土地
新潟県長岡市大島本町2丁目8番地5
SUMORE NAGAOKA KONOMA Real Estate co.,ltd.
価格
:
16,800,000
円
土地面積
:248.67㎡ /75.22坪
坪単価
:223,344円/坪
建ぺい率
:80%
容積率
:200%
店舗併用住宅取得者向けです。
土橋2567
新潟県上越市土橋2567
有限会社 春日土地建物
価格
:
16,800,000
円
土地面積
:462.21㎡ /139.81坪
坪単価
:120,163円/坪
建ぺい率
:60%
容積率
:200%
半田エリアに205坪の大型物件
半田2丁目 売土地
新潟県柏崎市半田2丁目1725-1他
株式会社 ライフプラン
価格
:
16,800,000
円
土地面積
:680.95㎡ /205.98坪
坪単価
:81,561円/坪
建ぺい率
:70%
容積率
:200%
西宮内1丁目 売土地 103坪
新潟県長岡市西宮内1丁目102
株式会社 金井不動産
価格
:
16,800,000
円
土地面積
:342㎡ /103.45坪
坪単価
:162,397円/坪
建ぺい率
:60%
容積率
:200%
十日町病院近くの車通りの多い市道に面しているので、事業用にも適しています。前面道路に消雪パイプと流雪溝完備で冬季も安心。
十日町市春日町三丁目 売土地
新潟県十日町市春日町3丁目187番、188番
株式会社 エヌ・アール・ケー総合企画
価格
:
16,928,400
円
土地面積
:466.38㎡ /141.07坪
坪単価
:120,000円/坪
建ぺい率
:60%
容積率
:200%
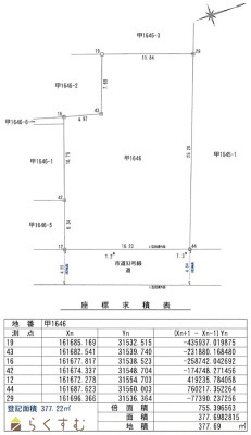
月極駐車場付き(12台)駐車場5,000円/1台/月 (税別) 駐車場部のみアスファルト敷 賃料収入49,500円/月(2026年1月現在)
稽古町 月極駐車場付売土地
新潟県長岡市稽古町1646番地
株式会社 高野不動産販売
価格
:
17,000,000
円
土地面積
:377.22㎡ /114.1坪
坪単価
:148,992円/坪
建ぺい率
:60%
容積率
:200%
人気の古正寺エリアに新規分譲地が登場!
≪ミサワホームの分譲宅地≫長岡市古正寺3丁目 区画A
新潟県長岡市古正寺3丁目229-1他
ミサワホーム北越 株式会社
[価格]
17,100,000
円
[土地面積]
201.87㎡ /61.06坪
[坪単価]
280,052円/坪
表示切替:
一覧表示
/
地図表示
並び替え:
指定なし
新着順
価格が安い順
価格が高い順
価格は物件の代金総額を表示しており、消費税が課税される場合は税込み価格です。
建築条件付き土地価格には、建物価格は含まれません。
物件情報の詳細については取り扱い店までお問い合わせください。
完成予想図はいずれも外構・植栽・外観等実際のものと異なることが多少あります。
CG合成の画像の場合実際と異なることが多少あります。
完成後1年以上経過したものが未入居として記載される場合があります。ご了承ください。
販売予定物件は販売開始するまで契約または予約の申し込みはできません。
ご購入の場合物件詳細や契約内容についてご自身で十分ご確認いただきますようよろしく御願いします。
建築条件付きとは…その土地に建築する建物の建築請負契約が、一定期間内に成立することを条件として売買される土地のことをいいます。請負契約成立に向けて設計プランを協議するため、土地購入者が希望する建物にするために一定の期間(概ね3ヶ月)交渉期間としその期間内に希望するプランが実現できたかどうかによって土地の購入の判断をします。納得のいくプランができず請負契約が未成立になった場合、土地契約にかかった代金(手付金など)は、すべて返却されます。
2031件
該当しました。
<前のページ
90
91
92
93
94
95
96
97
98
99
100
次のページ>
0件
がマッチ
基本条件
物件種別
売土地・分譲地
詳細種別
売土地
分譲地
価格
下限なし
100万円
250万円
500万円
1000万円
1500万円
2000万円
2500万円
3000万円
3500万円
4000万円
4500万円
5000万円
5500万円
6000万円
6500万円
7000万円
7500万円
8000万円
8500万円
9000万円
9500万円
1億円
~
上限なし
100万円
250万円
500万円
1000万円
1500万円
2000万円
2500万円
3000万円
3500万円
4000万円
4500万円
5000万円
5500万円
6000万円
6500万円
7000万円
7500万円
8000万円
8500万円
9000万円
9500万円
1億円
間取り
ワンルーム
1K
1DK
1LDK
2K
2DK
2LDK
3K
3DK
3LDK
4K
4DK
4LDK以上
専有面積
下限なし
20㎡
30㎡
40㎡
50㎡
60㎡
70㎡
80㎡
90㎡
100㎡
~
上限なし
20㎡
30㎡
40㎡
50㎡
60㎡
70㎡
80㎡
90㎡
100㎡
土地面積
下限なし
60㎡ (約18坪)
70㎡ (約21坪)
80㎡ (約24坪)
90㎡ (約27坪)
100㎡ (約30坪)
110㎡ (約33坪)
120㎡ (約36坪)
130㎡ (約39坪)
140㎡ (約42坪)
150㎡ (約45坪)
160㎡ (約48坪)
170㎡ (約51坪)
180㎡ (約54坪)
190㎡ (約57坪)
200㎡ (約60坪)
250㎡ (約75坪)
300㎡ (約90坪)
~
上限なし
60㎡ (約18坪)
70㎡ (約21坪)
80㎡ (約24坪)
90㎡ (約27坪)
100㎡ (約30坪)
110㎡ (約33坪)
120㎡ (約36坪)
130㎡ (約39坪)
140㎡ (約42坪)
150㎡ (約45坪)
160㎡ (約48坪)
170㎡ (約51坪)
180㎡ (約54坪)
190㎡ (約57坪)
200㎡ (約60坪)
250㎡ (約75坪)
300㎡ (約90坪)
建物面積
下限なし
60㎡ (約18坪)
70㎡ (約21坪)
80㎡ (約24坪)
90㎡ (約27坪)
100㎡ (約30坪)
110㎡ (約33坪)
120㎡ (約36坪)
130㎡ (約39坪)
140㎡ (約42坪)
150㎡ (約45坪)
160㎡ (約48坪)
170㎡ (約51坪)
180㎡ (約54坪)
190㎡ (約57坪)
200㎡ (約60坪)
250㎡ (約75坪)
300㎡ (約90坪)
~
上限なし
60㎡ (約18坪)
70㎡ (約21坪)
80㎡ (約24坪)
90㎡ (約27坪)
100㎡ (約30坪)
110㎡ (約33坪)
120㎡ (約36坪)
130㎡ (約39坪)
140㎡ (約42坪)
150㎡ (約45坪)
160㎡ (約48坪)
170㎡ (約51坪)
180㎡ (約54坪)
190㎡ (約57坪)
200㎡ (約60坪)
250㎡ (約75坪)
300㎡ (約90坪)
坪単価
下限なし
5万円
10万円
15万円
20万円
25万円
30万円
35万円
40万円
45万円
50万円
~
上限なし
5万円
10万円
15万円
20万円
25万円
30万円
35万円
40万円
45万円
50万円
築年数
指定なし
新築
3年以内
5年以内
10年以内
15年以内
20年以内
方位
北
北東
東
南東
南
南西
西
北西
おすすめ条件
ペット可・相談
楽器可・相談
情報公開日
指定なし
本日
3日以内
1週間以内
1ヶ月以内
0件
がマッチ
人気のあるこだわり条件
高台に立地(104)
角地(370)
整形地(712)
前道6m以上(969)
南側道路面す(384)
更地(1174)
学校近く(552)
スーパー近く(403)
最寄り駅近く(229)
閑静な住宅街(936)
分割可能(47)
建築条件なし(1497)
所有権(1611)
即引き渡し可(661)
側溝(683)
都市ガス(前面道路)(791)
LPG(157)
上水道(前面道路)(897)
下水道(前面道路)(817)
浄化槽(75)
電気(898)
都市ガス(宅地内)(831)
上水道(宅地内)(1061)
下水道(宅地内)(967)
前面道路融雪設備あり(407)
その他水道(2)
住宅向け(1412)
事業用向け(317)
別荘地(116)
田舎暮らし(230)
条件に合った物件数は、
0 件
です。
立地・環境
高台に立地(104)
角地(370)
整形地(712)
前道6m以上(969)
南側道路面す(384)
更地(1174)
学校近く(552)
スーパー近く(403)
最寄り駅近く(229)
閑静な住宅街(936)
用途・制限
分割可能(47)
建築条件なし(1497)
引渡・条件
所有権(1611)
即引き渡し可(661)
設備
側溝(683)
都市ガス(前面道路)(791)
LPG(157)
上水道(前面道路)(897)
下水道(前面道路)(817)
浄化槽(75)
電気(898)
都市ガス(宅地内)(831)
上水道(宅地内)(1061)
下水道(宅地内)(967)
前面道路融雪設備あり(407)
その他水道(2)
その他
住宅向け(1412)
事業用向け(317)
別荘地(116)
田舎暮らし(230)
条件に合った物件数は、
0 件
です。
アパート・マンション・一戸建て
/
駐車場
/
貸土地
/
店舗
/
事務所
/
倉庫・工場
新築分譲マンション
/
中古マンション
/
新築一戸建て
/
中古一戸建て
/
売土地
/
投資物件・その他
マンション
/
一戸建て
/
土地
建てる・リフォーム
物件掲載企業一覧
掲載希望の企業様へ
新潟の不動産情報サイト
サービス利用規約
運営会社
サイトマップ
プライバシーポリシー
お問い合わせ
リンク
Copyright (C)
株式会社 コモンライフ・コーポレーション
. All Rights Reserved.
新潟・長岡・柏崎の賃貸・マンション・アパート・住宅の不動産物件情報サイト
不動産検索サイト「らくすむ」及び関連サイトに記載の不動産情報は、会員規約に則り、情報提供会社様の責任のもとに発信されております。
不動産の賃借、購入に関しては賃借者、購入者ご自身が情報を確認され、会社企業様から説明を受けられたうえで判断をお願いいたします。
不動産検索サイト「らくすむ」及び関連サイトに記載の不動産情報、写真、デザイン、コンテンツなどの
無断転載・転用・複製
など禁止します。