1
物件掲載企業数:
295
社
|賃貸物件:
3,242
件|売買物件:
3,308
件|今週の登録物件:
315
件
閲覧中のブラウザ(インターネットエクスプローラー)は非推奨ブラウザです。
物件が正しく表示されなかったり、正しく検索されない場合があります。最新のブラウザ(Google Chrome・Edgeなど)にてご利用お願いいたします。
Google Chrome
Microsoft Edge
アパート・マンション・一戸建て
駐車場
貸土地
店舗
事務所
倉庫・工場
新築分譲マンション
中古マンション
新築一戸建て
中古一戸建て
売土地・分譲地
その他(投資物件など)
マンション
一戸建て
土地
ホーム
>
検索方法選択
>
エリア選択
> 物件一覧
全エリア
の
売土地・分譲地
一覧
2053件
該当しました。
<前のページ
92
93
94
95
96
97
98
99
100
101
102
次のページ>
表示切替:
一覧表示
/
地図表示
並び替え:
指定なし
新着順
価格が安い順
価格が高い順
画像
物件名/所在地/取扱店
詳細
十日町病院近くの車通りの多い市道に面しているので、事業用にも適しています。前面道路に消雪パイプと流雪溝完備で冬季も安心。
十日町市春日町三丁目 売土地
新潟県十日町市春日町3丁目187番、188番
株式会社 エヌ・アール・ケー総合企画
価格
:
16,928,400
円
土地面積
:466.38㎡ /141.07坪
坪単価
:120,000円/坪
建ぺい率
:60%
容積率
:200%
宮内8丁目、ショッピングセンターへのアクセスもよく広々とした土地となります♪解体更地渡しです。
宮内8丁目 141坪 売土地
新潟県長岡市宮内8丁目10番22号
有限会社 ABCホーム
価格
:
17,000,000
円
土地面積
:466.76㎡ /141.19坪
坪単価
:120,405円/坪
建ぺい率
:60%
容積率
:200%
長岡市金町(栃尾)
新潟県長岡市金町2丁目丙155-4
イワコンハウス新潟 株式会社
価格
:
17,000,000
円
土地面積
:1,115.44㎡ /337.42坪
坪単価
:50,382円/坪
建ぺい率
:-
容積率
:-
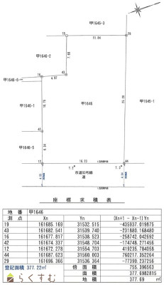
月極駐車場付き(12台)駐車場5,000円/1台/月 (税別) 駐車場部のみアスファルト敷 賃料収入49,500円/月(2026年1月現在)
稽古町 月極駐車場付売土地
新潟県長岡市稽古町1646番地
株式会社 高野不動産販売
価格
:
17,000,000
円
土地面積
:377.22㎡ /114.1坪
坪単価
:148,992円/坪
建ぺい率
:60%
容積率
:200%
人気の古正寺エリアに新規分譲地が登場!
≪ミサワホームの分譲宅地≫長岡市古正寺3丁目 区画A
新潟県長岡市古正寺3丁目229-1他
ミサワホーム北越 株式会社
[価格]
17,100,000
円
[土地面積]
201.87㎡ /61.06坪
[坪単価]
280,052円/坪
南西向きの角地。正面は公園。ゆとりのある土地です。
長岡市新組町 売土地
長岡市新組町2155番18
(株)池田組
価格
:
17,140,000
円
土地面積
:333.27㎡ /100.81坪
坪単価
:170,022円/坪
建ぺい率
:70%
容積率
:200%
広々した土地!ドラッグストアまで徒歩3分!建物は解体後、更地での引渡し。
渡場町売土地
新潟県長岡市渡場町1-7
髙頭不動産 株式会社
価格
:
17,200,000
円
土地面積
:474㎡ /143.38坪
坪単価
:119,960円/坪
建ぺい率
:50%
容積率
:80%
小学校も中学校も近く立地も良い住宅地です
五智3丁目 150坪 売地 1740万
新潟県上越市五智3丁目地内
木嶋不動産コンサルタント株式会社
価格
:
17,400,000
円
土地面積
:499.07㎡ /150.96坪
坪単価
:115,262円/坪
建ぺい率
:60%
容積率
:200%
柳原公園近く、平潟神社もすぐそばです
売土地『柳原町』 ***商談中***
長岡市柳原町2-15
㈱スタッフサイトウ不動産部
価格
:
17,500,000
円
土地面積
:321.15㎡ /97.14坪
坪単価
:180,152円/坪
建ぺい率
:80%
容積率
:300%
秋葉区北上1丁目の閑静な住環境で、コンビニや薬局も徒歩10分圏内。広い敷地を活かして理想の住まいを♪
秋葉区北上Bright土地
新潟県新潟市秋葉区北上1丁目185-4,185-6,185-11
有限会社 ブライトサクセス
価格
:
17,500,000
円
土地面積
:369.41㎡ /111.74坪
坪単価
:156,613円/坪
建ぺい率
:60%
容積率
:200%
駅近
宮内2丁目売り土地
新潟県長岡市宮内2丁目3051-3他2丁目3051-3・3055-1
有限会社 関不動産
価格
:
17,735,000
円
土地面積
:254.93㎡ /77.11坪
坪単価
:229,996円/坪
建ぺい率
:60%
容積率
:200%
アパートや事業用地として最適な立地!約360坪
柏崎市安政町売土地/約360坪
新潟県柏崎市安政町1-29付近
株式会社 阿部建設
価格
:
18,000,000
円
土地面積
:1,190.08㎡ /359.99坪
坪単価
:50,000円/坪
建ぺい率
:60%
容積率
:200%
長岡駅徒歩圏内物件(約12分)利便性の良い住宅地です。
南町2丁目
新潟県長岡市南町2丁目14番
株式会社 高野不動産販売
価格
:
18,000,000
円
土地面積
:218.88㎡ /66.21坪
坪単価
:272,729円/坪
建ぺい率
:60%
容積率
:200%
人気の古正寺エリアの分譲宅地! モデルハウスモニター募集中!お気軽にお問い合わせください。
≪ミサワホームの分譲地≫長岡市古正寺1丁目 区画①
新潟県長岡市古正寺1丁目
ミサワホーム北越 株式会社
[価格]
18,000,000
円
[土地面積]
225.12㎡ /68.09坪
[坪単価]
264,355円/坪
笹崎3丁目2-6
新潟県長岡市笹崎3-2-6
有限会社 長井不動産
価格
:
18,000,000
円
土地面積
:432.74㎡ /130.9坪
坪単価
:137,509円/坪
建ぺい率
:60%
容積率
:200%
【建築条件無し】144.59坪の広々とした敷地で広がる建築プラン♪
長岡市草生津一丁目 売土地
新潟県長岡市草生津1丁目6-33
髙頭不動産 株式会社
価格
:
18,000,000
円
土地面積
:478㎡ /144.59坪
坪単価
:124,489円/坪
建ぺい率
:60%
容積率
:200%
土地
妙高市高柳1丁目
えちご上越農業協同組合
価格
:
18,180,000
円
土地面積
:601㎡ /181.8坪
坪単価
:100,000円/坪
建ぺい率
:60%
容積率
:200%
日当たりの良い南向き
北城町1丁目 売地
上越市北城町1丁目
上越宅地販売株式会社
価格
:
18,400,000
円
土地面積
:611㎡ /184.82坪
坪単価
:99,556円/坪
建ぺい率
:60%
容積率
:200%
白山駅から徒歩8分、買い物にも近く便利な立地です。
中央区川岸町3丁目売地
新潟県新潟市中央区川岸町3丁目20-19
橋本建設 株式会社
価格
:
18,700,000
円
土地面積
:140㎡ /42.35坪
坪単価
:441,558円/坪
建ぺい率
:60%
容積率
:200%
約84坪のゆったりとした敷地です!ウオロク蓮潟店まで徒歩6分 古正寺エリアまで車で5分です!
蓮潟2丁目 売地
新潟県長岡市蓮潟2丁目9-17
ふどうさんの相談所 (ライフデザイン合同会社 イオン長岡店)
価格
:
19,000,000
円
土地面積
:278.39㎡ /84.21坪
坪単価
:225,626円/坪
建ぺい率
:60%
容積率
:200%
表示切替:
一覧表示
/
地図表示
並び替え:
指定なし
新着順
価格が安い順
価格が高い順
価格は物件の代金総額を表示しており、消費税が課税される場合は税込み価格です。
建築条件付き土地価格には、建物価格は含まれません。
物件情報の詳細については取り扱い店までお問い合わせください。
完成予想図はいずれも外構・植栽・外観等実際のものと異なることが多少あります。
CG合成の画像の場合実際と異なることが多少あります。
完成後1年以上経過したものが未入居として記載される場合があります。ご了承ください。
販売予定物件は販売開始するまで契約または予約の申し込みはできません。
ご購入の場合物件詳細や契約内容についてご自身で十分ご確認いただきますようよろしく御願いします。
建築条件付きとは…その土地に建築する建物の建築請負契約が、一定期間内に成立することを条件として売買される土地のことをいいます。請負契約成立に向けて設計プランを協議するため、土地購入者が希望する建物にするために一定の期間(概ね3ヶ月)交渉期間としその期間内に希望するプランが実現できたかどうかによって土地の購入の判断をします。納得のいくプランができず請負契約が未成立になった場合、土地契約にかかった代金(手付金など)は、すべて返却されます。
2053件
該当しました。
<前のページ
92
93
94
95
96
97
98
99
100
101
102
次のページ>
0件
がマッチ
基本条件
物件種別
売土地・分譲地
詳細種別
売土地
分譲地
価格
下限なし
100万円
250万円
500万円
1000万円
1500万円
2000万円
2500万円
3000万円
3500万円
4000万円
4500万円
5000万円
5500万円
6000万円
6500万円
7000万円
7500万円
8000万円
8500万円
9000万円
9500万円
1億円
~
上限なし
100万円
250万円
500万円
1000万円
1500万円
2000万円
2500万円
3000万円
3500万円
4000万円
4500万円
5000万円
5500万円
6000万円
6500万円
7000万円
7500万円
8000万円
8500万円
9000万円
9500万円
1億円
間取り
ワンルーム
1K
1DK
1LDK
2K
2DK
2LDK
3K
3DK
3LDK
4K
4DK
4LDK以上
専有面積
下限なし
20㎡
30㎡
40㎡
50㎡
60㎡
70㎡
80㎡
90㎡
100㎡
~
上限なし
20㎡
30㎡
40㎡
50㎡
60㎡
70㎡
80㎡
90㎡
100㎡
土地面積
下限なし
60㎡ (約18坪)
70㎡ (約21坪)
80㎡ (約24坪)
90㎡ (約27坪)
100㎡ (約30坪)
110㎡ (約33坪)
120㎡ (約36坪)
130㎡ (約39坪)
140㎡ (約42坪)
150㎡ (約45坪)
160㎡ (約48坪)
170㎡ (約51坪)
180㎡ (約54坪)
190㎡ (約57坪)
200㎡ (約60坪)
250㎡ (約75坪)
300㎡ (約90坪)
~
上限なし
60㎡ (約18坪)
70㎡ (約21坪)
80㎡ (約24坪)
90㎡ (約27坪)
100㎡ (約30坪)
110㎡ (約33坪)
120㎡ (約36坪)
130㎡ (約39坪)
140㎡ (約42坪)
150㎡ (約45坪)
160㎡ (約48坪)
170㎡ (約51坪)
180㎡ (約54坪)
190㎡ (約57坪)
200㎡ (約60坪)
250㎡ (約75坪)
300㎡ (約90坪)
建物面積
下限なし
60㎡ (約18坪)
70㎡ (約21坪)
80㎡ (約24坪)
90㎡ (約27坪)
100㎡ (約30坪)
110㎡ (約33坪)
120㎡ (約36坪)
130㎡ (約39坪)
140㎡ (約42坪)
150㎡ (約45坪)
160㎡ (約48坪)
170㎡ (約51坪)
180㎡ (約54坪)
190㎡ (約57坪)
200㎡ (約60坪)
250㎡ (約75坪)
300㎡ (約90坪)
~
上限なし
60㎡ (約18坪)
70㎡ (約21坪)
80㎡ (約24坪)
90㎡ (約27坪)
100㎡ (約30坪)
110㎡ (約33坪)
120㎡ (約36坪)
130㎡ (約39坪)
140㎡ (約42坪)
150㎡ (約45坪)
160㎡ (約48坪)
170㎡ (約51坪)
180㎡ (約54坪)
190㎡ (約57坪)
200㎡ (約60坪)
250㎡ (約75坪)
300㎡ (約90坪)
坪単価
下限なし
5万円
10万円
15万円
20万円
25万円
30万円
35万円
40万円
45万円
50万円
~
上限なし
5万円
10万円
15万円
20万円
25万円
30万円
35万円
40万円
45万円
50万円
築年数
指定なし
新築
3年以内
5年以内
10年以内
15年以内
20年以内
方位
北
北東
東
南東
南
南西
西
北西
おすすめ条件
ペット可・相談
楽器可・相談
情報公開日
指定なし
本日
3日以内
1週間以内
1ヶ月以内
0件
がマッチ
人気のあるこだわり条件
高台に立地(105)
角地(384)
整形地(723)
前道6m以上(1000)
南側道路面す(393)
更地(1205)
学校近く(561)
スーパー近く(417)
最寄り駅近く(224)
閑静な住宅街(940)
分割可能(54)
建築条件なし(1516)
所有権(1619)
即引き渡し可(668)
側溝(698)
都市ガス(前面道路)(820)
LPG(157)
上水道(前面道路)(910)
下水道(前面道路)(831)
浄化槽(79)
電気(931)
都市ガス(宅地内)(831)
上水道(宅地内)(1071)
下水道(宅地内)(986)
前面道路融雪設備あり(414)
その他水道(2)
住宅向け(1428)
事業用向け(316)
別荘地(117)
田舎暮らし(223)
条件に合った物件数は、
0 件
です。
立地・環境
高台に立地(105)
角地(384)
整形地(723)
前道6m以上(1000)
南側道路面す(393)
更地(1205)
学校近く(561)
スーパー近く(417)
最寄り駅近く(224)
閑静な住宅街(940)
用途・制限
分割可能(54)
建築条件なし(1516)
引渡・条件
所有権(1619)
即引き渡し可(668)
設備
側溝(698)
都市ガス(前面道路)(820)
LPG(157)
上水道(前面道路)(910)
下水道(前面道路)(831)
浄化槽(79)
電気(931)
都市ガス(宅地内)(831)
上水道(宅地内)(1071)
下水道(宅地内)(986)
前面道路融雪設備あり(414)
その他水道(2)
その他
住宅向け(1428)
事業用向け(316)
別荘地(117)
田舎暮らし(223)
条件に合った物件数は、
0 件
です。
アパート・マンション・一戸建て
/
駐車場
/
貸土地
/
店舗
/
事務所
/
倉庫・工場
新築分譲マンション
/
中古マンション
/
新築一戸建て
/
中古一戸建て
/
売土地
/
投資物件・その他
マンション
/
一戸建て
/
土地
建てる・リフォーム
物件掲載企業一覧
掲載希望の企業様へ
新潟の不動産情報サイト
サービス利用規約
運営会社
サイトマップ
プライバシーポリシー
お問い合わせ
リンク
Copyright (C)
株式会社 コモンライフ・コーポレーション
. All Rights Reserved.
新潟・長岡・柏崎の賃貸・マンション・アパート・住宅の不動産物件情報サイト
不動産検索サイト「らくすむ」及び関連サイトに記載の不動産情報は、会員規約に則り、情報提供会社様の責任のもとに発信されております。
不動産の賃借、購入に関しては賃借者、購入者ご自身が情報を確認され、会社企業様から説明を受けられたうえで判断をお願いいたします。
不動産検索サイト「らくすむ」及び関連サイトに記載の不動産情報、写真、デザイン、コンテンツなどの
無断転載・転用・複製
など禁止します。