1
物件掲載企業数:
295
社
|賃貸物件:
3,620
件|売買物件:
3,318
件|今週の登録物件:
227
件
閲覧中のブラウザ(インターネットエクスプローラー)は非推奨ブラウザです。
物件が正しく表示されなかったり、正しく検索されない場合があります。最新のブラウザ(Google Chrome・Edgeなど)にてご利用お願いいたします。
Google Chrome
Microsoft Edge
アパート・マンション・一戸建て
駐車場
貸土地
店舗
事務所
倉庫・工場
新築分譲マンション
中古マンション
新築一戸建て
中古一戸建て
売土地・分譲地
その他(投資物件など)
マンション
一戸建て
土地
ホーム
>
検索方法選択
>
エリア選択
> 物件一覧
東北中学校区
の
中古一戸建て
一覧
23件
該当しました。
1
2
次のページ>
表示切替:
一覧表示
/
地図表示
並び替え:
指定なし
新着順
価格が安い順
価格が高い順
画像
物件名/所在地/取扱店
詳細
5DKの中古住宅です
長岡市小曽根 中古住宅
新潟県長岡市小曽根町475-5
ブレイン・リアルエステート合同会社
価格
:
2,300,000
円
土地面積
:182㎡ /55.05坪
建物面積
:127.61㎡ /38.6坪
間取り
:5DK
築年月
:1970年12月
ショッピングモール近く!6DK中古住宅
長岡市永田4丁目中古住宅
新潟県長岡市永田4丁目3-19
リンクス.プランニング合同会社
価格
:
6,500,000
円
土地面積
:155.65㎡ /47.08坪
建物面積
:149.04㎡ /45.08坪
間取り
:6DK
築年月
:1968年12月
【価格改定】川崎一丁目6LDK住宅!前面は融雪道路で冬も安心です!ファミリーマート徒歩1分・原信今朝白店徒歩9分の利便性の良い立地です!売主につき仲介手数料不要!
川崎6LDK住宅
新潟県長岡市川崎1丁目2519番地7
株式会社 和興不動産
価格
:
11,800,000
円
土地面積
:161㎡ /48.7坪
建物面積
:246.13㎡ /74.45坪
間取り
:6LDK
築年月
:1987年11月
【価格改定しました!】 ■子育て向けの好立地!ミサワホーム施工の太陽光パネル付き広々3LDK住宅♪ ■収納豊富な2か所の納戸付き。 ■小中学校への登校も徒歩5分!
長岡市美園1丁目
新潟県長岡市美園1丁目1番地21
ハーバーエステート株式会社
価格
:
14,900,000
円
土地面積
:190.27㎡ /57.55坪
建物面積
:139.52㎡ /42.2坪
間取り
:3LDK
築年月
:1998年3月
■南東向きのリビングからつながるウッドデッキ。のどかな眺望が魅力です♪ ■カーポート2台分、物置付き! ■東部川崎保育園まで徒歩約8分(600m)! ■アクロスプラザ長岡まで車で約3分!
長岡市川崎町
新潟県長岡市川崎町2271番地41
ハーバーエステート株式会社
価格
:
17,800,000
円
土地面積
:217.36㎡ /65.75坪
建物面積
:102.67㎡ /31.05坪
間取り
:4DK
築年月
:1999年8月
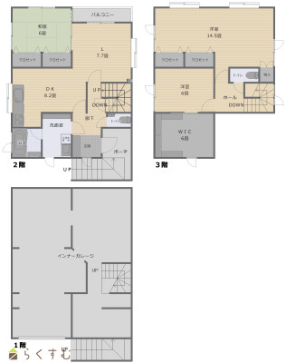
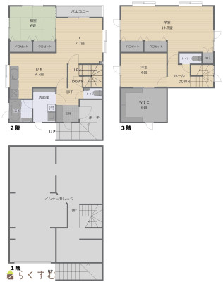
広々敷地70.32坪、2階建て住宅41.81坪。間取り4LDK、駐車2台可。雨でも安心「インナーガレージ付き住宅」
長岡市美園リノベーション住宅
新潟県長岡市美園1丁目3番25号
株式会社 エヌ・アール・ケー総合企画
価格
:
18,380,000
円
土地面積
:232.47㎡ /70.32坪
建物面積
:138.23㎡ /41.81坪
間取り
:4LDK
築年月
:1973年8月
【長岡市川崎】スーパーや衣料品店などの商業エリアが徒歩圏内!生活に便利な立地☆車庫付き6LDKの中古一戸建て。
長岡市堀金 中古住宅
新潟県長岡市堀金3丁目1-10
株式会社 森山建設
価格
:
18,500,000
円
土地面積
:414㎡ /125.23坪
建物面積
:169.87㎡ /51.38坪
間取り
:6LDK
築年月
:1977年7月
東栄3戸建
新潟県長岡市東栄3丁目1番32号
株式会社 悠久不動産
価格
:
19,800,000
円
土地面積
:339㎡ /102.54坪
建物面積
:126.96㎡ /38.4坪
間取り
:6LDK
築年月
:1982年9月
【価格改定しました!】 ■商業施設近くに建つ、インナーガレージ+カーポート付き住宅! ■インナーガレージ+カーポートで駐車4台以上! ■18帖の広々LDKに6畳の小上りがある開放的な空間♪ ■スーパーなど商業施設まで徒歩圏内の好立地!
長岡市東栄2丁目
新潟県長岡市東栄2丁目6-9
ハーバーエステート株式会社
価格
:
19,980,000
円
土地面積
:153.31㎡ /46.37坪
建物面積
:178.85㎡ /54.1坪
間取り
:5LDK
築年月
:2010年2月
価格改定 2400万→2100万円 パルス徒歩1分、原信徒歩3分など商業施設が至近距離の好立地。6LDKの和洋ミックスの風情ある広々とした庭園付き住宅です!
豊1丁目 売中古住宅
新潟県長岡市豊1丁目7番12号
有限会社 北日本不動産
価格
:
21,000,000
円
土地面積
:338㎡ /102.24坪
建物面積
:203.33㎡ /61.5坪
間取り
:6LDK
築年月
:1983年7月
【幼稚園・学校・商業施設・バイパスが徒歩圏、本格的な和風庭園付き邸宅】 ■北東角地×前面道路6m、消雪パイプ有 ■敷地面積約102坪 ■敷地内には風情ある和風庭園
長岡市豊 戸建
新潟県長岡市豊1丁目7-12
新潟土地建物販売センター 株式会社
価格
:
21,000,000
円
土地面積
:338㎡ /102.24坪
建物面積
:203.33㎡ /61.5坪
間取り
:6LDK
築年月
:1983年7月
ショッピングセンターまで徒歩圏内!バイパスへのアクセス良好!立派な庭のある、和式住宅!
豊1丁目 中古住宅
新潟県長岡市豊1丁目7-12
髙頭不動産 株式会社
価格
:
21,000,000
円
土地面積
:338㎡ /102.24坪
建物面積
:203.33㎡ /61.5坪
間取り
:6LDK
築年月
:1983年7月
和と洋が調和する大空間邸宅 広い庭で日本の趣を楽しめる住まい
長岡市豊Bright中古戸建
新潟県長岡市豊1丁目7-12
有限会社 ブライトサクセス
価格
:
21,000,000
円
土地面積
:338㎡ /102.24坪
建物面積
:217.95㎡ /65.92坪
間取り
:6LDK
築年月
:1983年7月
【価格改定しました!】2,320万円(R7.5.2)→2,120万円(R7.10.16)【令和7年5月リフォーム完了!】リフォーム内容・・・クロス張替、リビング用エアコン新品、トイレ新品&2階新設、畳表替、建具交換、WIC新設、等★自社物件につき仲介手数料不要★原信新保店まで徒歩約8分★お気軽にお問い合わせください!
新保1丁目 売住宅
新潟県長岡市新保1丁目9-31
髙頭不動産 株式会社
価格
:
21,200,000
円
土地面積
:227.23㎡ /68.73坪
建物面積
:182.17㎡ /55.1坪
間取り
:3LDK
築年月
:1988年11月
【見学会開催】【水回り新品交換予定】 庭スペースあり。南東側道路で日当たり良好。徒歩12分以内に教育施設(川崎小学校500m、東北中学校900m)が揃う、充実の子育て環境。車通りが少ない閑静な住宅街。
長岡市東神田
新潟県長岡市東神田2丁目34
株式会社 カチタス長岡店
価格
:
22,490,000
円
土地面積
:256.81㎡ /77.68坪
建物面積
:151.48㎡ /45.82坪
間取り
:3LDK
築年月
:1985年5月
22帖の広々LDK。和室、キッチン、浴室、トイレ等リフォーム中!!全室6帖以上のゆとりある間取り。
長岡市東神田2丁目 中古戸建
新潟県長岡市東神田2丁目3-4
有限会社 ブライトサクセス
価格
:
22,490,000
円
土地面積
:256.81㎡ /77.68坪
建物面積
:151.48㎡ /45.82坪
間取り
:3LDK
築年月
:1985年5月
ミサワホーム施工の中古住宅です♪
長岡市堀金1丁目 中古住宅
新潟県長岡市堀金1丁目9番12号
株式会社 高野不動産販売
価格
:
24,800,000
円
土地面積
:148.71㎡ /44.98坪
建物面積
:241.23㎡ /72.97坪
間取り
:4LDK
築年月
:1994年9月
◆築浅2020年築!◆売主につき、仲介手数料不要◆駐車2台可能◆前面道路消雪パイプ完備◆
長岡市稲保南1丁目 売住宅
新潟県長岡市稲保南1丁目213-13
髙頭不動産 株式会社
価格
:
24,980,000
円
土地面積
:200.45㎡ /60.63坪
建物面積
:123.38㎡ /37.32坪
間取り
:4LDK
築年月
:2020年1月
スーパー原信新保店、蔦谷新保店近く 車で3分!!
長岡市稲保1丁目中古戸建
新潟県長岡市稲保1丁目295番地38
エイブルネットワーク長岡店(株式会社Will企画)
価格
:
29,900,000
円
土地面積
:403.17㎡ /121.95坪
建物面積
:300.85㎡ /91坪
間取り
:5LDK
築年月
:2004年12月
【敷地121坪×延床91坪!書斎・趣味室・収納充実の広々邸宅】 ■電動シャッター付インナーガレージ(駐車2台可) ■宅地内ロードヒーティング&前面道路に消雪パイプ有
長岡市稲保 戸建
新潟県長岡市稲保1丁目295-38
新潟土地建物販売センター 株式会社
価格
:
29,900,000
円
土地面積
:403.17㎡ /121.95坪
建物面積
:300.85㎡ /91坪
間取り
:5LDK
築年月
:2004年12月
表示切替:
一覧表示
/
地図表示
並び替え:
指定なし
新着順
価格が安い順
価格が高い順
価格は物件の代金総額を表示しており、消費税が課税される場合は税込み価格です。
建築条件付き土地価格には、建物価格は含まれません。
物件情報の詳細については取り扱い店までお問い合わせください。
完成予想図はいずれも外構・植栽・外観等実際のものと異なることが多少あります。
CG合成の画像の場合実際と異なることが多少あります。
完成後1年以上経過したものが未入居として記載される場合があります。ご了承ください。
販売予定物件は販売開始するまで契約または予約の申し込みはできません。
ご購入の場合物件詳細や契約内容についてご自身で十分ご確認いただきますようよろしく御願いします。
建築条件付きとは…その土地に建築する建物の建築請負契約が、一定期間内に成立することを条件として売買される土地のことをいいます。請負契約成立に向けて設計プランを協議するため、土地購入者が希望する建物にするために一定の期間(概ね3ヶ月)交渉期間としその期間内に希望するプランが実現できたかどうかによって土地の購入の判断をします。納得のいくプランができず請負契約が未成立になった場合、土地契約にかかった代金(手付金など)は、すべて返却されます。
23件
該当しました。
1
2
次のページ>
0件
がマッチ
基本条件
物件種別
中古一戸建て
価格
下限なし
100万円
250万円
500万円
1000万円
1500万円
2000万円
2500万円
3000万円
3500万円
4000万円
4500万円
5000万円
5500万円
6000万円
6500万円
7000万円
7500万円
8000万円
8500万円
9000万円
9500万円
1億円
~
上限なし
100万円
250万円
500万円
1000万円
1500万円
2000万円
2500万円
3000万円
3500万円
4000万円
4500万円
5000万円
5500万円
6000万円
6500万円
7000万円
7500万円
8000万円
8500万円
9000万円
9500万円
1億円
間取り
ワンルーム
1K
1DK
1LDK
2K
2DK
2LDK
3K
3DK
3LDK
4K
4DK
4LDK以上
専有面積
下限なし
20㎡
30㎡
40㎡
50㎡
60㎡
70㎡
80㎡
90㎡
100㎡
~
上限なし
20㎡
30㎡
40㎡
50㎡
60㎡
70㎡
80㎡
90㎡
100㎡
土地面積
下限なし
60㎡ (約18坪)
70㎡ (約21坪)
80㎡ (約24坪)
90㎡ (約27坪)
100㎡ (約30坪)
110㎡ (約33坪)
120㎡ (約36坪)
130㎡ (約39坪)
140㎡ (約42坪)
150㎡ (約45坪)
160㎡ (約48坪)
170㎡ (約51坪)
180㎡ (約54坪)
190㎡ (約57坪)
200㎡ (約60坪)
250㎡ (約75坪)
300㎡ (約90坪)
~
上限なし
60㎡ (約18坪)
70㎡ (約21坪)
80㎡ (約24坪)
90㎡ (約27坪)
100㎡ (約30坪)
110㎡ (約33坪)
120㎡ (約36坪)
130㎡ (約39坪)
140㎡ (約42坪)
150㎡ (約45坪)
160㎡ (約48坪)
170㎡ (約51坪)
180㎡ (約54坪)
190㎡ (約57坪)
200㎡ (約60坪)
250㎡ (約75坪)
300㎡ (約90坪)
建物面積
下限なし
60㎡ (約18坪)
70㎡ (約21坪)
80㎡ (約24坪)
90㎡ (約27坪)
100㎡ (約30坪)
110㎡ (約33坪)
120㎡ (約36坪)
130㎡ (約39坪)
140㎡ (約42坪)
150㎡ (約45坪)
160㎡ (約48坪)
170㎡ (約51坪)
180㎡ (約54坪)
190㎡ (約57坪)
200㎡ (約60坪)
250㎡ (約75坪)
300㎡ (約90坪)
~
上限なし
60㎡ (約18坪)
70㎡ (約21坪)
80㎡ (約24坪)
90㎡ (約27坪)
100㎡ (約30坪)
110㎡ (約33坪)
120㎡ (約36坪)
130㎡ (約39坪)
140㎡ (約42坪)
150㎡ (約45坪)
160㎡ (約48坪)
170㎡ (約51坪)
180㎡ (約54坪)
190㎡ (約57坪)
200㎡ (約60坪)
250㎡ (約75坪)
300㎡ (約90坪)
坪単価
下限なし
5万円
10万円
15万円
20万円
25万円
30万円
35万円
40万円
45万円
50万円
~
上限なし
5万円
10万円
15万円
20万円
25万円
30万円
35万円
40万円
45万円
50万円
築年数
指定なし
新築
3年以内
5年以内
10年以内
15年以内
20年以内
方位
北
北東
東
南東
南
南西
西
北西
おすすめ条件
ペット可・相談
楽器可・相談
情報公開日
指定なし
本日
3日以内
1週間以内
1ヶ月以内
0件
がマッチ
人気のあるこだわり条件
角地(6)
日当り良好(11)
閑静な住宅街(18)
スーパー近く(14)
新築時図面あり(2)
インスペクション報告書あり(1)
建物確認・完了検査済証あり(1)
瑕疵担保保険付き(1)
LDK15帖以上(10)
全室フローリング(3)
築10年以内(2)
駐車2台可能(11)
駐車3台以上可能(6)
駐車場融雪設備あり(5)
南向き(6)
TVインターホン(8)
複層ガラス(3)
デインプルキー(2)
システムキッチン(12)
カウンターキッチン(2)
IHクッキングヒーター(4)
食器洗浄乾燥機(4)
3口コンロ(7)
2口コンロ(3)
ガスコンロ設置済み(3)
追いだき機能付き(10)
浴室乾燥機(4)
バス1坪以上(11)
温水洗浄便座(13)
トイレ2か所以上(17)
シャワー付き洗面台(10)
エアコンあり(12)
床暖房(2)
24時間換気システム(1)
全室エアコン(1)
省エネ給湯機(3)
ウッドデッキ・テラス(2)
ルーフバルコニー(2)
都市ガス(20)
上水道(22)
下水道(22)
バリアフリー(2)
ウォークインクローゼット(5)
全居室収納あり(9)
床下収納(4)
シューズBOX(9)
シューズインクローゼット(1)
CATV(1)
内装リフォーム済み(2)
外装リフォーム済み(1)
リノベーション物件(2)
2世帯向き(2)
即引き渡し可能(9)
別荘(1)
田舎暮らし(1)
条件に合った物件数は、
0 件
です。
立地・環境
角地(6)
日当り良好(11)
閑静な住宅街(18)
スーパー近く(14)
構造・工法・仕様
新築時図面あり(2)
インスペクション報告書あり(1)
建物確認・完了検査済証あり(1)
瑕疵担保保険付き(1)
面積・間取り
LDK15帖以上(10)
全室フローリング(3)
築年
築10年以内(2)
駐車・駐輪
駐車2台可能(11)
駐車3台以上可能(6)
駐車場融雪設備あり(5)
採光・向き
南向き(6)
管理・防犯
TVインターホン(8)
複層ガラス(3)
デインプルキー(2)
キッチン
システムキッチン(12)
カウンターキッチン(2)
IHクッキングヒーター(4)
食器洗浄乾燥機(4)
3口コンロ(7)
2口コンロ(3)
ガスコンロ設置済み(3)
浴室
追いだき機能付き(10)
浴室乾燥機(4)
バス1坪以上(11)
トイレ
温水洗浄便座(13)
トイレ2か所以上(17)
洗面所
シャワー付き洗面台(10)
冷暖房・空調
エアコンあり(12)
床暖房(2)
24時間換気システム(1)
全室エアコン(1)
光熱設備
省エネ給湯機(3)
バルコニー・テラス
ウッドデッキ・テラス(2)
ルーフバルコニー(2)
室内仕様・設備
都市ガス(20)
上水道(22)
下水道(22)
バリアフリー(2)
収納
ウォークインクローゼット(5)
全居室収納あり(9)
床下収納(4)
シューズBOX(9)
シューズインクローゼット(1)
電気設備
CATV(1)
リフォーム
内装リフォーム済み(2)
外装リフォーム済み(1)
リノベーション物件(2)
費用・入居・引渡・条件
2世帯向き(2)
即引き渡し可能(9)
その他
別荘(1)
田舎暮らし(1)
条件に合った物件数は、
0 件
です。
アパート・マンション・一戸建て
/
駐車場
/
貸土地
/
店舗
/
事務所
/
倉庫・工場
新築分譲マンション
/
中古マンション
/
新築一戸建て
/
中古一戸建て
/
売土地
/
投資物件・その他
マンション
/
一戸建て
/
土地
建てる・リフォーム
物件掲載企業一覧
掲載希望の企業様へ
新潟の不動産情報サイト
サービス利用規約
運営会社
サイトマップ
プライバシーポリシー
お問い合わせ
リンク
Copyright (C)
株式会社 コモンライフ・コーポレーション
. All Rights Reserved.
新潟・長岡・柏崎の賃貸・マンション・アパート・住宅の不動産物件情報サイト
不動産検索サイト「らくすむ」及び関連サイトに記載の不動産情報は、会員規約に則り、情報提供会社様の責任のもとに発信されております。
不動産の賃借、購入に関しては賃借者、購入者ご自身が情報を確認され、会社企業様から説明を受けられたうえで判断をお願いいたします。
不動産検索サイト「らくすむ」及び関連サイトに記載の不動産情報、写真、デザイン、コンテンツなどの
無断転載・転用・複製
など禁止します。