1
物件掲載企業数:
295
社
|賃貸物件:
3,347
件|売買物件:
3,307
件|今週の登録物件:
319
件
閲覧中のブラウザ(インターネットエクスプローラー)は非推奨ブラウザです。
物件が正しく表示されなかったり、正しく検索されない場合があります。最新のブラウザ(Google Chrome・Edgeなど)にてご利用お願いいたします。
Google Chrome
Microsoft Edge
アパート・マンション・一戸建て
駐車場
貸土地
店舗
事務所
倉庫・工場
新築分譲マンション
中古マンション
新築一戸建て
中古一戸建て
売土地・分譲地
その他(投資物件など)
マンション
一戸建て
土地
ホーム
>
検索方法選択
>
エリア選択
> 物件一覧
西山中学校区
の
中古マンション
一覧
7件
該当しました。
表示切替:
一覧表示
/
地図表示
並び替え:
指定なし
新着順
価格が安い順
価格が高い順
画像
物件名/所在地/取扱店
詳細
1台分の駐車場ついてます。
西山町 石地マンション 5階 530号室
新潟県柏崎市西山町尾町159-14石地マンション530
株式会社裕建
価格
:
1
円
専有面積
:25.08㎡ /7.58坪
間取り
:1DK
築年月
:1975年7月
※新規価格公表 令和7年8月4日 200,000円→100,000円 海水浴場まで徒歩10分でバルコニーから海が見えます。
西山町 石地マンション 215号室
新潟県柏崎市西山町尾町159-14石地マンション215
株式会社裕建
価格
:
100,000
円
専有面積
:25.08㎡ /7.58坪
間取り
:1DK
築年月
:1975年7月
1DK、1台分駐車場付き、石地海水浴場まで徒歩10分
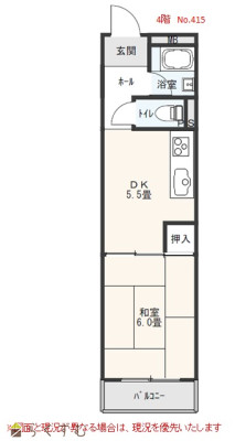
西山町石地売分譲マンション
415号室
新潟県柏崎市西山町尾町159-14石地マンション415
株式会社 ホーメックス
価格
:
400,000
円
専有面積
:25.08㎡ /7.58坪
間取り
:1DK
築年月
:1975年7月
※新規価格公表 令和7年7月18日 500,000円→400,000円
西山町 石地マンション 5階 516号室
新潟県柏崎市西山町尾町159-14石地マンション516
株式会社裕建
価格
:
400,000
円
専有面積
:25.08㎡ /7.58坪
間取り
:1DK
築年月
:1975年7月
※新規価格公表 令和7年6月29日 650,000円→550,000円 メーターボックス扉・エアコン・バランス釜、交換してあります。
西山町 石地マンション 5階 511号室
新潟県柏崎市西山町尾町159-14石地マンション516
株式会社裕建
価格
:
550,000
円
専有面積
:25.08㎡ /7.58坪
間取り
:1DK
築年月
:1975年7月
3DK、1台分駐車場付き、石地海水浴場まで徒歩10分
西山町石地売分譲マンション
402号室
新潟県柏崎市西山町尾町159-14石地マンション402
株式会社 ホーメックス
価格
:
950,000
円
専有面積
:51.74㎡ /15.65坪
間取り
:3DK
築年月
:1975年7月
目の前が海! 別荘,居住用としてもOK!フリーWi-Fiあり!
バルミー石地
新潟県柏崎市西山町尾町浜田23番地2バルミー石地4F
柏越建設 株式会社
価格
:
1,600,000
円
専有面積
:40.69㎡ /12.3坪
間取り
:2DK
築年月
:1980年9月
表示切替:
一覧表示
/
地図表示
並び替え:
指定なし
新着順
価格が安い順
価格が高い順
価格は物件の代金総額を表示しており、消費税が課税される場合は税込み価格です。
建築条件付き土地価格には、建物価格は含まれません。
物件情報の詳細については取り扱い店までお問い合わせください。
完成予想図はいずれも外構・植栽・外観等実際のものと異なることが多少あります。
CG合成の画像の場合実際と異なることが多少あります。
完成後1年以上経過したものが未入居として記載される場合があります。ご了承ください。
販売予定物件は販売開始するまで契約または予約の申し込みはできません。
ご購入の場合物件詳細や契約内容についてご自身で十分ご確認いただきますようよろしく御願いします。
建築条件付きとは…その土地に建築する建物の建築請負契約が、一定期間内に成立することを条件として売買される土地のことをいいます。請負契約成立に向けて設計プランを協議するため、土地購入者が希望する建物にするために一定の期間(概ね3ヶ月)交渉期間としその期間内に希望するプランが実現できたかどうかによって土地の購入の判断をします。納得のいくプランができず請負契約が未成立になった場合、土地契約にかかった代金(手付金など)は、すべて返却されます。
7件
該当しました。
0件
がマッチ
基本条件
物件種別
中古マンション
価格
下限なし
100万円
250万円
500万円
1000万円
1500万円
2000万円
2500万円
3000万円
3500万円
4000万円
4500万円
5000万円
5500万円
6000万円
6500万円
7000万円
7500万円
8000万円
8500万円
9000万円
9500万円
1億円
~
上限なし
100万円
250万円
500万円
1000万円
1500万円
2000万円
2500万円
3000万円
3500万円
4000万円
4500万円
5000万円
5500万円
6000万円
6500万円
7000万円
7500万円
8000万円
8500万円
9000万円
9500万円
1億円
間取り
ワンルーム
1K
1DK
1LDK
2K
2DK
2LDK
3K
3DK
3LDK
4K
4DK
4LDK以上
専有面積
下限なし
20㎡
30㎡
40㎡
50㎡
60㎡
70㎡
80㎡
90㎡
100㎡
~
上限なし
20㎡
30㎡
40㎡
50㎡
60㎡
70㎡
80㎡
90㎡
100㎡
土地面積
下限なし
60㎡ (約18坪)
70㎡ (約21坪)
80㎡ (約24坪)
90㎡ (約27坪)
100㎡ (約30坪)
110㎡ (約33坪)
120㎡ (約36坪)
130㎡ (約39坪)
140㎡ (約42坪)
150㎡ (約45坪)
160㎡ (約48坪)
170㎡ (約51坪)
180㎡ (約54坪)
190㎡ (約57坪)
200㎡ (約60坪)
250㎡ (約75坪)
300㎡ (約90坪)
~
上限なし
60㎡ (約18坪)
70㎡ (約21坪)
80㎡ (約24坪)
90㎡ (約27坪)
100㎡ (約30坪)
110㎡ (約33坪)
120㎡ (約36坪)
130㎡ (約39坪)
140㎡ (約42坪)
150㎡ (約45坪)
160㎡ (約48坪)
170㎡ (約51坪)
180㎡ (約54坪)
190㎡ (約57坪)
200㎡ (約60坪)
250㎡ (約75坪)
300㎡ (約90坪)
建物面積
下限なし
60㎡ (約18坪)
70㎡ (約21坪)
80㎡ (約24坪)
90㎡ (約27坪)
100㎡ (約30坪)
110㎡ (約33坪)
120㎡ (約36坪)
130㎡ (約39坪)
140㎡ (約42坪)
150㎡ (約45坪)
160㎡ (約48坪)
170㎡ (約51坪)
180㎡ (約54坪)
190㎡ (約57坪)
200㎡ (約60坪)
250㎡ (約75坪)
300㎡ (約90坪)
~
上限なし
60㎡ (約18坪)
70㎡ (約21坪)
80㎡ (約24坪)
90㎡ (約27坪)
100㎡ (約30坪)
110㎡ (約33坪)
120㎡ (約36坪)
130㎡ (約39坪)
140㎡ (約42坪)
150㎡ (約45坪)
160㎡ (約48坪)
170㎡ (約51坪)
180㎡ (約54坪)
190㎡ (約57坪)
200㎡ (約60坪)
250㎡ (約75坪)
300㎡ (約90坪)
坪単価
下限なし
5万円
10万円
15万円
20万円
25万円
30万円
35万円
40万円
45万円
50万円
~
上限なし
5万円
10万円
15万円
20万円
25万円
30万円
35万円
40万円
45万円
50万円
築年数
指定なし
新築
3年以内
5年以内
10年以内
15年以内
20年以内
方位
北
北東
東
南東
南
南西
西
北西
おすすめ条件
ペット可・相談
楽器可・相談
情報公開日
指定なし
本日
3日以内
1週間以内
1ヶ月以内
0件
がマッチ
人気のあるこだわり条件
最上階(4)
2階以上(5)
日当り良好(4)
性能評価基準証明あり(1)
建物確認・完了検査済証あり(1)
洗濯機置き場(1)
エレベーター(2)
和室あり(1)
駐車場空きあり(6)
2口コンロ(3)
浴室に窓あり(1)
温水洗浄便座(1)
エアコン(1)
都市ガス(7)
LPG(1)
公営水道(1)
下水道(3)
シューズBOX(1)
BS端子(1)
CS端子(1)
内装リフォーム済み(1)
即入居可能(1)
別荘(3)
条件に合った物件数は、
0 件
です。
立地・環境
最上階(4)
2階以上(5)
日当り良好(4)
構造・工法・仕様
性能評価基準証明あり(1)
建物確認・完了検査済証あり(1)
その他スペース
洗濯機置き場(1)
共用部分
エレベーター(2)
面積・間取り
和室あり(1)
駐車・駐輪
駐車場空きあり(6)
キッチン
2口コンロ(3)
浴室
浴室に窓あり(1)
トイレ
温水洗浄便座(1)
冷暖房・空調
エアコン(1)
光熱設備
都市ガス(7)
LPG(1)
公営水道(1)
下水道(3)
収納
シューズBOX(1)
電気設備
BS端子(1)
CS端子(1)
リフォーム
内装リフォーム済み(1)
費用・入居・引渡・条件
即入居可能(1)
その他
別荘(3)
条件に合った物件数は、
0 件
です。
アパート・マンション・一戸建て
/
駐車場
/
貸土地
/
店舗
/
事務所
/
倉庫・工場
新築分譲マンション
/
中古マンション
/
新築一戸建て
/
中古一戸建て
/
売土地
/
投資物件・その他
マンション
/
一戸建て
/
土地
建てる・リフォーム
物件掲載企業一覧
掲載希望の企業様へ
新潟の不動産情報サイト
サービス利用規約
運営会社
サイトマップ
プライバシーポリシー
お問い合わせ
リンク
Copyright (C)
株式会社 コモンライフ・コーポレーション
. All Rights Reserved.
新潟・長岡・柏崎の賃貸・マンション・アパート・住宅の不動産物件情報サイト
不動産検索サイト「らくすむ」及び関連サイトに記載の不動産情報は、会員規約に則り、情報提供会社様の責任のもとに発信されております。
不動産の賃借、購入に関しては賃借者、購入者ご自身が情報を確認され、会社企業様から説明を受けられたうえで判断をお願いいたします。
不動産検索サイト「らくすむ」及び関連サイトに記載の不動産情報、写真、デザイン、コンテンツなどの
無断転載・転用・複製
など禁止します。