| 広い敷地と広いお庭、作業所付の住宅です。内残存物撤去済み。是非一度内見にいらしてください!ご希望に応じてご購入後のリフォームの相談も可能です。 | |||
| 物件コード | 00371-200002 | ||
|---|---|---|---|
| 物件名 | 柏崎市曽地中古住宅 | ||
| 交通 | 駅:越後線 荒浜駅から徒歩52分、バス:曽地から徒歩1分 | ||
| 物件所在地 | 新潟県柏崎市曽地977番地1 | ||
| 物件種別 | 中古一戸建て | ||
| 構造 | 木造 | 階建 | 地上2階建 |
| 建ぺい率/容積率 | - | ||
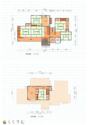
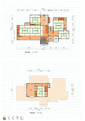
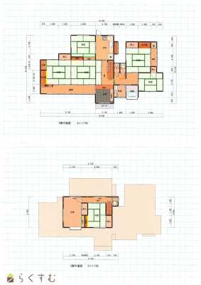
| 建物面積 | 1階 127.74㎡/ 2階 33.08㎡/ 計 160.82㎡ /48.64坪 | ||
| 土地面積 | 757.7㎡ /229.2坪 | ||
| 築年月 | 1980年8月(築45年) | ||
| 入居時期 | 随時入居(引き渡し)可 | ||
| 用途地域 | 無指定 | 地目 | 宅地・田・畑 |
| 都市計画 | 都市計画区域外 | 学校区 | 桜通小学校(3,630m)・瑞穂中学校(5,453m) |
| 形状 | 間口 15m × 奥行 33m | 道路 | 南側国道8号 |
| 私道 | - | ||
| 所在階/階数 | - | 号室 | - |
|---|---|---|---|
| 販売価格 | 3,000,000円 | 方位 | 南 |
| 間取り | 7DK | ||
| 専有面積 | - | バルコニー面積 | - |
| その他面積 | - | 駐車場 | - |
| 管理費 | - | 修繕積立金 | - |
| 現況 | 空家 | ||
| 仲介手数料 | 330,000円 | ||
| 利用制限 | - | ||
| 設備 | 日当り良好、駐車3台以上可能、南向き、トイレ2か所以上、都市ガス、上水道、下水道、2世帯向き、即引き渡し可能、田舎暮らし | ||
| 取引態様 | 一般 | ||
| 備考 | ◆売買対象物件には、農地(田:125㎡※現況畑、畑:59㎡)及び、作業所(木造瓦・亜鉛メッキ鋼板葺2階建て、1階:33.08㎡、2階:16.56㎡、昭和10年建築※課税明細書より)が含まれます。 ◆本物件は、登記上昭和55年新築となっておりますが、建物の一部に昭和39年新築の部分が含まれます。詳しくはお問い合わせください。 ◆売主による境界の明示なし。 ◆売主による契約不適合免責とさせていただきます。 ◆現況有姿でのお引渡しとなります。 ◆リノベーションのご相談も承ります。 ◆長岡営業所でのお打ち合わせ可能です。 |
||
| 情報登録日 | 2026/04/24 | 次回更新予定日 | 2026/06/06 |
| 取引条件有効期限 | 2026/07/31 | ||
|
|
|
|
| TEL: | 0258-86-4740 |
|---|---|
| 所在地: | 新潟県阿賀野市保田3858 |
| 交通: | JR磐越西線「五泉駅」、バス停「安田新栄町団地」より徒歩約2分 |
| 営業時間: | 8:00~17:15/定休日:日・祝日 年末年始・夏季休暇 |
| 免許番号: | 新潟県知事(8)第3677号 |
| 所属団体名: | 公社 新潟県宅地建物取引協会 新発田支部 |
| 取引態様: | 一般 |