| 広々100坪超の敷地で明るい東南角地 | |||
| 物件コード | 00333-200018 | ||
|---|---|---|---|
| 物件名 | 春日山2丁目リフォーム済中古住宅 | ||
| 交通 | 駅:妙高はねうまライン 春日山駅から徒歩17分、バス:春日山町三丁目南から徒歩3分 | ||
| 物件所在地 | 新潟県上越市春日山町2丁目13番9号 | ||
| 物件種別 | 中古一戸建て | ||
| 構造 | 木造 | 階建 | 地上2階建 |
| 建ぺい率/容積率 | 60%/200% | ||
| 建物面積 | 1階 125.85㎡/ 2階 75.77㎡/ 計 201.62㎡ /60.99坪 | ||
| 土地面積 | 347.69㎡ /105.17坪 | ||
| 築年月 | 1988年1月(築38年) | ||
| 入居時期 | 2026年4月 | ||
| 用途地域 | 第1種中高層住居専用地域 | 地目 | 宅地 (現状:宅地) |
| 都市計画 | 市街化区域 | 学校区 | 春日小学校(670m)・春日中学校(1,085m) |
| 形状 | 間口 19m | 道路 | 公道 幅員約6m |
| 私道 | - | ||
| 所在階/階数 | - | 号室 | - |
|---|---|---|---|
| 販売価格 | 26,540,000円 | 方位 | 南東 |
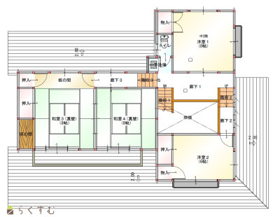
| 間取り |
6LDK (和室:8畳、8畳、8畳、6畳) (洋室:8、6) L10帖 DK10帖 |
||
| 専有面積 | - | バルコニー面積 | - |
| その他面積 | - | 駐車場 | - |
| 管理費 | - | 修繕積立金 | - |
| 現況 | 空家 | ||
| 仲介手数料 | なし | ||
| 利用制限 | - | ||
| 設備 | 角地、日当り良好、閑静な住宅街、LDK15帖以上、駐車3台以上可能、南向き、システムキッチン、バス1坪以上、温水洗浄便座、トイレ2か所以上、シャワー付き洗面台、都市ガス、全居室収納あり、シューズBOX、内装リフォーム済み、外装リフォーム済み、2世帯向き | ||
| 取引態様 | 仲介 | ||
| 備考 | - | ||
| 情報登録日 | 2026/02/27 | 次回更新予定日 | 2026/06/06 |
| 取引条件有効期限 | 2026/03/31 | ||
|
|
|
|
| TEL: | 0120-72-3878 |
|---|---|
| 所在地: | 新潟県妙高市十日市473 |
| 交通: | |
| 営業時間: | 9:00~18:00/定休日:毎週火・水曜日・年末年始 |
| 免許番号: | 新潟県知事(1)第5649号 |
| 所属団体名: | 公社 新潟県宅地建物取引協会 上越支部 |
| 取引態様: | 仲介 |