| 現在賃貸中です。 | |||
| 物件コード | 00308-200314 | ||
|---|---|---|---|
| 物件名 | 西城町 貸家 | ||
| 交通 | 駅:妙高はねうまライン 高田駅から徒歩15分、バス:西城町一丁目から徒歩1分 | ||
| 物件所在地 | 新潟県上越市西城町1丁目6番3号 | ||
| 物件種別 | 投資物件・その他 | ||
| 物件区分 | その他 | ||
| 構造 | 木造 | 階建 | 地上2階建 |
| 建ぺい率/容積率 | 60%/200% | ||
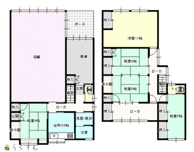
| 建物面積 | 1階 84.59㎡/ 2階 65.01㎡/ 計 149.6㎡ /45.25坪 | ||
| 土地面積 | 148.98㎡ /45.06坪 | ||
| 築年月 | 1973年9月(築52年) | ||
| 入居時期 | 随時入居(引き渡し)可 | ||
| 用途地域 | 第2種中高層住居専用地域 | 地目 | 宅地 |
| 都市計画 | 市街化区域 | 学校区 | 大町小学校(773m)・城東中学校(625m) |
| 形状 | - | 道路 | 北側15m |
| 私道 | - | ||
| 所在階/階数 | - | 号室 | - |
|---|---|---|---|
| 販売価格 | 7,500,000円 | 方位 | - |
| 表面利回り (満室想定時) |
9% | 満室想定年収 | 540,000円 (想定月収: 45,000円 ) |
| 現行利回り | 7.2% | 現行年間年収 | 540,000円 |
| 住戸数 | 1 | ||
| 間取り | - | ||
| 専有面積 | 149.6㎡ /45.25坪 ~ 149.6㎡ /45.25坪 | バルコニー面積 | - |
| その他面積 | - | 駐車場 | 敷地内1台 |
| 管理費 | - | 修繕積立金 | - |
| 現況 | 賃貸中 | ||
| 仲介手数料 | 330,000円 | ||
| 利用制限 | - | ||
| 設備 | 公営水道、都市ガス、下水道 | ||
| 取引態様 | 一般 | ||
| 備考 | - | ||
| 情報登録日 | 2026/03/07 | 次回更新予定日 | 2026/06/05 |
| 取引条件有効期限 | 2026/05/31 | ||
|
|
|
|
| TEL: | 025-522-3838 |
|---|---|
| 所在地: | 新潟県上越市南高田町1-2アサノビル1階 |
| 交通: | 妙高はねうまライン 南高田駅 徒歩1分 |
| 営業時間: | 9:00~18:30/定休日:毎週水曜日・GW(5/2~5/6)・夏季・・年末年始 |
| 免許番号: | 新潟県知事(9)第3372号 |
| 所属団体名: | 公社 新潟県宅地建物取引協会 上越支部 |
| 取引態様: | 一般 |