| 物件コード | 00277-200458 | ||
|---|---|---|---|
| 物件名 | 池 | ||
| 交通 | 駅:妙高はねうまライン 上越妙高駅から徒歩72分 | ||
| 物件所在地 | 新潟県上越市池180 | ||
| 物件種別 | 中古一戸建て | ||
| 構造 | 木造 | 階建 | 地上2階建 |
| 建ぺい率/容積率 | 70%/200% | ||
| 建物面積 | 計 188.72㎡ /57.08坪 | ||
| 土地面積 | 1,439.53㎡ /435.45坪 | ||
| 築年月 | 1971年5月(築55年) | ||
| 入居時期 | 相談 | ||
| 用途地域 | 無指定 | 地目 | 宅地 (現状:宅地) |
| 都市計画 | 市街化調整区域 | 学校区 | 上雲寺小学校(1,005m)・雄志中学校(2,076m) |
| 形状 | 間口 31.5m | 道路 | 西側約5.8m |
| 私道 | - | ||
| 所在階/階数 | - | 号室 | - |
|---|---|---|---|
| 販売価格 | 13,000,000円 | 方位 | 南 |
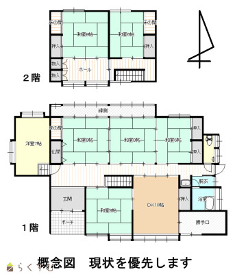
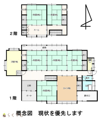
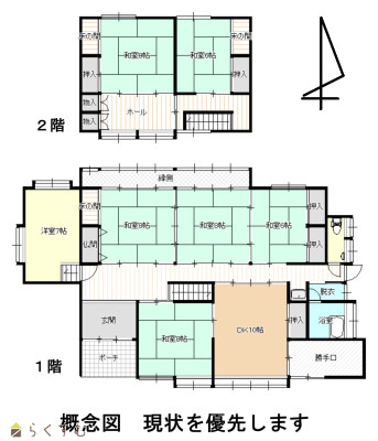
| 間取り |
7DK (和室:6畳、6畳、8畳、8畳、8畳、8畳) (洋室:7) DK7 |
||
| 専有面積 | - | バルコニー面積 | - |
| その他面積 | - | 駐車場 | - |
| 管理費 | - | 修繕積立金 | - |
| 現況 | 空家 | ||
| 仲介手数料 | 495,000円 | ||
| 利用制限 | - | ||
| 設備 | 駐車3台以上可能、南向き、温水洗浄便座、エアコンあり、LPG、上水道、下水道、田舎暮らし | ||
| 取引態様 | 一般 | ||
| 備考 | ・敷地435坪!昔ながらの佇まいが魅力的な中古住宅です☆ ・敷地内には蔵があり、古き良き雰囲気を倍増してくれます♪ ・下水道にも接続されていて衛生的☆ ・土地、建物、設備に関しては現状渡しです。 ※本体代金に別途諸費用が掛かります。 |
||
| 情報登録日 | 2025/10/21 | 次回更新予定日 | 2026/06/07 |
| 取引条件有効期限 | 2035/12/31 | ||
|
|
|
|
|
|
| TEL: | 025-523-2438 |
|---|---|
| 所在地: | 新潟県上越市稲田4-5-21 |
| 交通: | 高田駅 |
| 営業時間: | 午前9:00~午後18:00/定休日:水曜日 第1、第3日曜日 |
| 免許番号: | 新潟県知事(10)第2792号 |
| 所属団体名: | 公社 新潟県宅地建物取引協会 上越支部 |
| 取引態様: | 一般 |