| 物件コード | 00277-200315 | ||
|---|---|---|---|
| 物件名 | 稲田1丁目 | ||
| 交通 | 駅:妙高はねうまライン 高田駅から徒歩41分 | ||
| 物件所在地 | 新潟県上越市稲田1丁目3-14 | ||
| 物件種別 | 中古一戸建て | ||
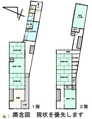
| 構造 | 木造 | 階建 | 地上2階建 |
| 建ぺい率/容積率 | 60%/200% | ||
| 建物面積 | 計 405.28㎡ /122.59坪 | ||
| 土地面積 | 412.89㎡ /124.89坪 | ||
| 築年月 | 1951年5月(築75年) | ||
| 入居時期 | 相談 | ||
| 用途地域 | 第1種住居地域 | 地目 | 宅地 (現状:宅地) |
| 都市計画 | 市街化区域 | 学校区 | 稲田小学校(268m)・城東中学校(873m) |
| 形状 | 間口 13m | 道路 | 西側約6.8m、東側約4.0m |
| 私道 | - | ||
| 所在階/階数 | - | 号室 | - |
|---|---|---|---|
| 販売価格 | 1,000,000円 | 方位 | - |
| 間取り | 7K | ||
| 専有面積 | - | バルコニー面積 | - |
| その他面積 | - | 駐車場 | - |
| 管理費 | - | 修繕積立金 | - |
| 現況 | 空家 | ||
| 仲介手数料 | 330,000円 | ||
| 利用制限 | - | ||
| 設備 | 駐車2台可能、エアコンあり、都市ガス、上水道、浄化槽 | ||
| 取引態様 | 一般 | ||
| 備考 | ・建物が2軒付きの中古住宅です!内部で行き来が出来て実用的! ・家の横に駐車スペースがあり、敷地裏には2階建のシャッター車庫もあります! ・下水道負担金は完納済みで、必要の際に下水マスを入れてもらう事ができます☆ ・裏庭に畑スペースがあるため、家庭菜園も可能です♪ ・玄関から出た前面道路は約6.8mと広く、消雪パイプが設置されているので冬場も安心です☆ ※本体代金に別途仲介手数料・諸費用が掛かります。 |
||
| 情報登録日 | 2025/12/15 | 次回更新予定日 | 2026/06/05 |
| 取引条件有効期限 | 2024/12/31 | ||
|
|
|
|
| TEL: | 025-523-2438 |
|---|---|
| 所在地: | 新潟県上越市稲田4-5-21 |
| 交通: | 高田駅 |
| 営業時間: | 午前9:00~午後18:00/定休日:水曜日 第1、第3日曜日 |
| 免許番号: | 新潟県知事(10)第2792号 |
| 所属団体名: | 公社 新潟県宅地建物取引協会 上越支部 |
| 取引態様: | 一般 |