| 部屋数が多く広々とした間取りです! | |||
| 物件コード | 00269-200143 | ||
|---|---|---|---|
| 物件名 | 西城町3丁目 中古住宅 | ||
| 交通 | 駅:妙高はねうまライン 高田駅から徒歩14分 | ||
| 物件所在地 | 新潟県上越市西城町3丁目9番7号 | ||
| 物件種別 | 中古一戸建て | ||
| 構造 | 木造 | 階建 | 地上2階建 |
| 建ぺい率/容積率 | 60%/200% | ||
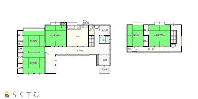
| 建物面積 | 1階 101.49㎡/ 2階 43.45㎡/ 計 144.94㎡ /43.84坪 | ||
| 土地面積 | 234.98㎡ /71.08坪 | ||
| 築年月 | 1981年11月(築44年) | ||
| 入居時期 | 随時入居(引き渡し)可 | ||
| 用途地域 | 第1種低層住居専用地域 | 地目 | 宅地 (現状:宅地) |
| 都市計画 | 市街化区域 | 学校区 | 大町小学校(207m)・城東中学校(1,180m) |
| 形状 | - | 道路 | 西 4m |
| 私道 | - | ||
| 所在階/階数 | - | 号室 | - |
|---|---|---|---|
| 販売価格 | 7,800,000円 | 方位 | - |
| 間取り |
5DK (和室:8畳、8畳、8畳、8畳、6畳) DK |
||
| 専有面積 | - | バルコニー面積 | - |
| その他面積 | - | 駐車場 | - |
| 管理費 | - | 修繕積立金 | - |
| 現況 | 空家 | ||
| 仲介手数料 | 330,000円 | ||
| 利用制限 | - | ||
| 設備 | 閑静な住宅街、エアコンあり、都市ガス、上水道、下水道、即引き渡し可能 | ||
| 取引態様 | 専任 | ||
| 備考 | ・南側の私道の持分あり(1/2) ・前面道路に消雪パイプあり |
||
| 情報登録日 | 2025/09/18 | 次回更新予定日 | 2026/06/06 |
| 取引条件有効期限 | 2025/12/31 | ||
|
|
|
|
|
|
| TEL: | 025-527-6541 |
|---|---|
| 所在地: | 新潟県上越市春日山町3-18-44 |
| 交通: | 妙高はねうまライン 春日山駅 |
| 営業時間: | 9:00から18:00/定休日:毎週水曜日・日曜日 |
| 免許番号: | 新潟県知事(8)第3548号 |
| 所属団体名: | 公社 新潟県宅地建物取引協会 上越支部 |
| 取引態様: | 専任 |