| 物件コード | 00259-200066 | ||
|---|---|---|---|
| 物件名 | 渋江町売家 | ||
| 交通 | 駅:妙高はねうまライン 新井駅から徒歩22分、バス:文化ホール入口から徒歩7分 | ||
| 物件所在地 | 新潟県妙高市渋江町7-10 | ||
| 物件種別 | 中古一戸建て | ||
| 構造 | 木造 | 階建 | 地上2階建 | 
| 建ぺい率/容積率 | 40%/80% | ||
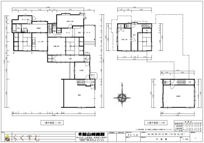
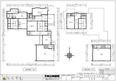
| 建物面積 | 1階 158.52㎡/ 2階 69.47㎡/ 計 227.99㎡ /68.96坪 | ||
| 土地面積 | 446㎡ /134.91坪 | ||
| 築年月 | 1982年11月(築43年) | ||
| 入居時期 | R7年5月以降の引渡しになります | ||
| 用途地域 | 第1種低層住居専用地域 | 地目 | 宅地 (現状:宅地) | 
| 都市計画 | 非線引き都市計画区域 | 学校区 | 新井小学校(748m)・新井中学校(594m) | 
| 形状 | - | 道路 | 東側 | 
| 私道 | - | ||
| 所在階/階数 | - | 号室 | - | 
|---|---|---|---|
| 販売価格 | 7,000,000円 | 方位 | 東 | 
| 間取り | 
													7DK (和室:6畳、6畳、6畳) (洋室:7.6、8、8.4、17) DK7  | 
					||
| 専有面積 | - | バルコニー面積 | - | 
| その他面積 | - | 駐車場 | - | 
| 管理費 | - | 修繕積立金 | - | 
| 現況 | 賃貸中 | ||
| 仲介手数料 | なし | ||
| 利用制限 | - | ||
| 設備 | 日当り良好、閑静な住宅街 | ||
| 取引態様 | 売主 | ||
| 備考 | - | ||
| 情報登録日 | 2025/07/07 | 次回更新予定日 | 2025/11/19 | 
| 取引条件有効期限 | 2025/04/14 | ||
							 
						 | 
						
							 
						 | 
					
							 
						 | 
						
							 
						 | 
					
| TEL: | 0255-72-3129 | 
|---|---|
| 所在地: | 新潟県妙高市東陽町2-20 | 
| 交通: | えちごトキめき鉄道 新井駅から徒歩25分 | 
| 営業時間: | 8:00〜17:00/定休日:土日祝日 | 
| 免許番号: | 新潟県知事(8)第3467号 | 
| 所属団体名: | 公益社団法人新潟県宅地建物取引協会 上越支部 | 
| 取引態様: | 売主 |