| 室内も綺麗にお使いの住宅です! 車庫1台分&納屋2階建て有り。 | |||
| 物件コード | 00250-200067 | ||
|---|---|---|---|
| 物件名 | 大潟区潟町 中古戸建6DK | ||
| 交通 | 駅:信越線 潟町駅から徒歩7分 | ||
| 物件所在地 | 新潟県上越市大潟区潟町517-7 | ||
| 物件種別 | 中古一戸建て | ||
| 構造 | 木造 | 階建 | 地上2階建 |
| 建ぺい率/容積率 | 50%/100% | ||
| 建物面積 | 1階 104.34㎡/ 2階 33.12㎡/ 計 137.46㎡ /41.58坪 | ||
| 土地面積 | 469㎡ /141.87坪 | ||
| 築年月 | 1974年5月(築51年) | ||
| 入居時期 | 随時入居(引き渡し)可 | ||
| 用途地域 | 第1種低層住居専用地域 | 地目 | 宅地 (現状:宅地) |
| 都市計画 | 市街化区域 | 学校区 | 大潟町小学校(1,517m)・大潟町中学校(449m) |
| 形状 | 間口 4m × 奥行 18m | 道路 | 私道(各所有権あり) |
| 私道 | 幅員5m | ||
| 所在階/階数 | - | 号室 | - |
|---|---|---|---|
| 販売価格 | 2,800,000円 | 方位 | 南 |
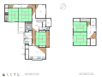
| 間取り |
6DK (和室:6畳、6畳、8畳、6畳、8畳) (洋室:6) DK10 |
||
| 専有面積 | - | バルコニー面積 | - |
| その他面積 | 126㎡ /38.11坪 敷地面積の内、進入路の道路部分(地目:公衆用道路) | 駐車場 | - |
| 管理費 | - | 修繕積立金 | - |
| 現況 | 空家 | ||
| 仲介手数料 | 330,000円 | ||
| 利用制限 | - | ||
| 設備 | 日当り良好、閑静な住宅街、駐車3台以上可能、南向き、3口コンロ、追いだき機能付き、温水洗浄便座、エアコンあり、都市ガス、上水道、浄化槽、床下収納、シューズBOX、田舎暮らし | ||
| 取引態様 | 専任 | ||
| 備考 | ・都市ガス、上水道、浄化槽。敷地面積の内126㎡は公道面積。 ・道路の除雪は、近くの建築会社に依頼し除雪を実施。 |
||
| 情報登録日 | 2025/12/12 | 次回更新予定日 | 2026/01/13 |
| 取引条件有効期限 | 2026/03/12 | ||
|
|
|
|
| TEL: | 025-520-6623 |
|---|---|
| 所在地: | 新潟県上越市春日野1丁目7番4号オフィスYAMADA-B号 |
| 交通: | 春日山駅より徒歩8分 |
| 営業時間: | 9:00~17:00/定休日:水・日 |
| 免許番号: | 新潟県知事(1)第5592号 |
| 所属団体名: | 公益社団法人 全日本不動産協会 新潟県本部 |
| 取引態様: | 専任 |