| 2026年5月完成予定!市立劇場、さいわいプラザまで徒歩5分。 子育て世帯にぴったりの暮らしやすい環境です。 | |||
| 物件コード | 00243-200020 | ||
|---|---|---|---|
| 物件名 | 長岡市三和A 新築戸建住宅 | ||
| 交通 | 駅:信越線 宮内駅から徒歩24分、バス:三和町から徒歩4分 | ||
| 物件所在地 | 新潟県長岡市三和三丁目2番1他9筆の一部 | ||
| 物件種別 | 新築一戸建て | ||
| 構造 | 木造 | 階建 | 地上2階建 |
| 建ぺい率/容積率 | 60%/200% | ||
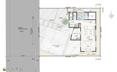
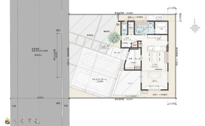
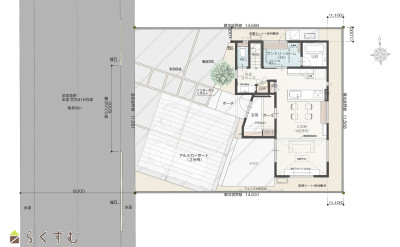
| 建物面積 | 1階 50.17㎡/ 2階 42.51㎡/ 計 92.68㎡ /28.03坪 | ||
| 土地面積 | 168.4㎡ /50.94坪 | ||
| 築年月 | 2026年5月完成予定 | ||
| 入居時期 | 2026年10月末 予定 | ||
| 用途地域 | 第2種中高層住居専用地域 | 地目 | 田 |
| 都市計画 | 市街化区域 | 学校区 | 宮内小学校(1,200m)・宮内中学校(1,600m) |
| 形状 | - | 道路 | 西 8.0m 公道 接面11.5m |
| 私道 | - | ||
| 所在階/階数 | - | 号室 | - |
|---|---|---|---|
| 販売価格 | 36,400,000円 | 方位 | 南 |
| 間取り |
3LDK (洋室:6.1、4.9、4.9) LDK 16.6 ■土地+建物+外構 セットの価格です。 |
||
| 専有面積 | - | バルコニー面積 | - |
| その他面積 | - | 駐車場 | - |
| 管理費 | - | 修繕積立金 | - |
| 現況 | 指定なし | ||
| 仲介手数料 | なし | ||
| 利用制限 | - | ||
| 設備 | 前面道路6m以上、閑静な住宅街、スーパー近く、設計住宅性能評価付き、耐震構造、瑕疵担保保険付き、LDK15畳以上、全室フローリング、駐車場3台以上、TVインターホン、複層ガラス、ディンプルキー、システムキッチン、IHクッキングヒーター、食器洗浄乾燥機、追いだき機能付き、浴室暖房乾燥機、バス1坪以上、温水洗浄便座、シャワー付き洗面台、エアコン、24時間換気システム、オール電化、省エネ給湯、高気密高断熱住宅、ウッドデッキ・テラス、都市ガス、上水道、下水道、電気、ウォークインクローゼット、床下収納、照明器具付き | ||
| 取引態様 | 売主 | ||
| 備考 | ※引渡し時期について:完成後、しばらくの間、見学可能な展示場として公開予定です。引渡しは展示期間終了後(2026年10月末以降~)となります。 ~建売のポイント~ (1.住みやすさ) 人気の宮内小学校エリア!静かな住宅街で、スーパーや商業施設等、子育てに嬉しい施設が集結。 日常や週末の買い物にとっても便利な生活環境。大きな公園も多く、子育てファミリーにおすすめです。 (2.交通環境) 車での出入りもスムーズ!歩道付き、8m幅の前面道路&駐車スペース3台分確保。 (3.物件の特長) ・木目柄の勾配天井を活かした、開放感あふれるリビング空間。 間接照明が、空間に上品な雰囲気と心地よさをプラス。 ・30坪の家に、オシャレな造作TVボードや造作洗面台、天候に左右されないランドリールームなど、暮らしを便利にする設備が充実。 ・ゆったりリラックス♪おうちアウトドア気分を満喫できる広いテラス。 ・シューズクローク、パントリー、ウォークインクローゼットなど収納も豊富! ~ステーツの魅力~ ◆ 最高ランク 「耐震等級3」 地震に強い家 ◆ ZEHを超える高断熱性能「HEAT20 G1グレード」以上の高性能 ◆ 「構造・雨漏り最長60年保証&無償定期点検」・「設備10年保証」など、建てた後も安心の住まい -----■「長岡市三和A」建売 月々の返済例----- (2025年9月現在) --------------- [月々の返済額]86,366円 ※ボーナス払いなしの場合 --------------- ■諸条件 [価 格] 3,640万円 [頭 金] 100万円 [借入金] 3,540万円 [金利タイプ]変動金利 [金 利] 0.810% [借入年数] 40年 ※ローン諸費用別途 |
||
| 情報登録日 | 2026/03/09 | 次回更新予定日 | 2026/04/21 |
| 取引条件有効期限 | 2026/09/30 | ||
|
|
|
|
|
|
| TEL: | 025-383-3003 |
|---|---|
| 所在地: | 新潟県新潟市江南区東早通1-1-40 |
| 交通: | |
| 営業時間: | 10:00~18:00/定休日:水・木曜日 |
| 免許番号: | 国土交通大臣(5)第6810号 |
| 所属団体名: | 公社 新潟県宅地建物取引協会 新潟支部 |
| 取引態様: | 売主 |