| ◆毎日営業中!当日のご内覧大歓迎!いつでもご案内します!!◆急なご来店でも相談出来ます◆豊富な知識と経験を基に丁寧にアドバイスします!先ずはお電話、メール、LINEにてお問合せ下さい♪ | |||
| 物件コード | 00239-200584 | ||
|---|---|---|---|
| 物件名 | (新築住宅)長岡市曲新町 第1 1号棟 | ||
| 交通 | 駅:信越線 宮内駅から徒歩8分、バス:宮内1丁目から徒歩3分 | ||
| 物件所在地 | 新潟県長岡市曲新町2丁目6-21付近 | ||
| 物件種別 | 新築一戸建て | ||
| 構造 | 木造 | 階建 | 地上2階建 |
| 建ぺい率/容積率 | 50%/100% | ||
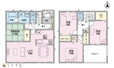
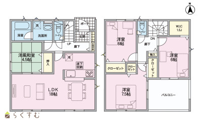
| 建物面積 | 1階 53.46㎡/ 2階 45.36㎡/ 計 98.82㎡ /29.89坪 | ||
| 土地面積 | 264.16㎡ /79.9坪 | ||
| 築年月 | 2025年12月完成予定 | ||
| 入居時期 | 随時入居(引き渡し)可 | ||
| 用途地域 | 第1種低層住居専用地域 | 地目 | 宅地 |
| 都市計画 | 市街化区域 | 学校区 | 上組小学校(1,200m)・宮内中学校(1,100m) |
| 形状 | 間口 14.6m × 奥行 14.6m | 道路 | 北側4.0m公道 |
| 私道 | - | ||
| 所在階/階数 | - | 号室 | - |
|---|---|---|---|
| 販売価格 | 28,800,000円 | 方位 | 南 |
| 間取り |
4LDK (和室:4.5畳) (洋室:7.5、6.0、6.0) LDK18 |
||
| 専有面積 | - | バルコニー面積 | - |
| その他面積 | - | 駐車場 | - |
| 管理費 | - | 修繕積立金 | - |
| 現況 | 空家 | ||
| 仲介手数料 | 1,016,400円 | ||
| 利用制限 | - | ||
| 設備 | 日当り良好、閑静な住宅街、耐震構造、LDK15畳以上、駐車場3台以上、南向き、TVインターホン、複層ガラス、ディンプルキー、システムキッチン、カウンターキッチン、浄水器、3口コンロ、ガスコンロ設置済み、追いだき機能付き、浴室暖房乾燥機、バス1坪以上、温水洗浄便座、シャワー付き洗面台、24時間換気システム、省エネ給湯、高気密高断熱住宅、都市ガス、上水道、下水道、電気、ウォークインクローゼット、全居室収納あり、床下収納、シューズBOX、即引き渡し可能、バリアフリー | ||
| 取引態様 | 一般 | ||
| 備考 | 【教育】 上組小学校 約1200m 徒歩約15分 宮内中学校 約1100m 徒歩約14分 【交通】 JR信越本線/上越線 宮内駅 徒歩約8分 越後交通 宮内1丁目 徒歩約3分 ◆弊社が選ばれている3つの理由 昨年は、142組のお客様が弊社を通じて新築住宅をご購入いただきました♪ 1】新築中古の取扱数200件超! ◎たくさんの取扱物件からお探し条件にあう物件をご紹介 ◎新着物件や価格改定物件もいち早くご提供 2】売って終わりにしない、充実のアフターサービス体制 ◎アフターサービスの専門スタッフが、迅速・丁寧にご対応 ◎独自のメンテナンス制度で設備の故障や建物の傷を無償修理 ◎ご購入後のお困り事も、充実した体制で手厚くサポート 3】選べるプレゼント ◎エアコンや照明などの新生活に必要な設備を無料でプレゼント |
||
| 情報登録日 | 2025/12/22 | 次回更新予定日 | 2026/01/13 |
| 取引条件有効期限 | 2026/12/31 | ||
|
|
|
|
| TEL: | 0258-89-8245 |
|---|---|
| 所在地: | 新潟県長岡市台町1-7-331階 |
| 交通: | 長岡駅 |
| 営業時間: | 9:00~18:00/定休日:なし |
| 免許番号: | 新潟県知事(3)第5151号 |
| 所属団体名: | 公社 新潟県宅地建物取引協会 新潟支部 |
| 取引態様: | 一般 |