| ■納戸もあり収納豊富です ■前面道路に消雪パイプ完備で冬も安心ですね。 ■ゆったりとした敷地面積約125坪 ■見附小学校まで徒歩約9分 ■スーパーなどの店舗や市役所が徒歩圏内 | |||
| 物件コード | 00239-200412 | ||
|---|---|---|---|
| 物件名 | 見附市学校町 売家 | ||
| 交通 | 駅:信越線 見附駅から徒歩18分、バス:ネーブルみつけ前から徒歩5分 | ||
| 物件所在地 | 新潟県見附市学校町2丁目6-12 | ||
| 物件種別 | 中古一戸建て | ||
| 構造 | 木造 | 階建 | 地上2階建 |
| 建ぺい率/容積率 | 60%/200% | ||
| 建物面積 | 1階 168.93㎡/ 2階 172.24㎡/ 計 341.17㎡ /103.2坪 | ||
| 土地面積 | 413.32㎡ /125.02坪 | ||
| 築年月 | 1990年7月(築35年) | ||
| 入居時期 | 相談 | ||
| 用途地域 | 第1種住居地域 | 地目 | 宅地 |
| 都市計画 | 市街化区域 | 学校区 | 見附小学校(650m)・見附中学校(1,700m) |
| 形状 | - | 道路 | 北側4.0m位置指定 |
| 私道 | 有70㎡(持分1/4) | ||
| 所在階/階数 | - | 号室 | - |
|---|---|---|---|
| 販売価格 | 13,800,000円 | 方位 | 東 |
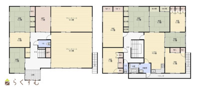
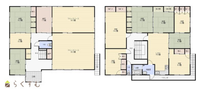
| 間取り |
10LDK (和室:10畳、10畳、8畳、7.5畳、6畳) (洋室:14、8、7.5、6、6) LDK14 フリースペース28、20 |
||
| 専有面積 | - | バルコニー面積 | - |
| その他面積 | - | 駐車場 | - |
| 管理費 | - | 修繕積立金 | - |
| 現況 | 居住中 | ||
| 仲介手数料 | 521,400円 | ||
| 利用制限 | - | ||
| 設備 | 日当り良好、閑静な住宅街、システムキッチン、3口コンロ、追いだき機能付き、バス1坪以上、温水洗浄便座、トイレ2か所以上、シャワー付き洗面台、都市ガス、上水道、下水道、シューズBOX、事業向け | ||
| 取引態様 | 一般 | ||
| 備考 | 【教育機関】 見附小学校 約650m 徒歩約9分 見附中学校 約1700m 徒歩約18分 【交通機関】 JR信越本線 見附駅 徒歩約18分 みつけコミュニティバス ネーブルみつけ前/見附みどり保育園前 徒歩約5分 【お引渡し条件】 ・残置物は売主にて撤去 ・売主契約不適合責任免責 ・境界非明示 ・上記土地の他に公衆用道路70㎡(持分1/4有) |
||
| 情報登録日 | 2025/12/22 | 次回更新予定日 | 2026/06/05 |
| 取引条件有効期限 | 2026/12/31 | ||
|
|
|
|
| TEL: | 0258-89-8245 |
|---|---|
| 所在地: | 新潟県長岡市台町1-7-331階 |
| 交通: | 長岡駅 |
| 営業時間: | 9:00~18:00/定休日:なし |
| 免許番号: | 新潟県知事(3)第5151号 |
| 所属団体名: | 公社 新潟県宅地建物取引協会 新潟支部 |
| 取引態様: | 一般 |