| 市内中心部に近く幅広い利用用途に対応できます。 | |||
| 物件コード | 00227-200073 | ||
|---|---|---|---|
| 物件名 | 柏崎市諏訪町3階建 | ||
| 交通 | 駅:越後線 東柏崎駅から徒歩9分、バス:諏訪町1丁目から徒歩2分 | ||
| 物件所在地 | 新潟県柏崎市諏訪町1-20 | ||
| 物件種別 | 投資物件・その他 | ||
| 物件区分 | その他 | ||
| 構造 | 鉄骨 | 階建 | 地上3階建 |
| 建ぺい率/容積率 | 80%/200% | ||
| 建物面積 | 計 444.24㎡ /134.38坪 | ||
| 土地面積 | 296.22㎡ /89.6坪 | ||
| 築年月 | 1970年4月(築56年) | ||
| 入居時期 | 随時入居(引き渡し)可 | ||
| 用途地域 | 商業地域 | 地目 | 宅地 (現状:宅地) |
| 都市計画 | 非線引き都市計画区域 | 学校区 | 柏崎小学校(603m)・第一中学校(647m) |
| 形状 | - | 道路 | 公道(県道) |
| 私道 | - | ||
| 所在階/階数 | - | 号室 | - |
|---|---|---|---|
| 販売価格 | 9,800,000円 | 方位 | - |
| 表面利回り (満室想定時) |
- | 満室想定年収 | - (想定月収: - ) |
| 現行利回り | - | 現行年間年収 | - |
| 住戸数 | - | ||
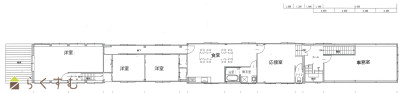
| 間取り | 1F車庫、倉庫スペース、2F事務所、居住スペース、水廻り、3F居住スペース | ||
| 専有面積 | - | バルコニー面積 | - |
| その他面積 | - | 駐車場 | - |
| 管理費 | - | 修繕積立金 | - |
| 現況 | 空家 | ||
| 仲介手数料 | 389,400円 | ||
| 利用制限 | - | ||
| 設備 | 公営水道、都市ガス、下水道、事業向け、別荘、高利回り物件 | ||
| 取引態様 | 一般 | ||
| 備考 | 平成30年内部リフォーム。 正面電動シャッター。 |
||
| 情報登録日 | 2025/07/16 | 次回更新予定日 | 2026/06/05 |
| 取引条件有効期限 | 2025/10/16 | ||
|
|
|
|
|
| TEL: | 0257-41-6381 |
|---|---|
| 所在地: | 新潟県柏崎市土合615番地 |
| 交通: | |
| 営業時間: | 8:30~17:30/定休日:土日年末年始・夏季など |
| 免許番号: | 新潟県知事(2)第5472号 |
| 所属団体名: | 公社新潟県宅地建物取引業協会 柏崎支部 |
| 取引態様: | 一般 |