| 物件コード | 00221-200245 | ||
|---|---|---|---|
| 物件名 | 柏崎市日吉町 中古住宅 | ||
| 交通 | 駅:越後線 東柏崎駅から徒歩15分、バス:北半田1丁目から徒歩5分 | ||
| 物件所在地 | 新潟県柏崎市日吉町2番66-3 | ||
| 物件種別 | 中古一戸建て | ||
| 構造 | 木造 | 階建 | 地上2階建 |
| 建ぺい率/容積率 | 60%/200% | ||
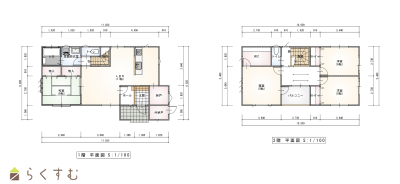
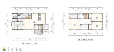
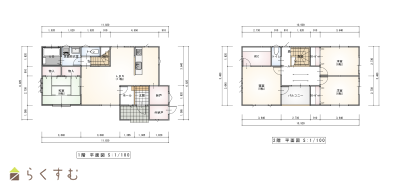
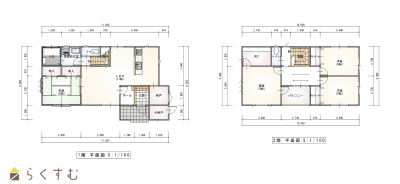
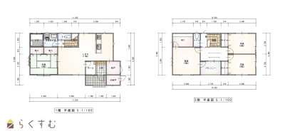
| 建物面積 | 1階 63.77㎡/ 2階 54.65㎡/ 計 118.42㎡ /35.82坪 | ||
| 土地面積 | 180.99㎡ /54.74坪 | ||
| 築年月 | 2020年5月(築6年) | ||
| 入居時期 | 相談 | ||
| 用途地域 | 第1種住居地域 | 地目 | 宅地 |
| 都市計画 | 非線引き都市計画区域 | 学校区 | 比角小学校(182m)・第二中学校(588m) |
| 形状 | - | 道路 | 南側6.0m:位置指定道路 |
| 私道 | - | ||
| 所在階/階数 | - | 号室 | - |
|---|---|---|---|
| 販売価格 | 25,800,000円 | 方位 | - |
| 間取り |
4LDK (和室:6畳) (洋室:8、6、6) LDK17.0 |
||
| 専有面積 | - | バルコニー面積 | - |
| その他面積 | - | 駐車場 | - |
| 管理費 | - | 修繕積立金 | - |
| 現況 | 居住中 | ||
| 仲介手数料 | 917,400円 | ||
| 利用制限 | - | ||
| 設備 | 日当り良好、閑静な住宅街、新築時図面あり、LDK15帖以上、築10年以内、築15年以内、駐車2台可能、駐車3台以上可能、TVインターホン、複層ガラス、デインプルキー、システムキッチン、IHクッキングヒーター、食器洗浄乾燥機、3口コンロ、追いだき機能付き、バス1坪以上、温水洗浄便座、トイレ2か所以上、シャワー付き洗面台、エアコンあり、都市ガス、上水道、下水道、ウォークインクローゼット、全居室収納あり、シューズBOX、シューズインクローゼット | ||
| 取引態様 | 専任 | ||
| 備考 | - | ||
| 情報登録日 | 2025/10/13 | 次回更新予定日 | 2026/06/07 |
| 取引条件有効期限 | 2025/12/12 | ||
|
|
|
|
| TEL: | 080-7289-9376 |
|---|---|
| 所在地: | 新潟県長岡市古正寺3丁目116 |
| 交通: | |
| 営業時間: | 10:00~17:00/定休日:水曜日 木曜日 |
| 免許番号: | 新潟県知事(2)第5484号 |
| 所属団体名: | 新潟県宅地建物取引業協会 長岡支部 |
| 取引態様: | 専任 |