| 与板のまちの中心地に建つ店舗併用住宅です。住居部分は通り土間があり、古民家の趣が感じられます。 | |||
| 物件コード | 00192-200015 | ||
|---|---|---|---|
| 物件名 | 与板町与板店舗併用住宅 | ||
| 交通 | 駅:越後線 小島谷駅から徒歩81分、バス:与板仲町から徒歩3分 | ||
| 物件所在地 | 新潟県長岡市与板町与板459番地 | ||
| 物件種別 | 中古一戸建て | ||
| 構造 | 木造 | 階建 | 地上2階建 |
| 建ぺい率/容積率 | 80%/400% | ||
| 建物面積 | 1階 173.12㎡/ 2階 153.28㎡/ 計 326.4㎡ /98.73坪 | ||
| 土地面積 | 436.32㎡ /131.98坪 | ||
| 築年月 | 1935年1月(築91年) | ||
| 入居時期 | 相談 | ||
| 用途地域 | 商業地域 | 地目 | 宅地 (現状:宅地) |
| 都市計画 | 市街化区域 | 学校区 | 与板小学校(428m)・与板中学校(542m) |
| 形状 | 間口 14m × 奥行 29m | 道路 | 西側幅員14.9m(歩道含む) |
| 私道 | - | ||
| 所在階/階数 | - | 号室 | - |
|---|---|---|---|
| 販売価格 | 8,000,000円 | 方位 | 西 |
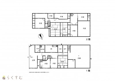
| 間取り |
12DK 店舗スペースあり |
||
| 専有面積 | - | バルコニー面積 | - |
| その他面積 | - | 駐車場 | - |
| 管理費 | - | 修繕積立金 | - |
| 現況 | 空家 | ||
| 仲介手数料 | 330,000円 | ||
| 利用制限 | - | ||
| 設備 | 駐車2台可能、システムキッチン、トイレ2か所以上、都市ガス、上水道、下水道、2世帯向き、事業向け | ||
| 取引態様 | 一般 | ||
| 備考 | ・土地面積は売買対象の土地4筆を合計したものです。 ・付属建物に土蔵、物置、車庫、カーポートがあります。 ・現況有姿での引き渡しとなります。 |
||
| 情報登録日 | 2024/12/16 | 次回更新予定日 | 2026/04/22 |
| 取引条件有効期限 | 2025/03/13 | ||
|
|
|
|
| TEL: | 0258-84-7781 |
|---|---|
| 所在地: | 新潟県長岡市中島3-8-5 |
| 交通: | 長岡駅 |
| 営業時間: | 8:00~17:00/定休日:日曜、祝日、第2・4土曜 |
| 免許番号: | 新潟県知事(5)第4552号 |
| 所属団体名: | 公社 新潟県宅地建物取引協会 長岡支部 |
| 取引態様: | 一般 |