| 物件コード | 00159-200199 | ||
|---|---|---|---|
| 物件名 | 岩木 中古住宅 | ||
| 交通 | 駅:妙高はねうまライン 春日山駅から徒歩38分、バス:岩木入口から徒歩6分 | ||
| 物件所在地 | 新潟県上越市岩木508-4 | ||
| 物件種別 | 中古一戸建て | ||
| 構造 | 木造 | 階建 | 地上2階建 |
| 建ぺい率/容積率 | 60%/200% | ||
| 建物面積 | 1階 35.6㎡/ 2階 33.95㎡/ 計 69.55㎡ /21.03坪 | ||
| 土地面積 | 247.92㎡ /74.99坪 | ||
| 築年月 | 2009年5月(築17年) | ||
| 入居時期 | 相談 | ||
| 用途地域 | 第1種住居地域 | 地目 | 宅地 (現状:宅地) |
| 都市計画 | 市街化区域 | 学校区 | 春日小学校(2,033m)・春日中学校(2,613m) |
| 形状 | 間口 12m × 奥行 14m | 道路 | 北側4.5m |
| 私道 | - | ||
| 所在階/階数 | - | 号室 | - |
|---|---|---|---|
| 販売価格 | 15,500,000円 | 方位 | 南 |
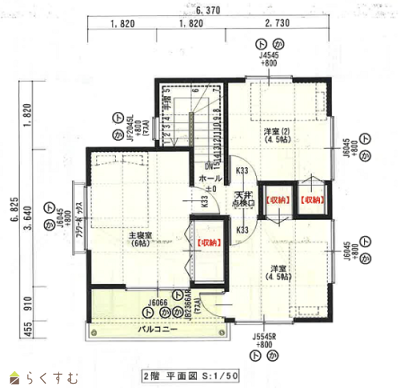
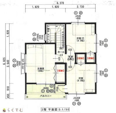
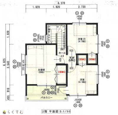
| 間取り |
3LDK (洋室:6、4.5、4.5) LD6 |
||
| 専有面積 | - | バルコニー面積 | - |
| その他面積 | - | 駐車場 | - |
| 管理費 | - | 修繕積立金 | - |
| 現況 | 空家 | ||
| 仲介手数料 | 577,500円 | ||
| 利用制限 | - | ||
| 設備 | 南向き | ||
| 取引態様 | 一般 | ||
| 備考 | - | ||
| 情報登録日 | 2025/11/28 | 次回更新予定日 | 2026/06/05 |
| 取引条件有効期限 | 2025/12/28 | ||
|
|
|
|
| TEL: | 025-530-7340 |
|---|---|
| 所在地: | 新潟県上越市東町2-14グランデ直江津駅前101 |
| 交通: | 直江津駅 徒歩5分 |
| 営業時間: | 9:00~18:00(日・祭9:00~17:00)/定休日:水曜日 |
| 免許番号: | 新潟県知事(2)第5296号 |
| 所属団体名: | 新潟県宅地建物取引業協会 上越支部 |
| 取引態様: | 一般 |