| 物件コード | 00156-200032 | ||
|---|---|---|---|
| 物件名 | 長岡市乙吉町 | ||
| 交通 | 駅:信越線 長岡駅から徒歩57分、バス:乙吉から徒歩12分 | ||
| 物件所在地 | 長岡市乙吉町972-132 | ||
| 物件種別 | 中古一戸建て | ||
| 構造 | 木造 | 階建 | 地上2階建 |
| 建ぺい率/容積率 | 70%/200% | ||
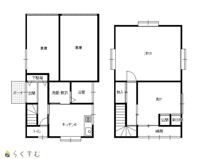
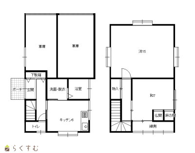
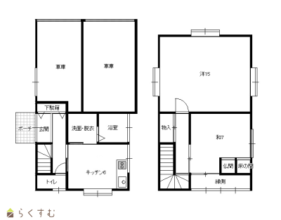
| 建物面積 | 1階 54.62㎡/ 2階 49.68㎡/ 計 104.3㎡ /31.55坪 | ||
| 土地面積 | 262.8㎡ /79.49坪 | ||
| 築年月 | 1993年2月(築33年) | ||
| 入居時期 | 相談 | ||
| 用途地域 | 用途の指定のない地域 | 地目 | 宅地 |
| 都市計画 | 市街化調整区域 | 学校区 | 栖吉小学校(1,630m)・栖吉中学校(1,630m) |
| 形状 | 間口 14.8m × 奥行 18.48m | 道路 | 市道 / 山本109号線 6.15m |
| 私道 | - | ||
| 所在階/階数 | - | 号室 | - |
|---|---|---|---|
| 販売価格 | 3,900,000円 | 方位 | 東 |
| 間取り |
2DK (和室:7畳) (洋室:15) DK6 |
||
| 専有面積 | - | バルコニー面積 | - |
| その他面積 | - | 駐車場 | - |
| 管理費 | - | 修繕積立金 | - |
| 現況 | 空家 | ||
| 仲介手数料 | 193,600円 | ||
| 利用制限 | - | ||
| 設備 | 閑静な住宅街、LPG、上水道、下水道 | ||
| 取引態様 | 専属専任 | ||
| 備考 | - | ||
| 情報登録日 | 2025/09/19 | 次回更新予定日 | 2026/06/05 |
| 取引条件有効期限 | 2026/05/27 | ||
|
|
|
|
|
| TEL: | 0258-32-4331 |
|---|---|
| 所在地: | 新潟県長岡市城内町3-8-17 |
| 交通: | 長岡駅徒歩5分 |
| 営業時間: | 9:00~17:30/定休日:土日祝 |
| 免許番号: | 新潟県知事(16)第337号 |
| 所属団体名: | 公社新潟県宅地建物取引業協会 長岡支部 |
| 取引態様: | 専属専任 |