| お買い物には車が必須の地域です。駐車場3台以上停められるスペースがあります☆ お住まいには7つのお部屋があり、ファミリーや2世帯も楽々過ごせます。 | |||
| 物件コード | 00125-200109 | ||
|---|---|---|---|
| 物件名 | 見附市下関町 中古住宅 | ||
| 交通 | バス:今町6丁目から徒歩15分 | ||
| 物件所在地 | 新潟県見附市下関町丙2019番地 | ||
| 物件種別 | 中古一戸建て | ||
| 構造 | 木造 | 階建 | 地上2階建 |
| 建ぺい率/容積率 | 70%/200% | ||
| 建物面積 | 1階 116.76㎡/ 2階 76.18㎡/ 計 192.94㎡ /58.36坪 | ||
| 土地面積 | 399㎡ /120.69坪 | ||
| 築年月 | 1971年5月(築55年) | ||
| 入居時期 | 相談 | ||
| 用途地域 | 用途の指定のない地域 | 地目 | 宅地 (現状:宅地) |
| 都市計画 | 市街化調整区域 | 学校区 | 今町小学校(898m)・今町中学校(1,693m) |
| 形状 | - | 道路 | 北西:市道・消雪なし ※南側:赤道 |
| 私道 | - | ||
| 所在階/階数 | - | 号室 | - |
|---|---|---|---|
| 販売価格 | 5,000,000円 | 方位 | 北西 |
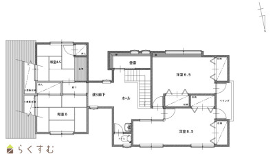
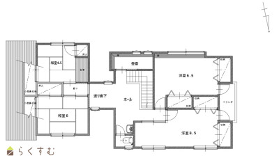
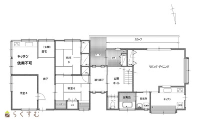
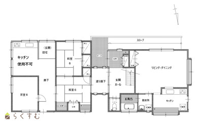
| 間取り |
7LDK (和室:6.0畳、6.0畳、4.5畳、6.0畳) (洋室:6.0、6.5、8.5) LD13.0 K3.0 |
||
| 専有面積 | - | バルコニー面積 | - |
| その他面積 | - | 駐車場 | - |
| 管理費 | - | 修繕積立金 | - |
| 現況 | 居住中 | ||
| 仲介手数料 | 330,000円 | ||
| 利用制限 | - | ||
| 設備 | 日当り良好、閑静な住宅街、駐車3台以上可能、南向き、トイレ2か所以上、上水道、下水道、田舎暮らし | ||
| 取引態様 | 仲介 | ||
| 備考 | *売主居住中のため内見は事前に連絡相談をお願いします *建物面積:ベランダ含みません *売主免責:契約不適合責任免責 *本物件(丙2019番)土地1筆と同敷地内に建築された複数棟の建物一式が売買対象です。 |
||
| 情報登録日 | 2026/02/19 | 次回更新予定日 | 2026/06/06 |
| 取引条件有効期限 | 2026/03/31 | ||
|
|
|
|
| TEL: | 0258-39-2919 |
|---|---|
| 所在地: | 新潟県長岡市摂田屋5-6-22 |
| 交通: | 信越線〔宮内駅〕徒歩13分 |
| 営業時間: | 8:30~17:30/定休日:隔週土曜・日曜日・祝/会社カレンダーによる |
| 免許番号: | 新潟県知事(8)第3591号 |
| 所属団体名: | 新潟県宅地建物取引業協会 長岡支部 |
| 取引態様: | 仲介 |