| スーパーや銀行等も近く、利便性抜群の好立地。1階車庫・居住エリアは2階3階です。 | |||
| 物件コード | 00125-200094 | ||
|---|---|---|---|
| 物件名 | 東宮内町中古建て | ||
| 交通 | 駅:上越線 宮内駅から徒歩9分、バス:東宮内から徒歩3分 | ||
| 物件所在地 | 新潟県長岡市東宮内町3153-2 | ||
| 物件種別 | 中古一戸建て | ||
| 構造 | 木造・鉄骨造 | 階建 | 地上3階建 |
| 建ぺい率/容積率 | 60%/200% | ||
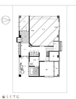
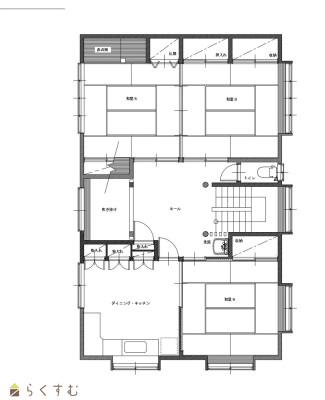
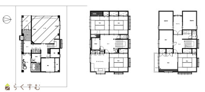
| 建物面積 | 1階 66.52㎡/ 2階 81.69㎡/ 3階 79.49㎡/ 計 227.7㎡ /68.87坪 | ||
| 土地面積 | 149.83㎡ /45.32坪 | ||
| 築年月 | 1986年3月(築39年) | ||
| 入居時期 | 相談 | ||
| 用途地域 | 第1種住居地域 | 地目 | 宅地 |
| 都市計画 | 市街化区域 | 学校区 | 宮内小学校(445m)・宮内中学校(598m) |
| 形状 | - | 道路 | 市道398号線幅員5.9m 消雪設備あり |
| 私道 | なし | ||
| 所在階/階数 | - | 号室 | - |
|---|---|---|---|
| 販売価格 | 14,900,000円 | 方位 | 西 |
| 間取り |
6DK (和室:8.0畳、8.0畳、8.0畳、8.0畳) (洋室:6.0、8.0) DK8.0 |
||
| 専有面積 | - | バルコニー面積 | - |
| その他面積 | - | 駐車場 | - |
| 管理費 | - | 修繕積立金 | - |
| 現況 | 空家 | ||
| 仲介手数料 | 557,700円 | ||
| 利用制限 | - | ||
| 設備 | 閑静な住宅街、スーパー近く、駐車2台可能、都市ガス、上水道、下水道、2世帯向き | ||
| 取引態様 | 一般 | ||
| 備考 | 1階:車庫・物置・浴室/2階:Dキッチン・8帖和室×3室・トイレ/3階:8帖和室×1室・8帖洋室×1室・6帖洋室×1室・屋根裏部屋2室※3階のミニキッチン・トイレは現在使用できません。使用する場合は別途工事が必要です(買主負担) ■売主「契約不適合責任」免責 ■消雪組合費+町会費(買主負担) | ||
| 情報登録日 | 2025/06/20 | 次回更新予定日 | 2025/11/19 |
| 取引条件有効期限 | 2025/09/30 | ||
|
|
|
|
|
| TEL: | 0258-39-2919 |
|---|---|
| 所在地: | 新潟県長岡市摂田屋5-6-22 |
| 交通: | 信越線〔宮内駅〕徒歩13分 |
| 営業時間: | 8:30~17:30/定休日:隔週土曜・日曜日・祝/会社カレンダーによる |
| 免許番号: | 新潟県知事(8)第3591号 |
| 所属団体名: | 新潟県宅地建物取引業協会 長岡支部 |
| 取引態様: | 一般 |