| 物件コード | 00108-200051 | ||
|---|---|---|---|
| 物件名 | 土合中古住宅 | ||
| 交通 | 駅:越後線 西中通駅から徒歩17分、バス:剣橋から徒歩8分 | ||
| 物件所在地 | 新潟県柏崎市土合455 | ||
| 物件種別 | 中古一戸建て | ||
| 構造 | 木造 | 階建 | 地上2階建 |
| 建ぺい率/容積率 | 70%/200% | ||
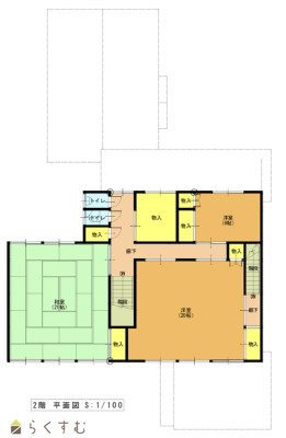
| 建物面積 | 1階 177.13㎡/ 2階 113.04㎡/ 計 290.17㎡ /87.77坪 | ||
| 土地面積 | 785.7㎡ /237.67坪 | ||
| 築年月 | 不詳 | ||
| 入居時期 | 相談 | ||
| 用途地域 | 用途の指定のない地域 | 地目 | 宅地 |
| 都市計画 | 非線引き都市計画区域 | 学校区 | 桜通小学校(673m)・瑞穂中学校(2,483m) |
| 形状 | 間口 28.75m × 奥行 26.31m | 道路 | 柏崎市道11-7 |
| 私道 | - | ||
| 所在階/階数 | - | 号室 | - |
|---|---|---|---|
| 販売価格 | 9,450,000円 | 方位 | 南 |
| 間取り | 8R (和室:8畳、8畳、10畳、21畳) (洋室:6、17、6、20) | ||
| 専有面積 | - | バルコニー面積 | - |
| その他面積 | - | 駐車場 | - |
| 管理費 | - | 修繕積立金 | - |
| 現況 | 居住中 | ||
| 仲介手数料 | 377,850円 | ||
| 利用制限 | - | ||
| 設備 | 閑静な住宅街、駐車3台以上可能、南向き、バス1坪以上、トイレ2か所以上、都市ガス、上水道、下水道 | ||
| 取引態様 | 一般 | ||
| 備考 | 家財撤去後、現況有姿での売買になります。 | ||
| 情報登録日 | 2026/04/10 | 次回更新予定日 | 2026/06/06 |
| 取引条件有効期限 | 2025/01/31 | ||
|
|
|
|
| TEL: | 0257-24-1336 |
|---|---|
| 所在地: | 新潟県柏崎市大字劔281番地5 |
| 交通: | |
| 営業時間: | 8:00~18:00/定休日:年中無休(臨時休業アリ) |
| 免許番号: | 新潟県知事(8)第3641号 |
| 所属団体名: | 新潟県宅地建物取引業協会 柏崎支部 |
| 取引態様: | 一般 |